30, Lansdown Road, Redland, Bristol, BS6 6NS

Asking Price £760,000 - Sold

4 1 1
  • A beautiful family home retaining an array of original features
  • Attractive stone façade, typical of the area
  • A versatile property, offering four bedrooms
  • Boasting a South-West facing rear garden
  • A sizeable, social open-plan living area
  • In the sought-after location of Redland, close to Whiteladies Road
  • Front courtyard garden with a custom-made refuse & bike store



Share:

A well-presented, four-bedroom, characterful mid-terrace family home located in the highly desirable area of Redland. The property benefits from a light and airy open-plan living space offering direct access to a south-west facing rear garden.

Property Details -

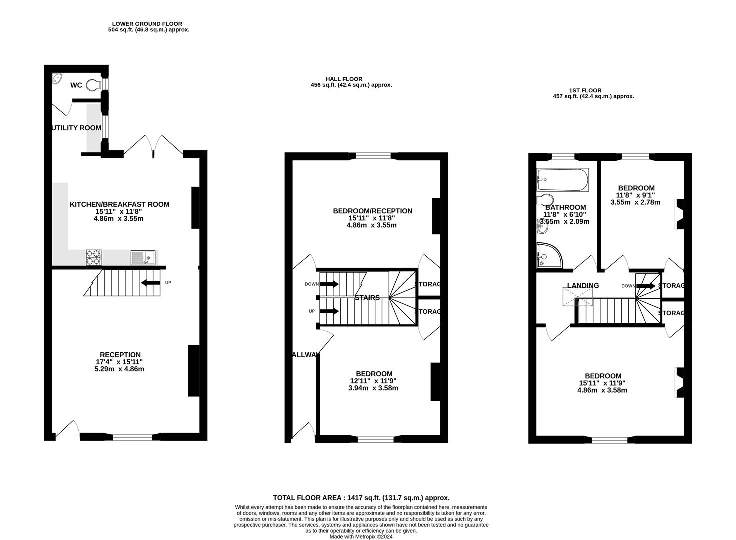
Upon entering the property, you are met with a very inviting, open-plan lounge/kitchen-diner, perfect for socialising with friends and family. The seating area has a cosy feel to it, with a log burner to the centre and a window facing the front aspect. The kitchen has a range of matching base and wall-mounted units, with some built-in appliances, and the dining area has been tastefully designed to complement the space, with a lovely view over the garden through the French doors. Beyond the kitchen, there is a a useful area for white goods including a washing machine and tumble dryer, as well as a ground floor WC situated at the very rear of the property.

Ascending to the hall floor, there are two well-sized double bedrooms, both decorated beautifully with some retained original features, and boasting sizeable storage cupboards. You can also access this floor via the main front door. Leading to the second floor, there is a double bedroom overlooking the front aspect, the fourth bedroom to the rear elevation which is also a good size, and the main bathroom which comprises of a four-piece suite including shower cubicle, standalone bath, WC, hand-wash basin and towel rail.

To the rear, there is a gorgeous, low maintenance southwest-facing back garden, with ample room for alfresco dining and entertaining. Located to the front is a courtyard with custom-built bicycle/refuse shed.

Vendor's Comments -

We love the location and the house, hopefully people can see that we’ve made it really welcoming family home!

There is an active community, with WhatsApp groups that are very active for borrowing things, sharing news etc. There are also many long term residents with pride in the local community: Fortnightly litter picking; Chandos Road Festival; Window Wanderland, Pub Quizzes at the Red Monkey (and live music at least weekly!).

Chandos Road is becoming a real go to foodie area within Bristol and we love the fact we can also walk to Whiteladies Road in 6 min and Gloucester Road in 8mins.

Lansdown Road isn't really used as a through road and, with respectful drivers, it has been a great place to teach our toddler how to scooter and ride his bike.

Schools -

Cotham Gardens Primary School approx. 0.2 miles
SS Peter and Paul Primary School approx. 0.2 miles
Cotham School approx. 0.3 miles
Redland Green School approx. 0.3 miles
St Johns CoE Primary School approx. 0.5 miles

Location -

Redland exudes historic charm with its Victorian and Edwardian architecture. Green spaces like Cotham Gardens and Redland Green provide peace and quiet, while independent shops and cafés offer a unique local experience. Chandos Road is famous for its array of highly regarded eateries, including Snobby’s and the Michelin Star Wilson’s.

Cultural richness thrives with art galleries and theatres, whilst Redland is also home to Bristol University and Redland Green School, meaning it is also an academic hub within the city.

Redland's strategic location ensures easy transportation access, making it a gateway to explore Bristol and beyond. Diverse dining options, family-friendly amenities, and a blend of history and modernity make Redland a special destination within Bristol's vibrant tapestry.

EPC Graph for Lansdown Road | Redland