Unit 1b, 42a, Kenn Road, Clevedon, BS21 6EW

Asking Price £200,000 - Sold Subject to Contract

  • Workshop/industrial unit
  • Approximately 1,784 sq ft
  • Parking space
  • Easy access to Bristol
  • Potential rental income of £18,000pa.



Require Finance?

Compare Property Finance from over 100 lenders
Click HERE to start your search

A representive from South West Business Finance will contact you to discuss your options



Share:

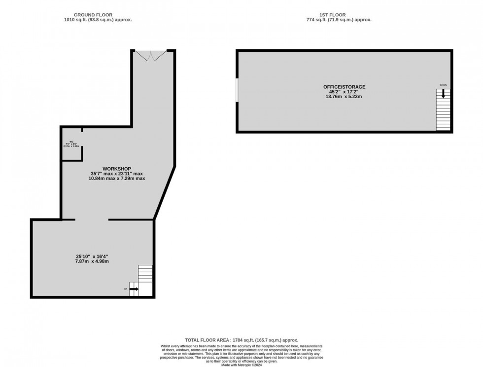
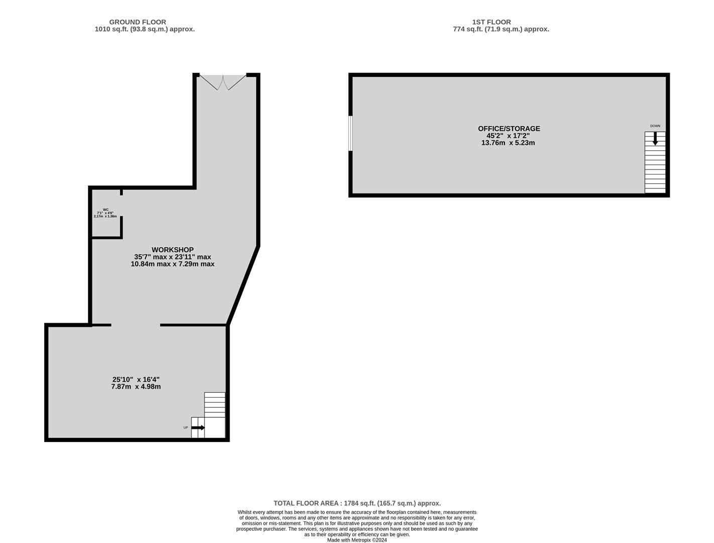
This two-storey workshop/light industrial unit spans approximately 1,784 sq ft located on Kenn Road, Clevedon. The ground floor provides around 1,010 sq ft of workshop area and toilet facilities. Above, the first floor encompasses approximately 774 sq ft, which can be utilized for office space or additional storage. This configuration allows for an efficient workflow, separating operational and administrative functions.
Additionally, the unit comes with the advantage of one designated parking space and a new cold water tap has been connected by the entrance to the unit. Offered for sale on a new 999 long leasehold basis with vacant possession. Potential rental income of £18,000pa.

DESCRIPTION -

This two-storey workshop/light industrial unit spans approximately 1,784 sq ft, offering a versatile space for various business needs. The ground floor provides around 1,010 sq ft of workshop area with toilet facilities. Above, the first floor encompasses approximately 774 sq ft, which can be utilized for office space or additional storage. This configuration allows for an efficient workflow, separating operational and administrative functions.
Additionally, the unit comes with the advantage of one designated parking space. Potential rental income of £18,000pa.

LOCATION -

The unit is situated on Kenn Road, Clevedon, offering convenient access to both local amenities and major transport routes. Kenn Road is accessible via the M5 motorway. Junction 20 (Clevedon) is the nearest exit, providing easy access to Bristol (approximately 13 miles to the northeast) and Weston-super-Mare (approximately 12 miles to the southwest).

TENURE -

To be sold on a new 999 long leasehold basis.

BUSINESS RATES -

The unit needs to be re rated in due course.

ENERGY PERFORMANCE CERTIFICATE (EPC) -

EPC rating: C

FLOOR PLAN -

The floor plan is provided for indicative purposes only and should not be relied upon.

VAT -

All figures quoted are exclusive of VAT unless otherwise stated.

VIEWINGS -

By appointment with Maggs & Allen.

CONTROL OF ASBESTOS REGULATIONS -

As per the Control of Asbestos Regulations 2012, the owner or tenant of the property, or anyone else who has control over it and/or responsibility for maintaining it, must comply with the regulations which may include the detection of and/or management of any asbestos or asbestos related compounds contained at the property. Maggs & Allen has not tested or inspected for asbestos and therefore recommend all interested parties to make their own enquiries.