Welcomed to this market is this sizeable two-bedroom, first floor balcony flat in a superb spot on the borders of Redland and Westbury Park. Offering excellent room sizes in great condition, as well as allocated off-street parking, the property is offered with no onward chain.
Property Details -
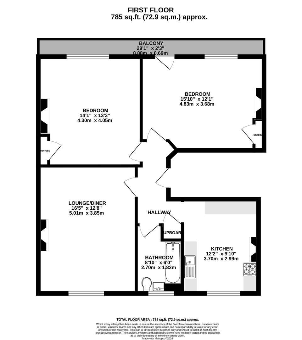
Boasting beautiful curb appeal with Edwardian frontage with private balcony, comes this larger than average two-bedroom first floor flat. Internally the property retains many of its original features, include ornate fireplaces, ceiling roses and cornicing. Good dimensions including high ceilings create a real feeling of space, and this further accentuated by the contemporary decor.
The flat is entered into via a welcoming, wide hallway/landing which provides access to each of the rooms. Each of the bedrooms are spacious light-filled double bedrooms, with beautiful feature fireplaces, cornicing and neutral décor. The second of these bedrooms offers direct access to a private balcony which spans the property.
Unlike many flats, the living/dining room is separate from the kitchen and is again presented in modern décor, with an ornate feature fireplace, cornicing and boasting views from the rear of the property. This room comfortable accommodates lounge and dining furniture due to its generous proportions.
Completing the internal aspect of the flat is the kitchen, fitted with a range of base and wall-mounted units, integrated electric hob & oven, feature fireplace, and far-reaching views.
Externally there is off-street parking for one car.
A superb offering likely to command strong interest. Call Maggs & Allen to arrange your priority viewing.
Location -
Redland exudes historic charm with its Victorian and Edwardian architecture. Green spaces like Cotham Gardens and Redland Green provide peace and quiet, while independent shops and cafés offer a unique local experience. Chandos Road is famous for its array of highly regarded eateries, including Snobby’s and the Michelin Star Wilson’s.
Cultural richness thrives with art galleries and theatres, whilst Redland is also home to Bristol University and Redland Green School, meaning it is also an academic hub within the city.
Redland's strategic location ensures easy transportation access, making it a gateway to explore Bristol and beyond. Diverse dining options, family-friendly amenities, and a blend of history and modernity make Redland a special destination within Bristol's vibrant tapestry.
Schools -
Westbury Park School - Distance: 0.11 miles Redland Green School - Distance: 0.36 miles Henleaze Junior School - Distance: 0.53 miles St Johns Church of England Primary School, Clifton - Distance: 0.63 miles
The Ministry of Housing Communities & Local Government have confirmed the housing market remains open.
All of our departments will be open for business as usual but please be assured that stringent measures are being followed to ensure of the safety of all our clients and staff.
We will continue to offer both physical and virtual valuations and viewings for residential, auction, commercial and lettings as will at our full range of RICS surveys.
If we can be of any assistance please get in touch:
Henleaze: 0117 949 9000 Clifton: 0117 973 4940
Residential Stamp Duty Calculator
Calculate Your Stamp Duty
Results
Stamp Duty To Pay:
Effective Rate:
Tax Band
%
Taxable Sum
Tax
* The calculated figures are offered as a guide only. We advise interested parties to seek advice
from their legal representative.
Commercial Stamp Duty Calculator
Calculate Stamp Duty
Results
Stamp Duty To Pay
£0.00
Effective Rate
2%
Tax Band
%
Taxable Sum
Tax
* The calculated figures are offered as a guide only. We advise interested parties to seek advice
from their legal representative.
Do you want to purchase this property prior to the auction?
Complete the form below to submit a pre-auction offer. Please
note that the property will only be removed from the auction once contracts have
been exchanged. Offers can only be submitted once the legal pack is available.