15, Chandos Road, Redland, Bristol, BS6 6PG

£600,000 - Sold at Auction

6
  • Guide Price: £575,000+
  • September 2023 Auction
  • 6-bedroom student Let
  • Let producing £46,440 per annum
  • 8-week completion



Require Finance?

Compare Property Finance from over 100 lenders
Click HERE to start your search

A representive from South West Business Finance will contact you to discuss your options



Share:

SOLD FOR £600,000 - A substantial three storey period property arranged as a 6-bedroom student let, situated in the heart of Redland on Chandos Road. The property is fully let for the 2023/2024 academic year producing a total rent of £46,440 per annum and offers scope to increase the rent in the future if general modernisation works are carried out. This fantastic location is ideally suited to both Bristol University and UWE students with a superb range of cafes, bars and restaurants on the doorstep. To the rear of the property is a rear courtyard garden and roof terrace. A rare opportunity to acquire a high-yielding freehold residential investment.

FOR SALE BY AUCTION -

This property is due to feature in our online auction on 14 September 2023 at 6.00pm. Bidding is via proxy, telephone or online remote bidding.

VIEWINGS -

By appointment.

SUMMARY -

SOLD FOR £600,000 - 6-BEDROOM STUDENT LET - PRODUCING £46,440 PER ANNUM

DESCRIPTION -

A substantial three storey period property arranged as a 6-bedroom student let, situated in the heart of Redland on Chandos Road. The property is fully let for the 2023/2024 academic year producing a total rent of £46,440 per annum and offers scope to increase the rent in the future if general modernisation works are carried out. This fantastic location is ideally suited to both Bristol University and UWE students with a superb range of cafes, bars and restaurants on the doorstep. To the rear of the property is a rear courtyard garden and roof terrace. A rare opportunity to acquire a high-yielding freehold residential investment.

LOCATION -

The property is situated in a prime position on Chandos Road amongst a wide range of independent shops, cafes, bars and restaurants including The Kensington Arms and Little Hollows. Easy access is provided to Bristol University, Whiteladies Road, Redland train station and Bristol city centre.

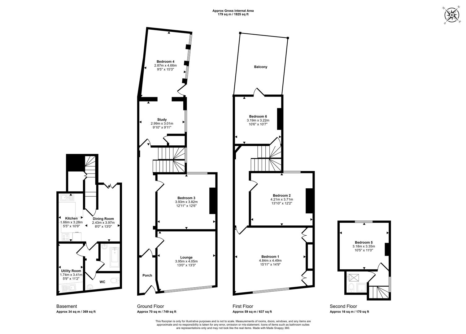
ACCOMMODATION -

The ground floor accommodation is arranged to provide a living room and two double bedrooms with stairs leading to the basement level and first floor. The basement level comprises a kitchen/diner, utility room, bathroom and WC. On the first floor are three further bedrooms (one with access onto the rear roof terrace) and stairs leading up to the sixth bedroom and a shower room.

TENANCY DETAILS -

The property is let to 6 students on an Assured Shorthold Tenancy agreement from 05/07/2023 - 18/06/2024 at a rent of £46,440 per annum (£645 pcm per room). The property has been let through Flatline who anticipate an increased market rent of £48,600 per annum (£675 pcm per room) for the 2024/2025 academic year.

TENURE -

The property is to be sold on a freehold basis, subject to the tenancy agreement above.

COMPLETION -

Completion for this lot will be 8 weeks from exchange of contracts or sooner by mutual agreement.

HMO LICENSING & PLANNING -

The client informs us that they have a HMO Licence. Full details will be available within the legal pack.
HMO licensing regulations and planning requirements are subject to regular changes, updates and even individual interpretations by the Local Authority. Prospective buyers are therefore required to make their own enquiries with the Local Authority and review the documents contained in the auction legal pack fully to satisfy themselves that the property is compliant in this respect. Maggs & Allen accept no liability in the event that any Licensing or Planning requirements/documents are not in order at the point of sale.

ENERGY PERFORMANCE CERTIFICATE -

Rating: D

AUCTION OR BRIDGING FINANCE REQUIRED? -

Do you need a mortgage or loan quickly?

Maggs & Allen have specialist Independent Brokers who can arrange residential and commercial finance on all types of property.

Contact the Auction Team today to be put through to our mortgage and loan experts on 0117 9734940 or email admin@maggsandallen.co.uk

BUYER'S PREMIUM -

Please be advised that all purchasers are subject to a £1,250 plus VAT (£1,500 inc VAT) buyer’s premium payable upon exchange of contracts.

*GUIDE PRICE -

Guide Prices are provided as an indication of each seller's minimum expectation. They are not necessarily figures which a property will sell for and may change at any time prior to the auction. Each property will be offered subject to Reserve Price (a figure below which the Auctioneer cannot sell the property during the auction) which we expect will be set within the Guide Range or no more than 10% above a single figure Guide.

RESERVE PRICE -

The seller's minimum acceptable price at auction and the figure below which the auctioneer cannot sell. The reserve price is not disclosed and remains confidential between the seller and the auctioneer. Both the guide price and the reserve price can be subject to change up to and including the day of the auction.

PROXY, TELEPHONE & ONLINE REMOTE BIDDING -

The auction will be held online via live video stream with buyers able to bid via telephone, online or by submitting a proxy bid. You will need to complete our remote bidding form, which is available to download from our website. The completed form, ID (driving licence or passport and a recent utility bill stating the home address of the purchaser) and a bank transfer for the Preliminary Deposit must be received no later than 24 hours before the date of the auction.

PRELIMINARY DEPOSITS -

The Preliminary Deposit required for each lot you wish to bid for will be calculated based upon the Guide Price as follows:

£1,000 - £50,000: £2,000.
£51,000 - £150,000: £5,000
£151,000 and above: £10,000

If your bid is successful, the balance of the deposit monies and Buyer's Premium (£1,500 inc VAT) must be transferred to our client account within 24 hours of the auction sale. If you are unsuccessful at the auction, your Preliminary Deposit will be returned to you.