Whitehall Road, Whitehall, Bristol, BS5 9BP

£204,000 - Sold at Auction

  • Guide Price £185,000
  • April 2024 Auction
  • Mixed-use Investment Property
  • Scope for residential conversion
  • Potential rental income of circa £22,400 per annum
  • 8 week completion

REGISTER TO BID

MAKE A PRE-AUCTION OFFER



Require Finance?

Compare Property Finance from over 100 lenders
Click HERE to start your search

A representive from South West Business Finance will contact you to discuss your options



Share:

A two storey mixed-use property that is currently arranged as a ground floor takeaway with residential living accommodation above and an enclosed courtyard to the rear. The property offers scope to separate the ground floor takeaway by flipping the direction of the stairs and a spacious self-contained flat could then be created on the first floor. There may also be potential to convert the whole property to a house or two flats, subject to consents. The property is offered for sale with vacant possession and presents a superb opportunity for investors, developers and takeaway/restaurant operators.

FOR SALE BY AUCTION -

This property is due to feature in our online auction on 25 April 2024 at 6.00pm. Bidding is via proxy, telephone or online remote bidding.

VIEWINGS -

By appointment.

SUMMARY -

SOLD FOR £204,000 - FREEHOLD MIXED-USE INVESTMENT - POTENTIAL FOR RESIDENTIAL CONVERSION

DESCRIPTION -

A two storey mixed-use property that is currently arranged as a ground floor takeaway with residential living accommodation above and an enclosed courtyard to the rear. The property offers scope to separate the ground floor takeaway by flipping the direction of the stairs and a spacious self-contained flat could then be created on the first floor. There may also be potential to convert the whole property to a house or two flats, subject to consents. The property is offered for sale with vacant possession and presents a superb opportunity for investors, developers and takeaway/restaurant operators.

LOCATION -

The property is situated on Whitehall Road in Whitehall and provides easy access to a range of local amenities on Church Road in St George. Excellent transport links are also provided to the city centre.

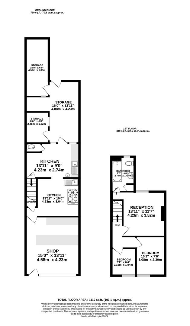
ACCOMMODATION -

Please refer to floorplan for approximate room measurements and internal layout.

GROUND FLOOR -

The ground floor comprises a takeaway with commercial kitchen, residential kitchen for the living accommodation, various store rooms and WC.

FIRST FLOOR -

Currently comprising a living room, two bedrooms and a bathroom.

OUTSIDE -

There is an enclosed courtyard garden to the rear.

RENTAL POTENTIAL -

On the basis that the direction of the stairs is rotated in order to create a self-contained flat on the first floor, we would anticipate the following rental figures:

Ground Floor Takeaway: £12,000 Per Annum
First Floor Flat: £900 pcm (£10,800 Per Annum)

TOTAL: £22,800 Per Annum

TENURE -

We understand the property to be freehold. Please refer to the online legal pack for confirmation.

COMPLETION -

Completion for this lot will be 8 weeks from exchange of contracts or sooner by mutual agreement.

ENERGY PERFORMANCE CERTIFICATE (EPC) -

Rating: C

LETTING - WHAT CAN MAGGS & ALLEN ACHIEVE FOR YOU? -

Maggs & Allen's experienced letting team are happy to discuss the rental of this property and can advise on maximising the investment. We offer Full Management, Let Only and Rent Collection Services. Contact Jessica Archer and her team on 0117 9499000 or email lettings@maggsandallen.co.uk.

AUCTION OR BRIDGING FINANCE REQUIRED? -

Do you need a mortgage or loan quickly? Maggs & Allen have specialist Independent Brokers who can arrange residential and commercial finance on all types of property. Contact the Auction Team today to be put through to our mortgage and loan experts on 0117 9734940 or email admin@maggsandallen.co.uk

BUYER'S PREMIUM -

Please be advised that all purchasers are subject to a £1,250 plus VAT (£1,500 inc VAT) buyer’s premium payable upon exchange of contracts.

*GUIDE PRICE -

Guide Prices are provided as an indication of each seller's minimum expectation. They are not necessarily figures which a property will sell for and may change at any time prior to the auction. Each property will be offered subject to Reserve Price (a figure below which the Auctioneer cannot sell the property during the auction) which we expect will be set within the Guide Range or no more than 10% above a single figure Guide.

RESERVE PRICE -

The seller's minimum acceptable price at auction and the figure below which the auctioneer cannot sell. The reserve price is not disclosed and remains confidential between the seller and the auctioneer. Both the guide price and the reserve price can be subject to change up to and including the day of the auction.

PROXY, TELEPHONE & ONLINE REMOTE BIDDING -

The auction will be held online via live video stream with buyers able to bid via telephone, online or by submitting a proxy bid. You will need to complete our remote bidding form, which is available to download from our website. The completed form, ID (driving licence or passport and a recent utility bill stating the home address of the purchaser) and a bank transfer for the Preliminary Deposit must be received no later than 24 hours before the date of the auction.

PRELIMINARY DEPOSITS -

The Preliminary Deposit required for each lot you wish to bid for will be calculated based upon the Guide Price as follows:

£1,000 - £150,000: £5,000
£151,000 and above: £10,000

If you bid is successful, the balance of the deposit monies and Buyer’s Premium (1,500 inc VAT) must be transferred to our client account within 24 houra of the auction sale. If you are unsuccessful at the auction, your Preliminary Deposit will be returned to you within 5 working days.

RENTAL ESTIMATES -

All rental estimates are provided in good faith. They should be verified by your own professional advisors prior to a commitment to purchase.