The Stream, Hambrook, Bristol, BS16 1RG

£381,000 - Sold at Auction

2
  • Guide Price £275,000
  • April 2024 Auction
  • Semi-detached period property with potential to extend
  • large garden & detached garage
  • 8-week completion

REGISTER TO BID

MAKE A PRE-AUCTION OFFER



Require Finance?

Compare Property Finance from over 100 lenders
Click HERE to start your search

A representive from South West Business Finance will contact you to discuss your options



Share:

A spacious semi-detached 2-bedroom cottage occupying a generous plot of approximately 0.13 acres in a delightful location in Hambrook. The property retains an array of quirky and original features throughout and whilst in need of renovation, lends itself perfectly private buyers seeking a project as well as investors and developers. Externally, there is a large driveway, a detached garage and generous mature gardens to the front side and rear that also offer potential to extend, subject to consents. Located on The Stream in Hambrook, the property provides excellent access in and out of Bristol via the M32.

FOR SALE BY AUCTION -

This property is due to feature in our online auction on 25 April 2024 at 6.00pm. Bidding is via proxy, telephone or online remote bidding.

VIEWINGS -

By appointment.

SUMMARY -

SOLD FOR £381,000 - SEMI-DETACHED PERIOD COTTAGE ON A LARGE PLOT WITH POTENTIAL TO EXTEND

DESCRIPTION -

This two-bedroom semi-detached property presents a rare opportunity to create a stunning home in this sought after location. In need of full refurbishment, the property oozes charm and character as well as offering great potential to extend at ground and first floor levels, subject to obtaining necessary consents. Positioned towards the north-eastern boundary the property overlooks the beautiful wrap around gardens, which are laid mostly to lawn and also feature a secluded patio to the rear.
Despite its secluded location, easy access is provided in out and out of Bristol via the M32. Further benefits include a private driveway as well as a larger than average detached garage. A superb opportunity for private buyers looking for a project or developers/investors given the significant scope to add value.

LOCATION -

Lockstone Leaze is nestled neatly between Old Gloucester Road and Bristol Road on The Stream in Hambrook, a quiet residential street . The very popular The White Horse is within walking distance and excellent transport links are provided via the A4174 Ring Road and M32.

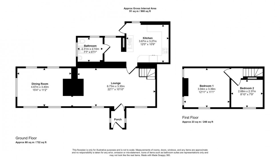
ACCOMMODATION -

Please refer to floorplan for approximate room measurements and internal layout.

GROUND FLOOR -

Comprising a porch, two reception rooms, kitchen, store room and bathroom.

FIRST FLOOR -

Comprising two bedrooms.

OUTSIDE -

There is a large driveway that crosses over the stream, a detached garage and open lawn to the front/side of the property. To the rear is a sizeable patio.

TENURE -

We understand the property is freehold, please refer to the legal pack for confirmation.

COMPLETION -

Completion for this lot will be 8 weeks from exchange of contracts or sooner by mutual agreement.

ENERGY PERFORMANCE CERTIFICATE (EPC) -

Rating: G

AUCTION OR BRIDGING FINANCE REQUIRED? -

Do you need a mortgage or loan quickly? Maggs & Allen have specialist Independent Brokers who can arrange residential and commercial finance on all types of property. Contact the Auction Team today to be put through to our mortgage and loan experts on 0117 9734940 or email admin@maggsandallen.co.uk

BUYER'S PREMIUM -

Please be advised that all purchasers are subject to a £1,250 plus VAT (£1,500 inc VAT) buyer’s premium payable upon exchange of contracts.

*GUIDE PRICE -

Guide Prices are provided as an indication of each seller's minimum expectation. They are not necessarily figures which a property will sell for and may change at any time prior to the auction. Each property will be offered subject to Reserve Price (a figure below which the Auctioneer cannot sell the property during the auction) which we expect will be set within the Guide Range or no more than 10% above a single figure Guide.

RESERVE PRICE -

The seller's minimum acceptable price at auction and the figure below which the auctioneer cannot sell. The reserve price is not disclosed and remains confidential between the seller and the auctioneer. Both the guide price and the reserve price can be subject to change up to and including the day of the auction.

PROXY, TELEPHONE & ONLINE REMOTE BIDDING -

The auction will be held online via live video stream with buyers able to bid via telephone, online or by submitting a proxy bid. You will need to complete our remote bidding form, which is available to download from our website. The completed form, ID (driving licence or passport and a recent utility bill stating the home address of the purchaser) and a bank transfer for the Preliminary Deposit must be received no later than 24 hours before the date of the auction.

PRELIMINARY DEPOSITS -

The Preliminary Deposit required for each lot you wish to bid for will be calculated based upon the Guide Price as follows:

£1,000 - £150,000: £5,000
£151,000 and above: £10,000

If you bid is successful, the balance of the deposit monies and Buyer’s Premium (1,500 inc VAT) must be transferred to our client account within 24 houra of the auction sale. If you are unsuccessful at the auction, your Preliminary Deposit will be returned to you within 5 working days.

LETTING - WHAT CAN MAGGS & ALLEN ACHIEVE FOR YOU? -

Maggs & Allen's experienced letting team are happy to discuss the rental of this property and can advise on maximising the investment. We offer Full Management, Let Only and Rent Collection Services. Contact Jessica Archer and her team on 0117 9499000 or email lettings@maggsandallen.co.uk.

RENTAL ESTIMATES -

All rental estimates are provided in good faith. They should be verified by your own professional advisors prior to a commitment to purchase.

EPC Graph for The Stream, Hambrook, Bristol