Church House, 74 Long Ashton Road, Long Ashton, BS41 9LE

Guide Price £350,000 - Sold Subject to Contract

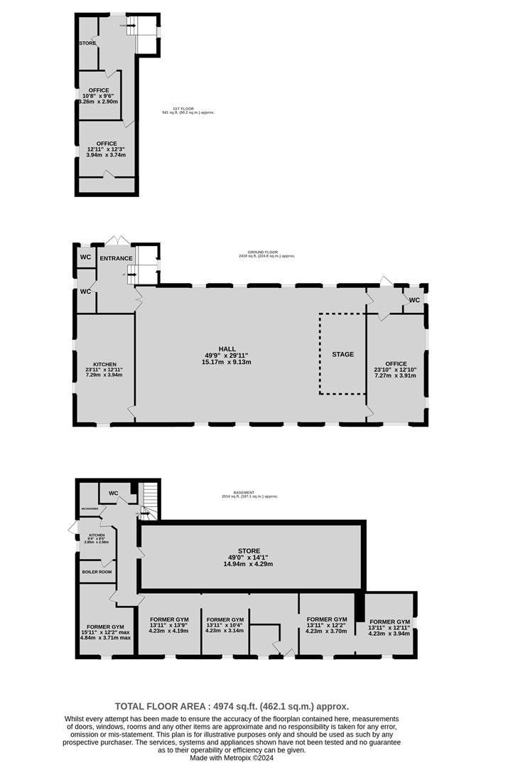
  • Approx. 4,974 ft²
  • 3 Storey's
  • Popular Village Location
  • Potential for Redevelopment Subject to Consents



Require Finance?

Compare Property Finance from over 100 lenders
Click HERE to start your search

A representive from South West Business Finance will contact you to discuss your options



Share:

Church House is a stunning and spacious building of just under 5,000 ft² situated in the heart of Long Ashton. The property is arranged over ground, lower ground, and partial first floor and offers potential to extend the first floor further.

The property dates back to 1907 and has latterly been utilised by a variety of businesses. The lower ground floor was previously let to a gym operator, the ground floor provides a large hall, and the first floor offices were previously let to various local businesses. Now offered for sale with vacant possession, the building requires maintenance but offers potential for various community uses and both residential and commercial redevelopment, subject to consents. Please note, the large car park to the side of the hall is not included in the sale.

DESCRIPTION -

Church House is a stunning and spacious building of just under 5,000 ft² situated in the heart of Long Ashton. The property is arranged over ground, lower ground, and partial first floor and offers potential to extend the first floor further.

The property dates back to 1907 and has latterly been utilised by a variety of businesses. The lower ground floor was previously let to a gym operator, the ground floor provides a large hall, and the first floor offices were previously let to various local businesses. Now offered for sale with vacant possession, the building requires maintenance but offers potential for various community uses and both residential and commercial redevelopment, subject to consents. Please note, the large car park to the side of the building is not included in the sale.

LOCATION -

The Church House is situated on Long Ashton Road in the popular village of Long Ashton on the southern outskirts of Bristol. A range of local amenities are available within the village and easy access is provided to Ashton Court Estate and Bristol city centre.

ACCOMMODATION -

The ground floor is arranged as a large hall with two entrances from Long Ashton Road, with large commercial kitchen, office and toilet, with two further offices at first floor. The lower ground floor was previously let to a gym operator and is arranged as 6 rooms with further kitchen, toilet, shower room and large store, with pedestrian rear access.

Please refer to floor plan for approximate room measurements and internal layout.

BUSINESS RATES -

The lower ground floor was previously let to a gym operator and consequently, that area of the building is rated for Business Rates with a Rateable Vale of £8,500 (from April 2023).

LOCAL AUTHORITY -

North Somerset Council.

TENURE -

The property is offered for sale on a freehold basis with vacant possession.

A lease of the air space (for the solar panels on the roof) was granted on a 25-year term from 2015. This can be terminated with 6 months written notice and prospective purchasers are referred to the terms of the Lease for further details.

ENERGY PERFORMANCE CERTIFICATE (EPC) -

Rating: G

METHOD OF SALE -

Please note, only unconditional offers are invited.

Offers conditional on planning consent will not be considered.

FLOOR PLAN -

The floor plan and floor areas are provided for indicative purposes only and should not be relied upon.

VAT -

All figures quoted are exclusive of VAT unless otherwise stated.

VIEWINGS -

By appointment.