A well-proportioned four-bedroom family home occupying a generous corner plot, boasting a private rear garden, garage, driveway parking and well-presented accommodation throughout.
Property Details -
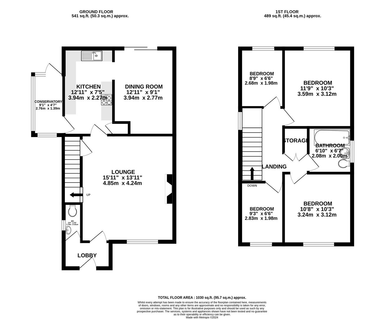
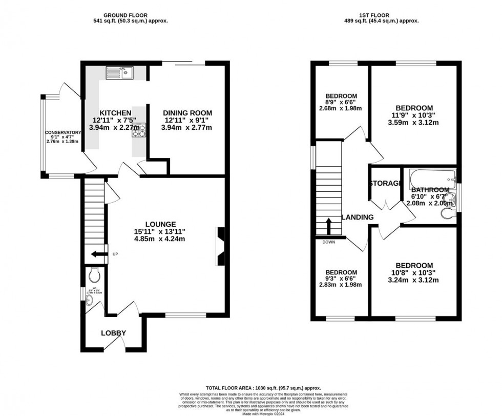
Entering in through a lobby with access to ground floor WC, you are welcomed into a spacious lounge with plentiful natural light, contemporary décor including feature fireplace, and under-stairs storage. From here, you will come to a fully fitted kitchen with range of base and wall-mounted units and providing access to both the dining room and a conservatory/sun room.
The rear garden benefits from a Westerly aspect, ensuring an ideal space for relaxing and entertaining with it being split across a lawned area, courtyard and decking. A rear access gate leads to the rear driveway and secure garage which is fully powered.
Ascending to the first floor onto a wide landing, you will find the four bedrooms - two double bedrooms and two single rooms, all of which are in excellent decorative order. A three-piece bathroom with shower-over-bath and sizeable storage cupboard complete the first floor.
A fantastic property located in a convenient location. Contact Maggs & Allen to arrange your viewing.
Location -
Brentry is a suburb of north Bristol, England, between Henbury and Southmead. Nearby, there are a number of well-regarded state and independent schools, as well access to the many shops, restaurants and amenities within walking distance of the property. Just a 9 minute drive away is the open space of Blaise Castle Estate with approx. 650 acres Grade II* registered parkland including children's play area, museum and castle. The property is also conveniently located within direct access to both Westbury Village and the Mall at Cribbs Causeway as well as Bristol City Centre and the M4/5 motorway links.
Schools -
Fonthill Primary Academy - Distance: 0.65 miles Brentry Primary School - Distance: 0.75 miles Charborough Road Primary School - Distance: 0.9 miles
The Ministry of Housing Communities & Local Government have confirmed the housing market remains open.
All of our departments will be open for business as usual but please be assured that stringent measures are being followed to ensure of the safety of all our clients and staff.
We will continue to offer both physical and virtual valuations and viewings for residential, auction, commercial and lettings as will at our full range of RICS surveys.
If we can be of any assistance please get in touch:
Henleaze: 0117 949 9000 Clifton: 0117 973 4940
Residential Stamp Duty Calculator
Calculate Your Stamp Duty
Results
Stamp Duty To Pay:
Effective Rate:
Tax Band
%
Taxable Sum
Tax
* The calculated figures are offered as a guide only. We advise interested parties to seek advice
from their legal representative.
Commercial Stamp Duty Calculator
Calculate Stamp Duty
Results
Stamp Duty To Pay
£0.00
Effective Rate
2%
Tax Band
%
Taxable Sum
Tax
* The calculated figures are offered as a guide only. We advise interested parties to seek advice
from their legal representative.
Do you want to purchase this property prior to the auction?
Complete the form below to submit a pre-auction offer. Please
note that the property will only be removed from the auction once contracts have
been exchanged. Offers can only be submitted once the legal pack is available.