High Street, Warmley, Bristol, BS15 4NF

£265,000 - Sold at Auction

2
  • Guide Price £230,000
  • February 2024 Auction
  • Attractive period two-bedroom cottage
  • Extensive gardens to the rear
  • Ideal for private buyers and investors
  • 6-week completion

An attractive and deceptively spacious two-bedroom period cottage, situated in a convenient location on the High Street in Warmley. The property benefits from an exceptionally large garden to the rear and offers superb value for money for private buyers, investors and developers.

FOR SALE BY AUCTION -

This property is due to feature in our online auction on 15 February 2024 at 6.00pm. Bidding is via proxy, telephone or online remote bidding.

VIEWINGS -

By appointment.

SUMMARY -

SOLD FOR £265,000 - ATTRACTIVE PERIOD COTTAGE WITH VERY LARGE GARDEN

DESCRIPTION -

An attractive and deceptively spacious two-bedroom period cottage, situated in a convenient location on the High Street in Warmley. The property benefits from an exceptionally large garden to the rear and offers superb value for money for private buyers, investors and developers.

LOCATION -

The property is situated on the High Street in Warmley, close to Warmley Forest Park and a range of local amenities. Easy access is provided to the A4174 Ring Road and Kingswood.

ACCOMMODATION -

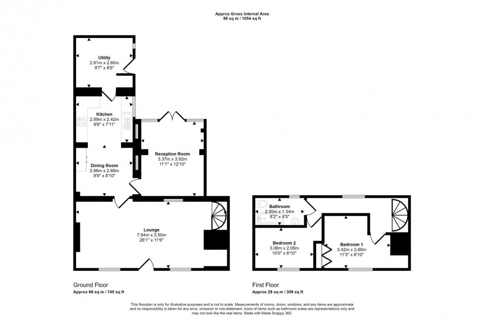
Please refer to floorplan for approximate room measurements and internal layout.

GROUND FLOOR -

Comprising a generous 25 ft living room, a kitchen/diner utility room and conservatory with double doors onto the rear garden.

FIRST FLOOR -

Comprising two bedrooms and a bathroom.

OUTSIDE -

The property benefits from a larger than average rear garden measuring approximately 110m in length and extending behind the garden of the adjoining property.

TENURE -

The property is for sale on a freehold basis with vacant possession.

COMPLETION -

Completion for this lot will be 6 weeks from exchange of contracts or sooner by mutual agreement.

ENERGY PERFORMANCE CERTIFICATE (EPC) -

Rating: E

BUYER'S PREMIUM -

Please be advised that all purchasers are subject to a £1,250 plus VAT (£1,500 inc VAT) buyer’s premium payable upon exchange of contracts.

*GUIDE PRICE -

Guide Prices are provided as an indication of each seller's minimum expectation. They are not necessarily figures which a property will sell for and may change at any time prior to the auction. Each property will be offered subject to Reserve Price (a figure below which the Auctioneer cannot sell the property during the auction) which we expect will be set within the Guide Range or no more than 10% above a single figure Guide.

RESERVE PRICE -

The seller's minimum acceptable price at auction and the figure below which the auctioneer cannot sell. The reserve price is not disclosed and remains confidential between the seller and the auctioneer. Both the guide price and the reserve price can be subject to change up to and including the day of the auction.

PROXY, TELEPHONE & ONLINE REMOTE BIDDING -

The auction will be held online via live video stream with buyers able to bid via telephone, online or by submitting a proxy bid. You will need to complete our remote bidding form, which is available to download from our website. The completed form, ID (driving licence or passport and a recent utility bill stating the home address of the purchaser) and a bank transfer for the Preliminary Deposit must be received no later than 24 hours before the date of the auction.

PRELIMINARY DEPOSITS -

The Preliminary Deposit required for each lot you wish to bid for will be calculated based upon the Guide Price as follows:

£1,000 - £50,000: £2,000
£51,000 - £150,000: £5,000
£151,000 and above: £10,000

If your bid is successful, the balance of the deposit monies and Buyer's Premium (£1,500 inc VAT) must be transferred to our client account within 24 hours of the auction sale. If you are unsuccessful at the auction, your Preliminary Deposit will be returned to you.

AUCTION OR BRIDGING FINANCE REQUIRED? -

Do you need a mortgage or loan quickly? Maggs & Allen have specialist Independent Brokers who can arrange residential and commercial finance on all types of property. Contact the Auction Team today to be put through to our mortgage and loan experts on 0117 9734940 or email admin@maggsandallen.co.uk

LETTING - WHAT CAN MAGGS & ALLEN ACHIEVE FOR YOU? -

Maggs & Allen's experienced letting team are happy to discuss the rental of this property and can advise on maximising the investment. We offer Full Management, Let Only and Rent Collection Services. Contact Jessica Archer and her team on 0117 9499000 or email lettings@maggsandallen.co.uk.

EPC Graph for High Street, Warmley, Bristol