Windyridge, Knowle Hill, Chew Magna, Bristol, BS40 8TQ

Asking Price £550,000 - Sold Subject to Contract

4
  • Substantial detached house for improvement
  • Planning granted to extend creating a superb family home
  • Generous plot of approx. 0.52 acres with far reaching views

A charming cottage currently arranged as a 4-bedroom house along with a 2-bedroom annex. Situated on a generous plot of approx. 0.52 arches, the property benefits from a detached garage, gated driveway to the side and wrap around views of the Chew Valley. Full planning consent was granted on 25 October 2023 for the repair of core historic cottages, demolition of modern extensions and garage, and the construction of new extension to create a superb house. An excellent opportunity for developers or those looking for a project.

SUMMARY -

SUBSTANTIAL COUNTRY PROPERTY FOR RENOVATION WITH PLANNING GRANTED TO EXTEND

DESCRIPTION -

A charming cottage currently arranged as a 4-bedroom house along with a 2-bedroom annex. Situated on a generous plot of approx. 0.52 arches, the property benefits from a detached garage, gated driveway to the side and wrap around views of the Chew Valley. Full planning consent was granted on 25 October 2023 for the repair of core historic cottages, demolition of modern extensions and garage, and the construction of new extension to create a superb house. An excellent opportunity for developers or those looking for a project.

VIEWINGS -

By appointment.

LOCATION -

Windyridge is located on a prominent position on Knowle Hill with panoramic views across the Chew Valley. The property is a short walk from the highly rated Pony pub as well as is a short drive from the market down of Chew Magna.

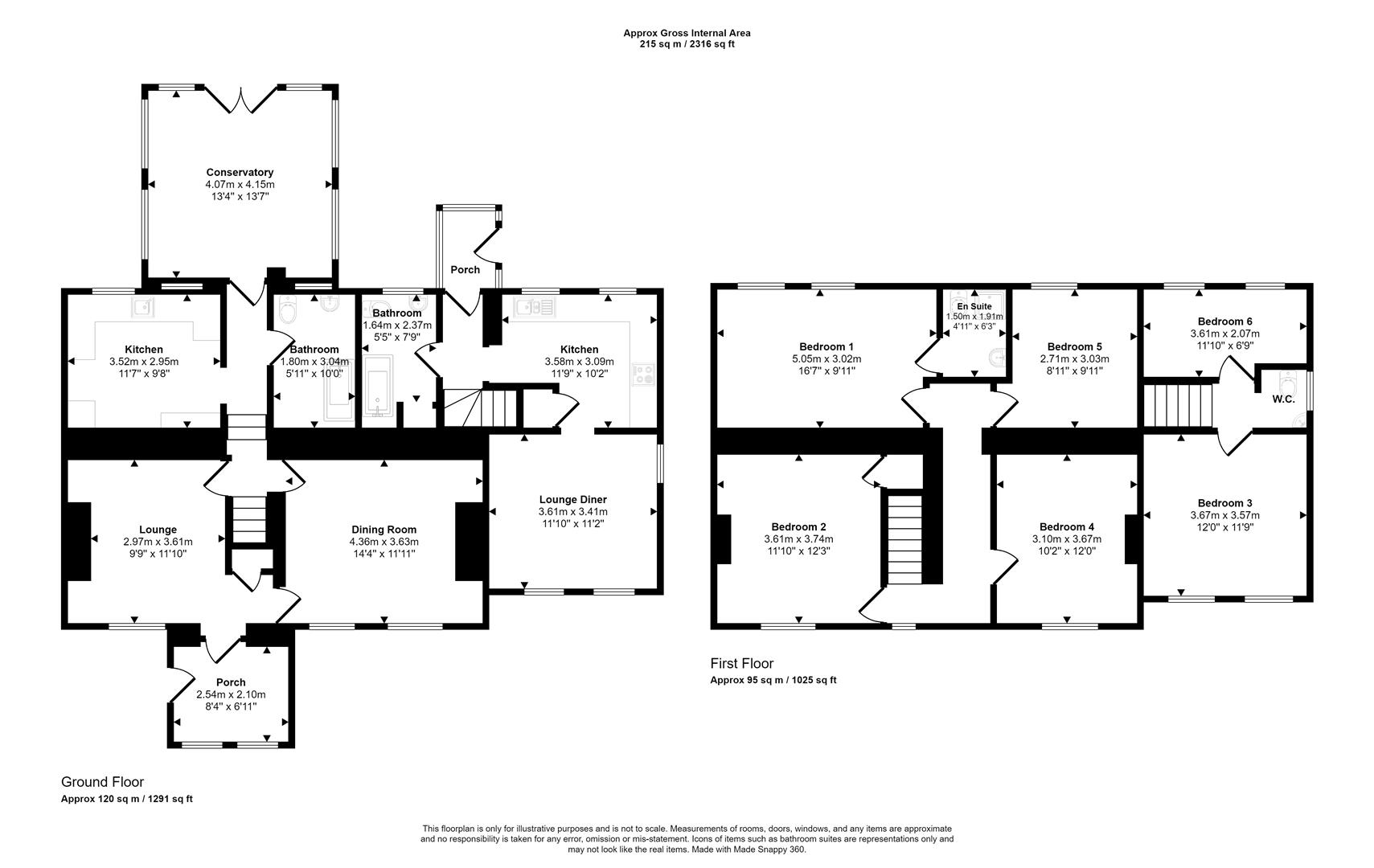
ACCOMMODATION -

Please refer to floorplan for approximate room measurements and internal layout.

WINDYRIDGE -

Comprising a porch, two sizeable reception rooms, kitchen, bathroom and large dining room backing onto the garden. On the second floor you'll find three double bedrooms one with en-suite and a further single room.

ANNEX -

Comprising a lounge, kitchen and family bathroom on the ground floor with a two bedrooms and a toilet on the first floor.

OUTSIDE -

The property benefits from a large sloping garden to the rear, driveway to the side along with a detached garage.

PLANNING -

Full planning consent was granted on 25 October 2023 for the repair of core historic cottages, demolition of modern extensions and garage, and the construction of new extension under Application No. 23/02646/FUL.

ENERGY PERFORMANCE CERTIFICATE (EPC) -

Rating: E

TENURE -

Freehold

LOCAL AUTHORITY -

Bath & North East Somerset.

LETTING - WHAT CAN MAGGS & ALLEN ACHIEVE FOR YOU? -

Maggs & Allen's experienced letting team are happy to discuss the rental of this property and can advise on maximising the investment. We offer Full Management, Let Only and Rent Collection Services. Contact Jessica Archer and her team on 0117 9499000 or email lettings@maggsandallen.co.uk.

RENTAL ESTIMATES -

All rental estimates are provided in good faith. They should be verified by your own professional advisors prior to a commitment to purchase.

EPC Graph for Knowle Hill, Chew Magna, Bristol