10, Cornwallis Crescent, Clifton, Bristol, BS8 4PL

Asking Price £1,400,000 - Sold

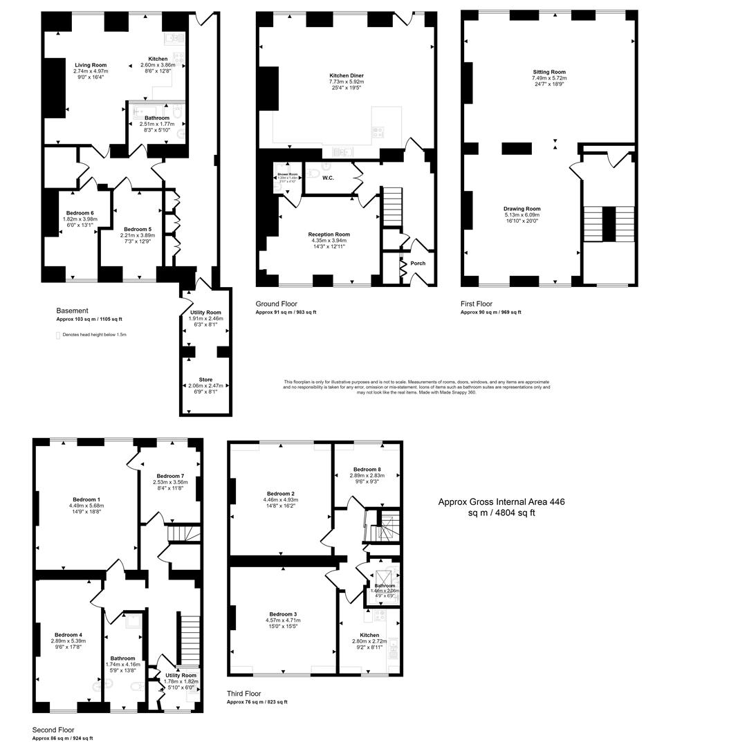
8 4 4
  • An imposing, Grade II* listed late-Georgian residence
  • Spread across 5 floors, offering flexible use
  • Features striking principal rooms adorned with original period details and large sash windows
  • Delightful canopied balcony with elevated position and sunny southerly views
  • Situated approximately 300m from Clifton Village
  • Period detail throughout, including high ceilings with ornate cornices, large sash windows with working shutters, fireplaces and a fine original staircase.
  • Expansive, beautifully maintained communal garden for exclusive use by Cornwallis Crescent residents
  • In need of modernisation, with scope to reconfigure the current layout
  • Current configuration features one self-contained basement flat
  • Measuring approx. 446 sq m / 4804 sq ft

A handsome and imposing Grade II* listed family home owned by the same family for over 50 years, 10 Cornwallis Crescent exudes period charm throughout. A truly stunning offering with tremendous potential, the property is offered with no onward chain.

Property Details -

Cornwallis Crescent is undoubtedly one of Bristol's most prestigious addresses, boasting an unbroken row of stunning Georgian townhouses with remarkable views of the city and beyond.

The entrance vestibule leads to a reception hall which in turn opens to the sizeable kitchen/living room featuring a detailed ceiling cornice, a ceiling height of 13 feet, ornate feature archway and gas-fired cast iron stove. Three tall Georgian windows at the rear fill the room with abundant southern light. Access to the terrace, situated above the gardens, is granted through a glazed door from this space. The terrace with its stone balustrade, overlooks stunning communal gardens featuring level lawns, mature trees, and established shrubbery—and is a real highlight of this tremendous offering.

Ascending to the first floor via a split level landing with built in book shelf, you will find a spacious sitting room to the rear, and at the front of the property a drawing room. This-open plan space benefits from gorgeous, ornate original features including cornice and large Georgian sash windows, from which is provided access to a full-width canopied balcony at the rear with beautiful, scenic views.

The second floor features two/three bedrooms, one of which could be converted into an en suite or dressing room, shower room and finally a utility room.

The top floor currently functions as a two-bedroom flat with its own kitchen, a three-piece bathroom with shower over-bath, lounge and two bedrooms. From the rear there are stunning views across Bristol.

Accessed independently from the front of the house via a stone staircase leading down to a courtyard, you will find two spacious storage vaults and the entrance to a self-contained 2-bedroom flat. An inner hallway guides you to the two bedrooms, three-piece bathroom and the kitchen/lounge-diner. This room serves dual purposes as a kitchen/dining area, featuring natural light from large sash windows. Accessed from the flat and situated at the rear of the property is a courtyard with ample space for seating and dining, two further vaults, and via an arcade. access to the beautiful communal gardens.

A property offering immense potential in a highly desirable location, whereby an early inspection is strongly recommended. Viewings strictly by appointment through Maggs & Allen.

Location -

Clifton Village exudes a timeless charm with its historic architecture, predominantly Georgian and Victorian buildings, creating a picturesque and inviting atmosphere. The area is renowned for its green spaces, including the scenic Clifton Downs and the iconic Clifton Suspension Bridge, offering residents ample opportunities for outdoor activities and leisurely strolls.

A stroll through the village reveals a unique and vibrant shopping experience, characterized by a range of independent shops, boutiques, and cafes that showcase the local businesses. Residents benefit from good transport links, including buses and local train services, facilitating convenient travel within the city. For those with a penchant for exploration beyond Clifton, major roads are easily accessible.

Schools -

Hotwells Primary School: 0.13 miles
Christ Church C of E Primary School: 0.41 miles
Clifton High School: 0.47 miles
Clifton College: 0.63 miles

EPC Graph for Cornwallis Crescent | Clifton