Fir Tree Lane, St George, Bristol, BS5 8BJ

£650,000 - Sold at Auction

4
  • Guide Price: £550,000
  • December 2023 Auction
  • Substantial detached family home (approx. 3,777 sq ft)
  • Renovated to a high standard with some finishing works required
  • Part-completed home office
  • 8-week completion

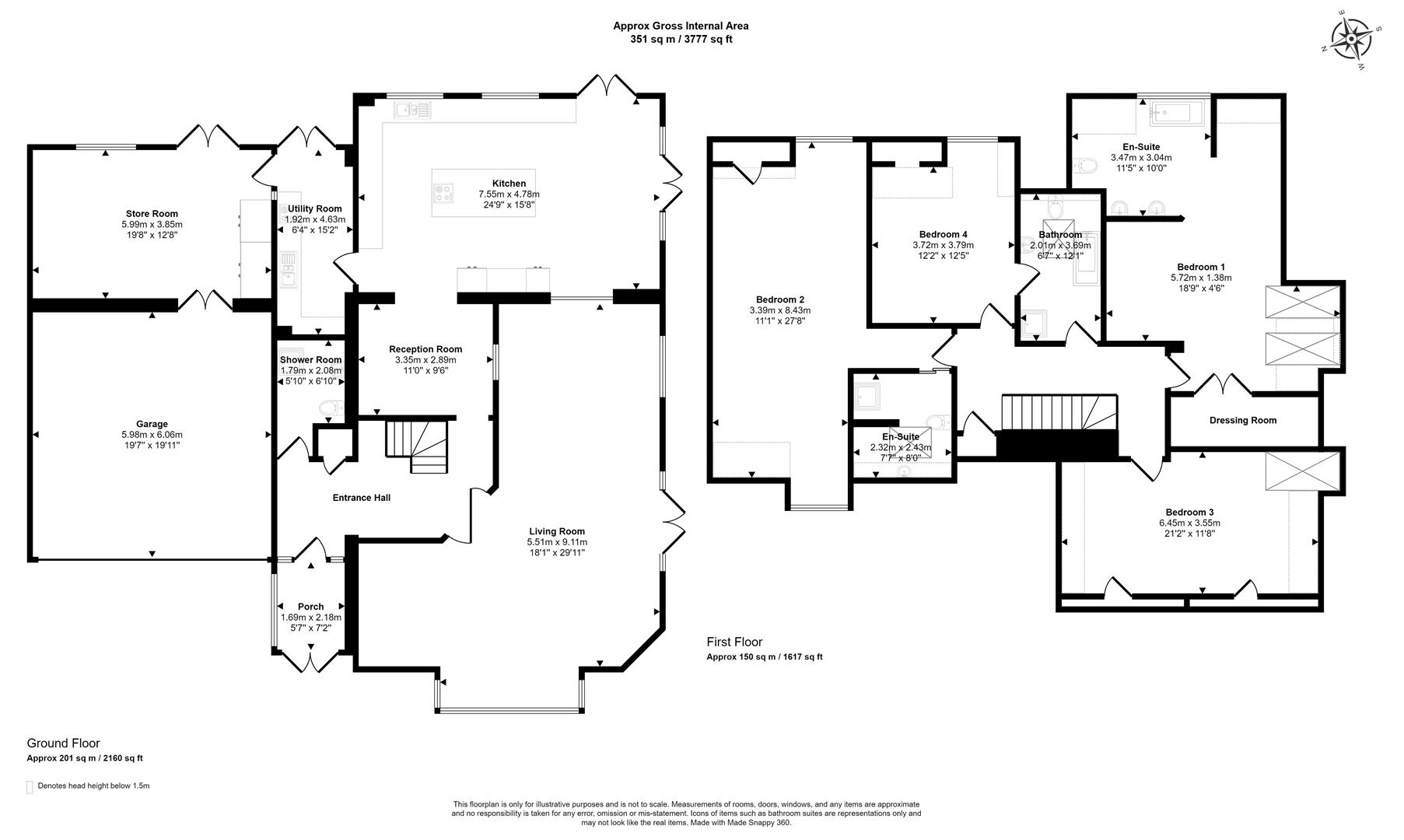
A substantial detached four-bedroom, four-bathroom family residence (approx. 3,777 sq ft), set in an elevated and secluded position with far reaching panoramic views towards the city. The property has been extensively improved by the current owner including the installation of a stunning high specification 25 ft kitchen and a generous dual aspect living/family room with Crittall style internal doors and windows. Finishing works are now required including the completion of an external home office and some internal decoration. Externally, the property benefits from a driveway to the front providing off-street parking and wrap around gardens to the side and rear.

FOR SALE BY AUCTION -

This property is due to feature in our online auction on 14 December 2023 at 6.00pm. Bidding is via proxy, telephone or online remote bidding.

VIEWINGS -

By appointment.

SUMMARY -

SOLD FOR £650,000 - SUBSTANTIAL DETACHED FAMILY HOME WITH STUNNING VIEWS

DESCRIPTION -

A substantial detached four-bedroom, four-bathroom family residence (approx. 3,777 sq ft), set in an elevated and secluded position with far reaching panoramic views towards the city. The property has been extensively improved by the current owner including the installation of a stunning high specification 25 ft kitchen and a generous dual aspect living/family room with Crittall style internal doors and windows. Finishing works are now required including the completion of an external home office and some internal decoration. Externally, the property benefits from a driveway to the front providing off-street parking and wrap around gardens to the side and rear.

LOCATION -

The property is situated in an enviable position at the head of a peaceful residential cul de sac in St George. There are stunning and far reaching panoramic views towards the city and easy access is provided to a wide range of local amenities.

ACCOMMODATION -

Please refer to floorplan for approximate room measurements and internal layout.

GROUND FLOOR -

Comprising a porch, entrance hall, shower room, L-shaped living/family room, a separate reception room, a generous and well-appointed kitchen with dual aspect windows and doors, utility room, large store room and an integral double garage.

FIRST FLOOR -

Comprising four large double bedrooms, two en-suite bathrooms and a main bathroom.

OUTSIDE -

The property benefits from a large driveway providing off-street parking for several vehicles and wrap around gardens to the side and rear.

HOME OFFICE -

The property benefits from a partially constructed home office, for which planning consent was granted in 2018 under Application No. 18/03039/H.

NOTES -

We are advised that part of the boundary wall on the western perimeter that adjoins a public footpath is in need of repair works.

TENURE -

The property is for sale on a freehold basis with vacant possession.

COMPLETION -

Completion for this lot will be 8 weeks from exchange of contracts or sooner by mutual agreement.

ENERGY PERFORMANCE CERTIFICATE (EPC) -

Rating: C

BUYER'S PREMIUM -

Please be advised that all purchasers are subject to a £1,250 plus VAT (£1,500 inc VAT) buyer’s premium payable upon exchange of contracts.

*GUIDE PRICE -

Guide Prices are provided as an indication of each seller's minimum expectation. They are not necessarily figures which a property will sell for and may change at any time prior to the auction. Each property will be offered subject to Reserve Price (a figure below which the Auctioneer cannot sell the property during the auction) which we expect will be set within the Guide Range or no more than 10% above a single figure Guide.

RESERVE PRICE -

The seller's minimum acceptable price at auction and the figure below which the auctioneer cannot sell. The reserve price is not disclosed and remains confidential between the seller and the auctioneer. Both the guide price and the reserve price can be subject to change up to and including the day of the auction.

PROXY, TELEPHONE & ONLINE REMOTE BIDDING -

The auction will be held online via live video stream with buyers able to bid via telephone, online or by submitting a proxy bid. You will need to complete our remote bidding form, which is available to download from our website. The completed form, ID (driving licence or passport and a recent utility bill stating the home address of the purchaser) and a bank transfer for the Preliminary Deposit must be received no later than 24 hours before the date of the auction.

PRELIMINARY DEPOSITS -

The Preliminary Deposit required for each lot you wish to bid for will be calculated based upon the Guide Price as follows:

£1,000 - £50,000: £2,000
£51,000 - £150,000: £5,000
£151,000 and above: £10,000

If your bid is successful, the balance of the deposit monies and Buyer's Premium (£1,500 inc VAT) must be transferred to our client account within 24 hours of the auction sale. If you are unsuccessful at the auction, your Preliminary Deposit will be returned to you.

AUCTION OR BRIDGING FINANCE REQUIRED? -

Do you need a mortgage or loan quickly? Maggs & Allen have specialist Independent Brokers who can arrange residential and commercial finance on all types of property. Contact the Auction Team today to be put through to our mortgage and loan experts on 0117 9734940 or email admin@maggsandallen.co.uk

RENTAL ESTIMATES -

All rental estimates are provided in good faith. They should be verified by your own professional advisors prior to a commitment to purchase.

EPC Graph for Fir Tree Lane, St George, Bristol