Summerhill Road, St George, Bristol, BS5 8JT

£271,000 - Sold at Auction

  • Guide Price: £230,000
  • December 2023 Auction
  • Period building arranged as 3 x 1-bedroom flats
  • Ideal investment/break-up opportunity
  • 8-week completion

REGISTER TO BID

MAKE A PRE-AUCTION OFFER



Require Finance?

Compare Property Finance from over 100 lenders
Click HERE to start your search

A representive from South West Business Finance will contact you to discuss your options



Share:

3 X 1-BEDROOM FLATS
A mid-terraced period property arranged as three, self-contained 1-bedroom flats. The flats are currently let producing circa £18,336 per annum with potential to increase to a figure in excess of £30,000 per annum. There is a courtyard garden and parking space to the rear. A superb investment or potential break-up opportunity.

FOR SALE BY AUCTION -

This property is due to feature in our online auction on 14 December 2023 at 6.00pm. Bidding is via proxy, telephone or online remote bidding.

VIEWINGS -

By appointment.

SUMMARY -

SOLD FOR £271,000 - PERIOD BUILDING ARRANGED AS 3 X 1-BEDROOM FLATS

DESCRIPTION -

A mid-terraced period property arranged as three, self-contained 1-bedroom flats. The flats are currently let producing circa £18,336 per annum with potential to increase to a figure in excess of £30,000 per annum. There is a courtyard garden and parking space to the rear. A superb investment or potential break-up opportunity.

LOCATION -

The property is situated in a convenient location on Summerhill Road in St George with easy access provided to a wide range of local shops, restaurants and other amenities on Church Road. There are also excellent transport links to the city centre.

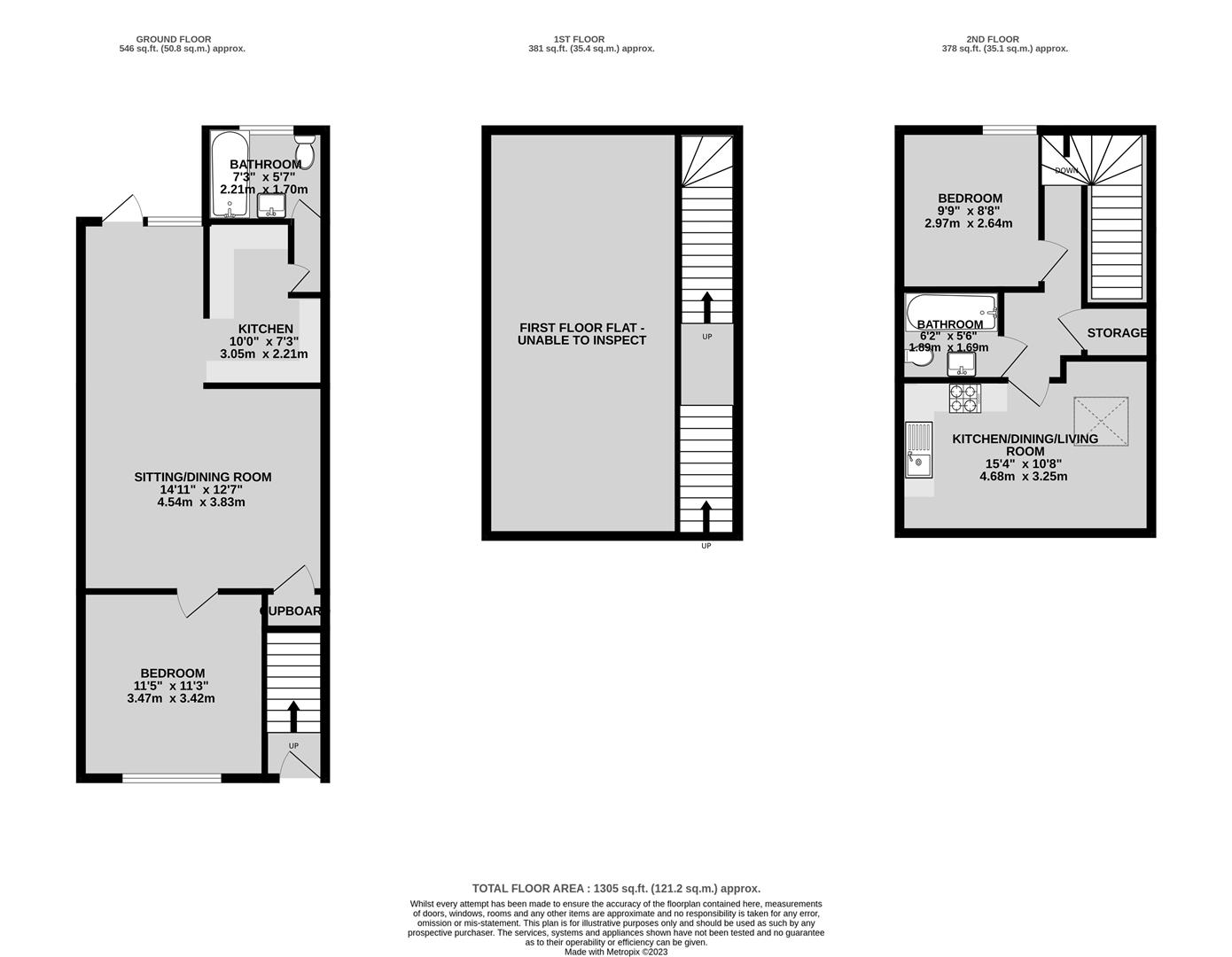
ACCOMMODATION -

Please refer to floorplan for approximate room measurements and internal layout.

GROUND FLOOR FLAT -

Comprising a lounge, kitchen, double bedroom and bathroom with a courtyard garden to the rear.

FIRST FLOOR -

Unable to inspect.

SECOND FLOOR FLAT -

Comprising an open-plan kitchen/living room, bedroom and bathroom.

RENTAL DETAILS -

We understand the flats are let producing the following rents, please refer to the online legal pack for confirmation:
GROUND FLOOR FLAT (29 Bethel Road): £488 pcm
FIRST FLOOR FLAT: £520 pcm
SECOND FLOOR FLAT: £520 pcm

TENURE -

The property is for sale on a freehold basis, subject to the existing tenancies of the three flats.

COMPLETION -

Completion for this lot will be 8 weeks from exchange of contracts or sooner by mutual agreement.

ENERGY PERFORMANCE CERTIFICATE (EPC) -

Ratings:
Ground Floor Flat - C
First Floor Flat - C
Top Floor Flat - C

LENGTH OF LEASE -

GROUND RENT -

SERVICE CHARGE -

LETTING - WHAT CAN MAGGS & ALLEN ACHIEVE FOR YOU? -

Maggs & Allen's experienced letting team are happy to discuss the rental of this property and can advise on maximising the investment. We offer Full Management, Let Only and Rent Collection Services. Contact Jessica Archer and her team on 0117 9499000 or email lettings@maggsandallen.co.uk.

AUCTION OR BRIDGING FINANCE REQUIRED? -

Do you need a mortgage or loan quickly? Maggs & Allen have specialist Independent Brokers who can arrange residential and commercial finance on all types of property. Contact the Auction Team today to be put through to our mortgage and loan experts on 0117 9734940 or email admin@maggsandallen.co.uk

BUYER'S PREMIUM -

Please be advised that all purchasers are subject to a £1,250 plus VAT (£1,500 inc VAT) buyer’s premium payable upon exchange of contracts.

*GUIDE PRICE -

Guide Prices are provided as an indication of each seller's minimum expectation. They are not necessarily figures which a property will sell for and may change at any time prior to the auction. Each property will be offered subject to Reserve Price (a figure below which the Auctioneer cannot sell the property during the auction) which we expect will be set within the Guide Range or no more than 10% above a single figure Guide.

RESERVE PRICE -

The seller's minimum acceptable price at auction and the figure below which the auctioneer cannot sell. The reserve price is not disclosed and remains confidential between the seller and the auctioneer. Both the guide price and the reserve price can be subject to change up to and including the day of the auction.

PROXY, TELEPHONE & ONLINE REMOTE BIDDING -

The auction will be held online via live video stream with buyers able to bid via telephone, online or by submitting a proxy bid. You will need to complete our remote bidding form, which is available to download from our website. The completed form, ID (driving licence or passport and a recent utility bill stating the home address of the purchaser) and a bank transfer for the Preliminary Deposit must be received no later than 24 hours before the date of the auction.

PRELIMINARY DEPOSITS -

The Preliminary Deposit required for each lot you wish to bid for will be calculated based upon the Guide Price as follows:

£1,000 - £50,000: £2,000
£51,000 - £150,000: £5,000
£151,000 and above: £10,000

If your bid is successful, the balance of the deposit monies and Buyer's Premium (£1,500 inc VAT) must be transferred to our client account within 24 hours of the auction sale. If you are unsuccessful at the auction, your Preliminary Deposit will be returned to you.

RENTAL ESTIMATES -

All rental estimates are provided in good faith. They should be verified by your own professional advisors prior to a commitment to purchase.