A charming, light-filled and extended period three-bedroom family home situated moments from the vibrant Gloucester Road.
Property Details -
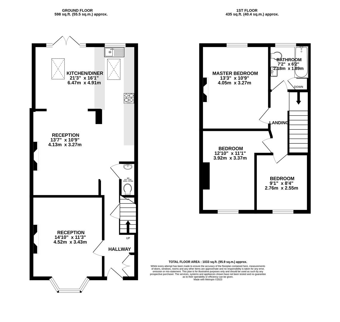
Upon entry, you are welcomed by a spacious hallway with under-stair storage, leading into a charming front reception. The focal point of this cosy space is a working fireplace, complemented by a bay window fitted with shutters, all accentuated by the original ceiling cornice.
Moving towards the rear, the property has been thoughtfully opened up and extended, resulting in an impressive and versatile living space—an ideal setting for both family life and entertaining. The expansive extension is enhanced by two Velux windows, a large window, and a set of French doors, saturating the area with abundant natural light. Conveniently tucked away beside the staircase is a well-placed WC.
Ascending to the first floor reveals a cleverly reconfigured layout, offering three generously sized and functional bedrooms, accompanied by a well-designed family bathroom.
Outside, a decked area seamlessly extends from the house, creating a desirable inside/outside living arrangement—a perfect space for entertaining and family gatherings. A few steps down from the deck lead to a lush lawned section, complete with a convenient storage space for bicycles. The front aspect of the property is beautiful; characterized by its exposed brickwork, refined stone detailing, bay window, and a period-style front door.
Local Schools -
Ashley Down Primary School approx. 0.2km Bishop Road Primary School approx. 0.5km Brunel Field Primary School approx. 0.6km
Location -
Oak Road is situated within easy reach of the ever-popular and vibrant Gloucester Road with its independent shops, restaurants, bars and other local amenities, whilst 5 minutes away is King's Tennis Club. There are good state and independent primary and secondary schools close, additionally the green open spaces of Horfield Common, St Andrews Park & the Memorial Stadium are nearby. There are frequent bus services to the City Centre and easy access to the M4/M5 motorway networks and direct access by public transport to both Bristol Temple Meads and Bristol Parkway railway stations.
The Ministry of Housing Communities & Local Government have confirmed the housing market remains open.
All of our departments will be open for business as usual but please be assured that stringent measures are being followed to ensure of the safety of all our clients and staff.
We will continue to offer both physical and virtual valuations and viewings for residential, auction, commercial and lettings as will at our full range of RICS surveys.
If we can be of any assistance please get in touch:
Henleaze: 0117 949 9000 Clifton: 0117 973 4940
Residential Stamp Duty Calculator
Calculate Your Stamp Duty
Results
Stamp Duty To Pay:
Effective Rate:
Tax Band
%
Taxable Sum
Tax
* The calculated figures are offered as a guide only. We advise interested parties to seek advice
from their legal representative.
Commercial Stamp Duty Calculator
Calculate Stamp Duty
Results
Stamp Duty To Pay
£0.00
Effective Rate
2%
Tax Band
%
Taxable Sum
Tax
* The calculated figures are offered as a guide only. We advise interested parties to seek advice
from their legal representative.
Do you want to purchase this property prior to the auction?
Complete the form below to submit a pre-auction offer. Please
note that the property will only be removed from the auction once contracts have
been exchanged. Offers can only be submitted once the legal pack is available.