Brislington Hill, Brislington, Bristol, BS4 5BE

£700pcm - Let Agreed




Share:

***RECENTLY REFURBISHED SHOP***
A well presented retail unit of approximately 950 sq ft arranged over ground and first floors. The shop has most recently been occupied by financial advisers and would suit a similar business offering professional services or other uses within the E use class, subject to consents. Offered to let on an effectively new Full Repairing and Insuring lease subject to service charge.

DESCRIPTION -

A well presented retail unit of approximately 950 sq ft arranged over 2 floors. Further benefits include an electric security shutter and rear access from the first floor.

LOCATION -

Situated on the A4 (Brislington Hill), the property offers easy access to Bristol City Centre, Keynsham, and Bath. Ample free parking is provided by the communal car park to the rear.

LEASE DETAILS -

Offered To Let on a new Full Repairing and Insuring Lease, recoverable by way of a service charge.
Each party to incur the own respective legal costs.
A deposit of £500 + VAT is payable before the draft lease can be issued, to cover the landlord's abortive fees should the matter not proceed to completion. On successful completion of the lease this will form part of the
security deposit.

BUSINESS RATES -

The rateable value effective from April 2023, as per the VOA website, is £6,300.


We would expect those eligible for small business relief to benefit for 100% exemption at this time. However we advise all interested parties confirm this with the local authority.

ENERGY PERFROMANCE CERTIFICATE -

Rating: D (expires March 2034).

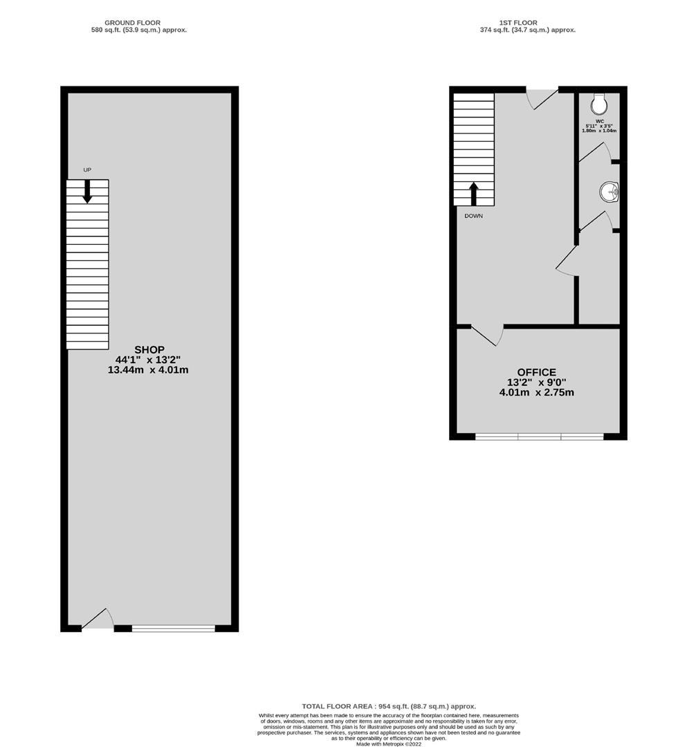
FLOOR PLAN -

The floor plan is provided for indicative purposes only and should not be relied upon.

VAT -

We understand VAT is applicable to the rent.

CODE FOR LEASING BUSINESS PREMISES -

We advise all interested parties to refer to the RICS Code for Leasing Business Premises, link available via our website.

TENANT APPLICATION FEE -

The ingoing tenant will be charged an application fee of £250 plus VAT (£300 inc VAT) towards the costs incurred in undertaking appropriate credit and reference checks. Accounts will be requested where available and a deposit and/or personal guarantee may be required.

VIEWINGS -

By appointment with Maggs & Allen.

CONTROL OF ASBESTOS REGULATIONS -

As per the Control of Asbestos Regulations 2012, the owner or tenant of the property, or anyone else who has control over it and/or responsibility for maintaining it, must comply with the regulations which may include the detection of and/or management of any asbestos or asbestos related compounds contained at the property. Maggs & Allen has not tested or inspected for asbestos and therefore recommend all interested parties to make their own enquiries.