Situated a short walk from the City Centre and offering easy access to public transport and the M32, Old Market is a popular location offering a wealth of amenities including independent shops, cafes and restaurants.
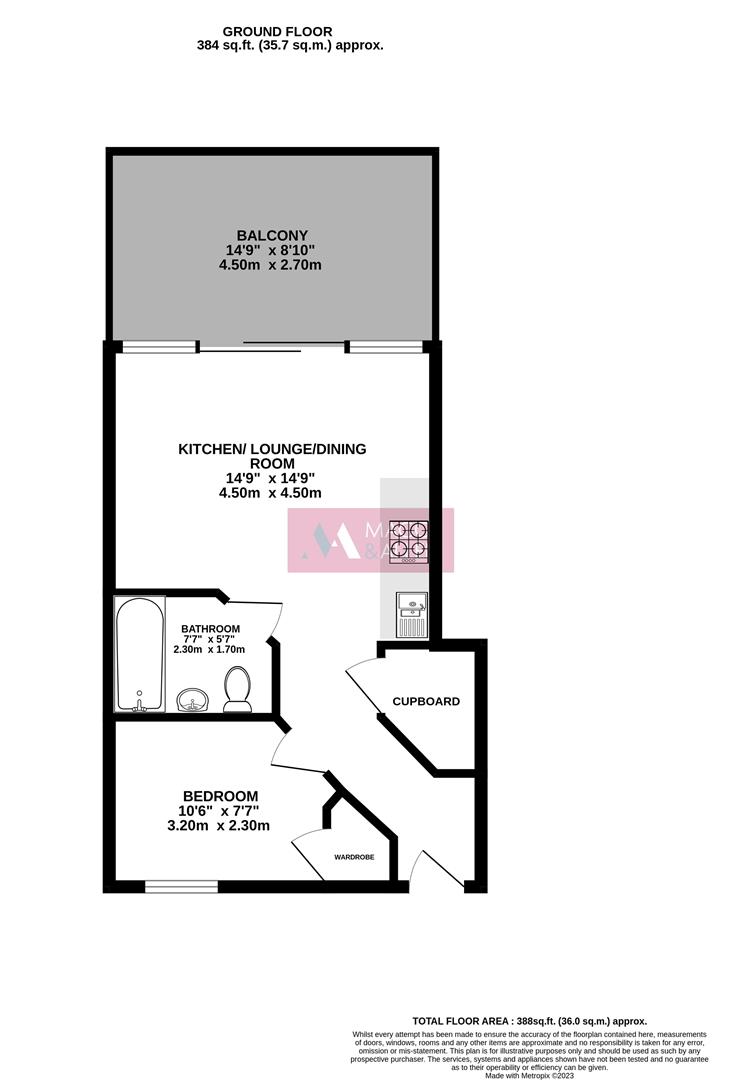
Upon entering this modern apartment, you will find wooden floorboards and a storage cupboard from the hallway. The bathroom, also accessed from the hallway, is modern, and fitted with floor and wall tiles.
The kitchen-lounge/diner is light, bright and offers ample space for a sofa and dining table. Kitchen units are modern, with black cupboard doors and white work tops. Without doubt the highlight of this attractive property however is the large balcony which offers a southerly aspect offering plenty of sunlight throughout much of the day.
LOCAL SCHOOLS -
Hannah More Primary School approx. 0.2km St Nicholas of Tolentine Catholic Primary School approx. 0.6km St Mary Redcliffe and Temple School approx. 1km
LOCATION -
Old Market has great access to the Bristol City Centre, just a ten minute walk away from the heart of Bristol. There are many retail options in the conveniently-located Cabot Circus and Broadmead, as well as several local cafes and shops within Old Market itself. It also has great transport links, conveniently located within a short walk from Temple Meads railway station and the Bristol bus depot. Additionally, the nearby M32 has quick access to the M4 for driving in and out of the city.
DIRECTIONS -
From the Maggs&Allen office, take B4054 and Berkeley Rd towards Gloucester Rd/A38 in Bishopston for 1.1 miles. Turn right onto Gloucester road and continue on A38 to Houlton St for 1.5miles. Use the right two lanes to turn onto Houlton St and continue on Wade St. Follow the A420 to Trinity road and then slight right on to West Street. Take a left onto Jacob St.
The Ministry of Housing Communities & Local Government have confirmed the housing market remains open.
All of our departments will be open for business as usual but please be assured that stringent measures are being followed to ensure of the safety of all our clients and staff.
We will continue to offer both physical and virtual valuations and viewings for residential, auction, commercial and lettings as will at our full range of RICS surveys.
If we can be of any assistance please get in touch:
Henleaze: 0117 949 9000 Clifton: 0117 973 4940
Virtual Tour - 55, The Refinery, Jacob Street, Old Market, Bristol
Residential Stamp Duty Calculator
Calculate Your Stamp Duty
Results
Stamp Duty To Pay:
Effective Rate:
Tax Band
%
Taxable Sum
Tax
* The calculated figures are offered as a guide only. We advise interested parties to seek advice
from their legal representative.
Commercial Stamp Duty Calculator
Calculate Stamp Duty
Results
Stamp Duty To Pay
£0.00
Effective Rate
2%
Tax Band
%
Taxable Sum
Tax
* The calculated figures are offered as a guide only. We advise interested parties to seek advice
from their legal representative.
Do you want to purchase this property prior to the auction?
Complete the form below to submit a pre-auction offer. Please
note that the property will only be removed from the auction once contracts have
been exchanged. Offers can only be submitted once the legal pack is available.