Vyvyan Road, Clifton, Bristol, BS8 3AD

£139,000 - Sold at Auction

  • Guide Price: £100,000+
  • July 2023 Auction
  • Approx. 40 m² (438 sq ft)
  • Potential for alternative uses, subject to consents
  • Superb location in Clifton Village

REGISTER TO BID

MAKE A PRE-AUCTION OFFER



Require Finance?

Compare Property Finance from over 100 lenders
Click HERE to start your search

A representive from South West Business Finance will contact you to discuss your options



Share:

SOLD FOR £139,000 - A rare opportunity to purchase a ground floor artist’s studio space of approximately 40m², situated in a fantastic location in the heart of Clifton. The property benefits from recently installed full height windows to the front, a WC, store rooms and a garden to the rear. The property would be ideal for continued use as a studio and also offers potential uses including residential conversion, subject to consents.

FOR SALE BY AUCTION -

This property is due to feature in our online auction on 27 July 2023 at 6.00pm. Bidding is via proxy, telephone or online remote bidding.

VIEWINGS -

By appointment.

SUMMARY -

SOLD FOR £139,000 - A WELL-PRESENTED GROUND FLOOR STUDIO SPACE IN A PRIME LOCATION IN CLIFTON

DESCRIPTION -

A rare opportunity to purchase a ground floor artist’s studio space of approximately 40m², situated in a fantastic location in the heart of Clifton. The property benefits from recently installed full height windows to the front, a WC, store rooms and a garden to the rear. The property would be ideal for continued use as a studio and also offers potential uses including residential conversion, subject to consents.

LOCATION -

The property is situated in an enviable location on Vyvyan Road in Clifton. Easy access is provided to a fantastic array of independent shops, cafes and bars in Clifton Village and Clifton Suspension Bridge.

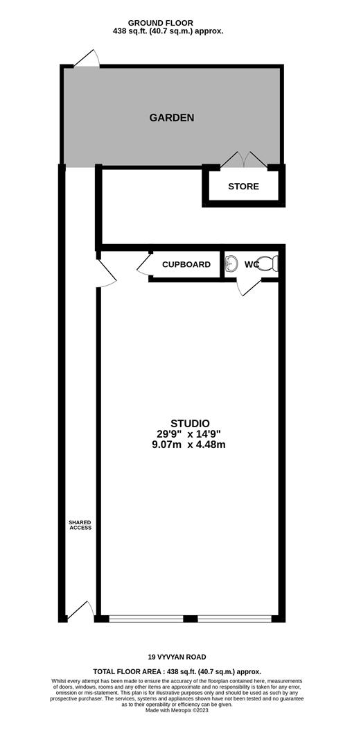
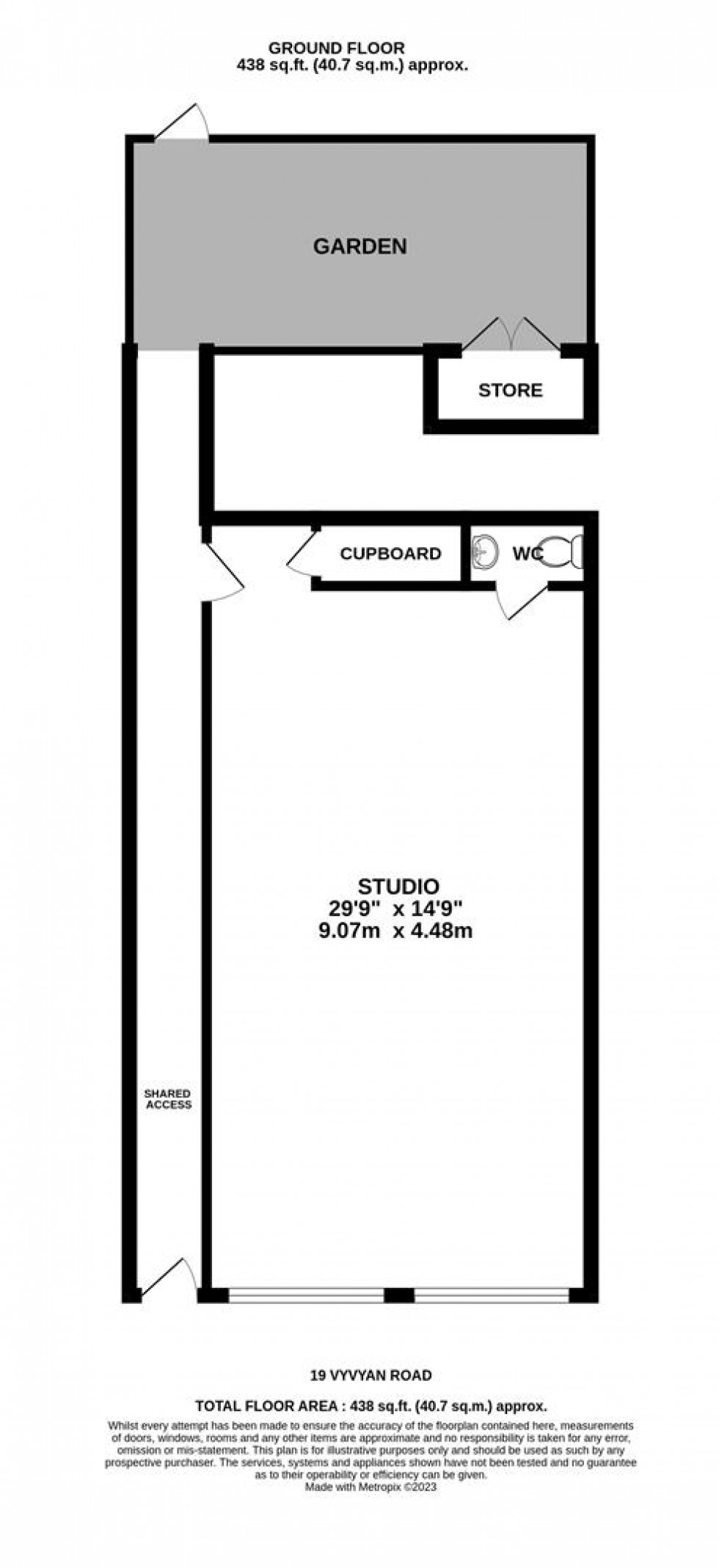
ACCOMMODATION -

The property comprises of an open-plan artist's studio space of approximately 40 m² (438 sq ft) with toilet facilities and store room. The property is approached via a shared access to the left of the building, which also provides access to the rear garden and additional rear store room. Please refer to floorplan for approximate room measurements and internal layout.

TENURE -

The property is to be sold on a freehold basis, subject to the leasehold interest of the flat above that has been sold off on a long-leasehold basis. Please refer to the auction legal pack for further details.

PLANNING HISTORY -

The property previously comprised of a tandem length double garage and planning consent was granted on 30 January 2019 for conversion of the garage into a private art studio for use by the owners. Interested parties should make their own enquiries with the Local Authority as to the suitability of their intended use.

COMPLETION -

Completion for this lot will be 8 weeks from exchange of contracts or sooner by mutual agreement.

ENERGY PERFORMANCE CERTIFICATE -

Rating: TBC

BUYER'S PREMIUM -

Please be advised that all purchasers are subject to a £1,250 plus VAT (£1,500 inc VAT) buyer’s premium payable upon exchange of contracts.

*GUIDE PRICE -

Guide Prices are provided as an indication of each seller's minimum expectation. They are not necessarily figures which a property will sell for and may change at any time prior to the auction. Each property will be offered subject to Reserve Price (a figure below which the Auctioneer cannot sell the property during the auction) which we expect will be set within the Guide Range or no more than 10% above a single figure Guide.

RESERVE PRICE -

The seller's minimum acceptable price at auction and the figure below which the auctioneer cannot sell. The reserve price is not disclosed and remains confidential between the seller and the auctioneer. Both the guide price and the reserve price can be subject to change up to and including the day of the auction.

PROXY, TELEPHONE & ONLINE REMOTE BIDDING -

The auction will be held online via live video stream with buyers able to bid via telephone, online or by submitting a proxy bid. You will need to complete our remote bidding form, which is available to download from our website. The completed form, ID (driving licence or passport and a recent utility bill stating the home address of the purchaser) and a bank transfer for the Preliminary Deposit must be received no later than 24 hours before the date of the auction.

PRELIMINARY DEPOSITS -

The Preliminary Deposit required for each lot you wish to bid for will be calculated based upon the Guide Price as follows:

£1,000 - £50,000: £2,000
£51,000 - £150,000: £5,000
£151,000 and above: £10,000

If your bid is successful, the balance of the deposit monies and Buyer's Premium (£1,500 inc VAT) must be transferred to our client account within 24 hours of the auction sale. If you are unsuccessful at the auction, your Preliminary Deposit will be returned to you.