Maristow Street, Westbury, BA13 3DN

£295,000 - Sold at Auction

  • Guide Price: £250,000+
  • July 2023 Auction
  • Fully-let producing £36,960 per annum.
  • Excellent opportunity for investors.
  • 8-week completion

REGISTER TO BID

MAKE A PRE-AUCTION OFFER



Require Finance?

Compare Property Finance from over 100 lenders
Click HERE to start your search

A representive from South West Business Finance will contact you to discuss your options



Share:

SOLD PRIOR - A mixed-use investment property situated in a convenient location in Westbury, comprising a ground floor takeaway and 4x studio flats. Two of the flats benefit from their own kitchens and two have use of a shared kitchen, there is also a communal garden at the rear. The property is currently fully-let producing a gross rent of £36,960 per annum. An excellent opportunity for investors.

FOR SALE BY AUCTION -

This property is due to feature in our online auction on 27 July 2023 at 6.00pm. Bidding is via proxy, telephone or online remote bidding.

VIEWINGS -

By appointment.

SUMMARY -

SOLD PRIOR - HIGH YIELDING MIXED-USE INVESTMENT

DESCRIPTION -

A mixed-use investment property situated in a convenient location in Westbury, comprising a ground floor takeaway and 4x studio flats. Two of the flats benefit from their own kitchens and two have use of a shared kitchen, there is also a communal garden at the rear. The property is currently fully-let producing a gross rent of £36,960 per annum. An excellent opportunity for investors.

LOCATION -

The property is located in the small market town of Westbury with a range of amenities available locally.

ACCOMMODATION -

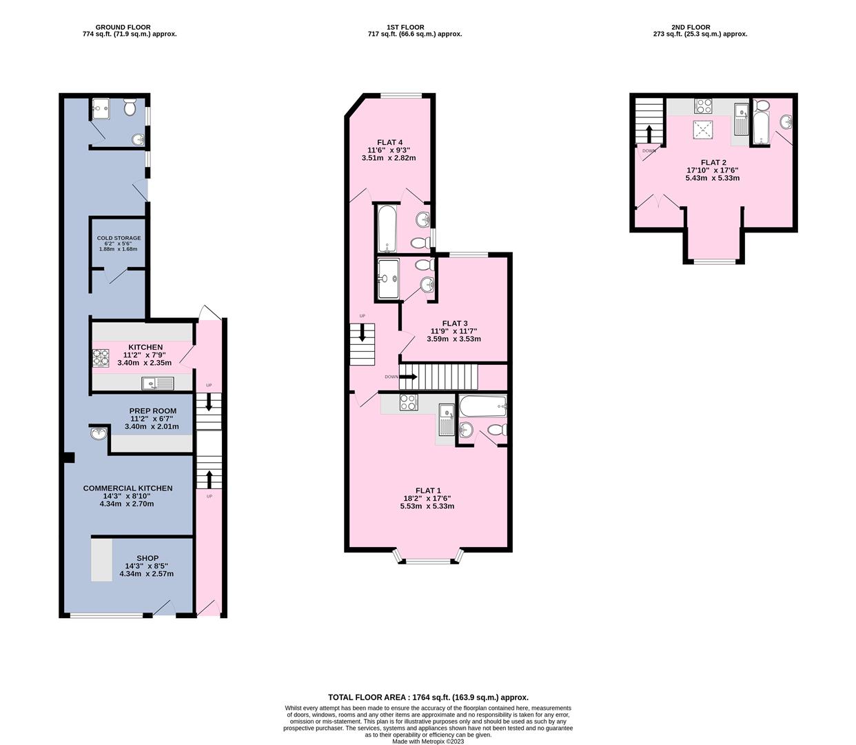
Please refer to floorplan for approximate room measurements and internal layout.

GROUND FLOOR TAKEAWAY -

Comprising a shop front, commercial kitchen, prep room, storage room with a cold storage area, further storage/office area and a shower room with WC. The takeaway is currently let on the remainder of a 5-year lease from December 2021 at £750pcm.

FLAT 1 -

Comprising an open-plan kitchen/lounge/bedroom and a shower room with WC. The flat is let on an Assured Shorthold Tenancy at a gross rent of £625pcm inclusive of gas, water and electric.

FLAT 2 -

Comprising an open-plan kitchen/lounge/bedroom and a bathroom. The flat is let on an Assured Shorthold Tenancy at a gross rent of £610pcm inclusive of gas, water and electric.

FLAT 3 -

Comprising a bedroom/lounge, shower room with WC and use of the shared kitchen on the ground floor. The flat is let on an Assured Shorthold Tenancy at a gross rent of £525pcm inclusive of gas, water and electric.

FLAT 4 -

Comprising a bedroom/lounge, shower room with a bathroom and use of the shared kitchen on the ground floor. The flat is let on an Assured Shorthold Tenancy at a gross rent of £570pcm inclusive of gas, water and electric.

TENURE -

The property is to be sold on a freehold basis, subject to the commercial lease and ASTs above.

COMPLETION -

Completion for this lot will be 8 weeks from exchange of contracts or sooner by mutual agreement.

ENERGY PERFORMANCE CERTIFICATE -

Ratings: Flats 1-4: D

BUYER'S PREMIUM -

Please be advised that all purchasers are subject to a £1,250 plus VAT (£1,500 inc VAT) buyer’s premium payable upon exchange of contracts.

*GUIDE PRICE -

Guide Prices are provided as an indication of each seller's minimum expectation. They are not necessarily figures which a property will sell for and may change at any time prior to the auction. Each property will be offered subject to Reserve Price (a figure below which the Auctioneer cannot sell the property during the auction) which we expect will be set within the Guide Range or no more than 10% above a single figure Guide.

RESERVE PRICE -

The seller's minimum acceptable price at auction and the figure below which the auctioneer cannot sell. The reserve price is not disclosed and remains confidential between the seller and the auctioneer. Both the guide price and the reserve price can be subject to change up to and including the day of the auction.

PROXY, TELEPHONE & ONLINE REMOTE BIDDING -

The auction will be held online via live video stream with buyers able to bid via telephone, online or by submitting a proxy bid. You will need to complete our remote bidding form, which is available to download from our website. The completed form, ID (driving licence or passport and a recent utility bill stating the home address of the purchaser) and a bank transfer for the Preliminary Deposit must be received no later than 24 hours before the date of the auction.

PRELIMINARY DEPOSITS -

The Preliminary Deposit required for each lot you wish to bid for will be calculated based upon the Guide Price as follows:

£1,000 - £50,000: £2,000
£51,000 - £150,000: £5,000
£151,000 and above: £10,000

If your bid is successful, the balance of the deposit monies and Buyer's Premium (£1,500 inc VAT) must be transferred to our client account within 24 hours of the auction sale. If you are unsuccessful at the auction, your Preliminary Deposit will be returned to you.