79, Cromwell Road, St Andrews, Bristol, BS6 5HA

£535,000 - Sold at Auction

  • Guide Price: £480,000+
  • July 2023 Auction
  • Planning granted for 3 x 2-bedroom flats
  • GDV of circa £1,000,000
  • 8-week completion

REGISTER TO BID

MAKE A PRE-AUCTION OFFER



Require Finance?

Compare Property Finance from over 100 lenders
Click HERE to start your search

A representive from South West Business Finance will contact you to discuss your options



Share:

SOLD FOR £535,000 - A substantial four storey period semi-detached building with full planning consent granted for conversion to provide three self-contained flats (2 x 2-bedroom flats and 1 x 2-bedroom maisonette). The property is situated in a highly sought-after residential location in St Andrews with easy access provided to a wide range of local amenities and Bristol city centre. A superb redevelopment opportunity for builders, developers and investors.

FOR SALE BY AUCTION -

This property is due to feature in our online auction on 27 July 2023 at 6.00pm. Bidding is via proxy, telephone or online remote bidding.

VIEWINGS -

By appointment.

SUMMARY -

SOLD FOR £535,000 - FOUR STOREY PERIOD BUILDING - PLANNING GRANTED FOR CONVERSION TO PROVIDE 3 X 2-BEDROOM FLATS

DESCRIPTION -

A substantial four storey period semi-detached building with full planning consent granted for conversion to provide three self-contained flats (2 x 2-bedroom flats and 1 x 2-bedroom maisonette). The property is situated in a highly sought-after residential location in St Andrews with easy access provided to a wide range of local amenities and Bristol city centre. A superb redevelopment opportunity for builders, developers and investors.

LOCATION -

The property is situated in a highly convenient location on Cromwell Road in St Andrews. A wide range of local amenities are available on Cheltenham Road/Gloucester Road, St Andrews Park and Montpelier train station are within walking distance and the city centre is easily accessible.

PLANNING -

Full planning consent was granted on 25 January 2022 for the sub-division of the lower ground and ground floor maisonette to create 2 x self-contained flats and the erection of replacement front and rear dormer roof extensions to the existing first and second floor maisonette under Application No. 21/06240/F.

GROSS DEVELOPMENT VALUE (GDV) -

We anticipate a GDV of circa £1,000,000 as detailed below:

Lower Ground Floor Flat (2-Bed) with garden: £335,000
Hall Floor Flat (2-Bed): £300,000
First & Second Floor Maisonette: £365,000

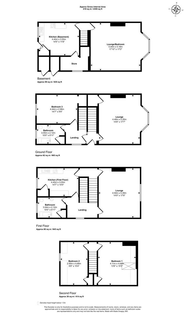
ACCOMMODATION -

The lower ground floor is currently arranged to provide a kitchen/breakfast room with door onto the rear garden, a large bay-fronted lounge/bedroom and store rooms. The ground floor comprises of a lounge, double bedroom and bathroom. The first floor provides a further lounge/bedroom, kitchen and bathroom. The second floor is arranged as two further double bedrooms.

TENURE -

The property is for sale on a freehold basis with vacant possession.

COMPLETION -

Completion for this lot will be 8 weeks from exchange of contracts or sooner by mutual agreement.

ENERGY PERFORMANCE CERTIFICATE -

Rating: D

BUYER'S PREMIUM -

Please be advised that all purchasers are subject to a £1,250 plus VAT (£1,500 inc VAT) buyer’s premium payable upon exchange of contracts.

*GUIDE PRICE -

Guide Prices are provided as an indication of each seller's minimum expectation. They are not necessarily figures which a property will sell for and may change at any time prior to the auction. Each property will be offered subject to Reserve Price (a figure below which the Auctioneer cannot sell the property during the auction) which we expect will be set within the Guide Range or no more than 10% above a single figure Guide.

RESERVE PRICE -

The seller's minimum acceptable price at auction and the figure below which the auctioneer cannot sell. The reserve price is not disclosed and remains confidential between the seller and the auctioneer. Both the guide price and the reserve price can be subject to change up to and including the day of the auction.

PROXY, TELEPHONE & ONLINE REMOTE BIDDING -

The auction will be held online via live video stream with buyers able to bid via telephone, online or by submitting a proxy bid. You will need to complete our remote bidding form, which is available to download from our website. The completed form, ID (driving licence or passport and a recent utility bill stating the home address of the purchaser) and a bank transfer for the Preliminary Deposit must be received no later than 24 hours before the date of the auction.

PRELIMINARY DEPOSITS -

The Preliminary Deposit required for each lot you wish to bid for will be calculated based upon the Guide Price as follows:

£1,000 - £50,000: £2,000
£51,000 - £150,000: £5,000
£151,000 and above: £10,000

If your bid is successful, the balance of the deposit monies and Buyer's Premium (£1,500 inc VAT) must be transferred to our client account within 24 hours of the auction sale. If you are unsuccessful at the auction, your Preliminary Deposit will be returned to you.