Development Site at, 34 Cambridge Crescent, Westbury-On-Trym, Bristol, BS9 3QG

Asking Price £475,000 - Sold Subject to Contract

  • Freehold Development Site
  • Planning granted for redevelopment
  • 2 x 3-bedroom houses & 3-storey offices
  • Enclosed car park for 4-5 vehicles



Require Finance?

Compare Property Finance from over 100 lenders
Click HERE to start your search

A representive from South West Business Finance will contact you to discuss your options



Share:

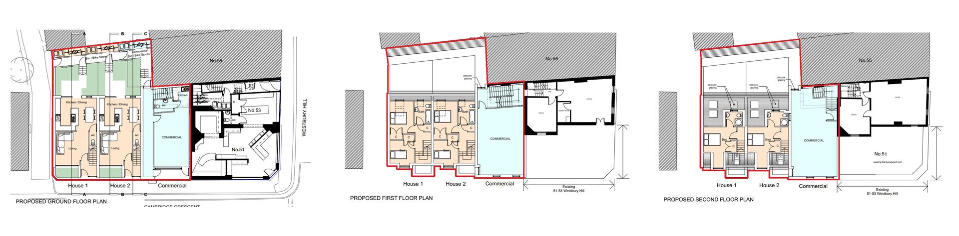
FREEHOLD DEVELOPMENT SITE - PLANNING CONSENT FOR REDEVELOPMENT
A modern office building with full planning consent granted for the redevelopment of the property to provide 2 x 3-bedroom houses and a new three storey office building. In addition, the property benefits from an enclosed car park on the opposite side of Cambridge Crescent providing parking for 4-5 cars. A superb opportunity for developers to create an exclusive development in this highly sought after and convenient location.

DESCRIPTION -

FREEHOLD DEVELOPMENT SITE
A modern office building with full planning consent granted for the redevelopment of the property to provide 2 x 3-bedroom houses and a new three storey office building. In addition, the property benefits from an enclosed car park on the opposite side of Cambridge Crescent providing parking for 4-5 cars. A superb opportunity for developers to create an exclusive development in this highly sought after and convenient location.

LOCATION -

The property is situated on the corner of Westbury Hill and Cambridge Crescent in the heart of Westbury-on-Trym. Other notable occupiers in the vicinity include Costa, Barclays Bank and Tesco Express.

GROSS DEVELOPMENT VALUE (GDV) -

We would anticipate a GDV in the region of £1,350,000 based upon the approved planning scheme:

House 1: £500,000
House 2: £500,000
Offices: £350,000

There may also be potential to submit a revised scheme for 3 houses or 2 houses and a ground floor office with maisonette above, which is likely to increase the GDV to circa £1,500,000.

PROPOSED ACCOMMODATION -

House 1 (three-bedroom townhouse): 97.6 m² (1,051 Sq ft)
House 2 (three-bedroom townhouse): 98.3 m² (1,059 Sq ft)
Offices (three storey office building): 146.8 Sq m (1,582 Sq ft)

PLANNING -

Full planning consent was granted on 2 February 2022 for the redevelopment of site/property to provide two dwellings (2 x 3-bedroom houses) and a three storey office building under Application No. 20/05326/F.

LOCAL AUTHORITY -

Bristol City Council.

TENURE -

The property is for sale on a freehold basis with vacant possession.

COMMUNITY INFRASTRUCTURE LEVY (CIL) -

The CIL has been calculated at £13,923.25.

ENERGY PERFORMANCE CERTIFICATE -

Rating: E

VAT -

All figures quoted are exclusive of VAT unless otherwise stated.

VIEWINGS -

Strictly by appointment with Maggs & Allen - 0117 973 4940.