Fishponds Road, Fishponds, Bristol, BS16 3UH

£357,000 - For Sale

  • Guide Price: £185,000+
  • June 2023 Auction
  • Currently let at £16,000 PA with scope to increase
  • Ground floor takeaway and 3-bed maisonette
  • Prominent position on Fishponds Road



Require Finance?

Compare Property Finance from over 100 lenders
Click HERE to start your search

A representive from South West Business Finance will contact you to discuss your options



Share:

SOLD FOR £357,000 - A mixed-use investment property arranged as a ground floor takeaway with a 3-bedroom maisonette above. The property is situated in a busy trading position in Fishponds and is currently let at £16,000pa (trading as Pizza Hut) although the lease is due for renewal in September 2024. We consider the market rent to lie in the region of £24,000pa (assuming the shop and flat could be let separately). The property also offers potential for further development to the rear, subject to obtaining the necessary consents.

FOR SALE BY AUCTION -

This property is due to feature in our online auction on 29 June 2023 at 6.00pm. Bidding is via proxy, telephone or online remote bidding.

VIEWINGS -

By appointment.

SUMMARY -

SOLD FOR £357,000 - MIXED-USE INVESTMENT PROPERTY SITUATED IN A BUSY TRADING POSITION ON FISHPONDS ROAD

DESCRIPTION -

A mixed-use investment property arranged as a ground floor takeaway with a 3-bedroom maisonette above. The property is situated in a busy trading position in Fishponds and is currently let at £16,000pa (trading as Pizza Hut) although the lease is due for renewal in September 2024. We consider the market rent to lie in the region of £24,000pa (assuming the shop and flat could be let separately). The property also offers potential for further development to the rear, subject to obtaining the necessary consents and vacant possession.

LOCATION -

The property is situated in a busy trading position on Fishponds Road opposite Lidl supermarket.

LEASE DETAILS -

The takeaway and flat are let to Gotham Newco 3 Limited (trading as Pizza Hut) on a 10 year effectively Full Repairing and Insuring lease from 29th September 2014 at a current passing rent of £16,000 per annum. The lease is subject to a 5 year rent review, which we understand has not been actioned. There is also an £8,000 lease deposit.

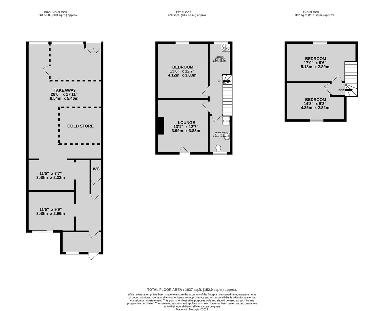
ACCOMMODATION -

Please refer to floorplan for approximate room measurements and internal layout.

COMPLETION -

Completion for this lot will be 8 weeks from exchange of contracts or sooner by mutual agreement.

ENERGY PERFORMANCE CERTIFICATE -

Ratings:
Ground Floor Shop - E
First Floor Flat - G

BUYER'S PREMIUM -

Please be advised that all purchasers are subject to a £1,250 plus VAT (£1,500 inc VAT) buyer’s premium payable upon exchange of contracts.

*GUIDE PRICE -

Guide Prices are provided as an indication of each seller's minimum expectation. They are not necessarily figures which a property will sell for and may change at any time prior to the auction. Each property will be offered subject to Reserve Price (a figure below which the Auctioneer cannot sell the property during the auction) which we expect will be set within the Guide Range or no more than 10% above a single figure Guide.

RESERVE PRICE -

The seller's minimum acceptable price at auction and the figure below which the auctioneer cannot sell. The reserve price is not disclosed and remains confidential between the seller and the auctioneer. Both the guide price and the reserve price can be subject to change up to and including the day of the auction.

PROXY, TELEPHONE & ONLINE REMOTE BIDDING -

The auction will be held online via live video stream with buyers able to bid via telephone, online or by submitting a proxy bid. You will need to complete our remote bidding form, which is available to download from our website. The completed form, ID (driving licence or passport and a recent utility bill stating the home address of the purchaser) and a bank transfer for the Preliminary Deposit must be received no later than 24 hours before the date of the auction.

PRELIMINARY DEPOSITS -

The Preliminary Deposit required for each lot you wish to bid for will be calculated based upon the Guide Price as follows:

£1,000 - £50,000: £2,000
£51,000 - £150,000: £5,000
£151,000 and above: £10,000

If your bid is successful, the balance of the deposit monies and Buyer's Premium (£1,500 inc VAT) must be transferred to our client account within 24 hours of the auction sale. If you are unsuccessful at the auction, your Preliminary Deposit will be returned to you.