Knapps Lane, Fishponds, Bristol, BS5 7UL

£4,167pcm - Let Agreed

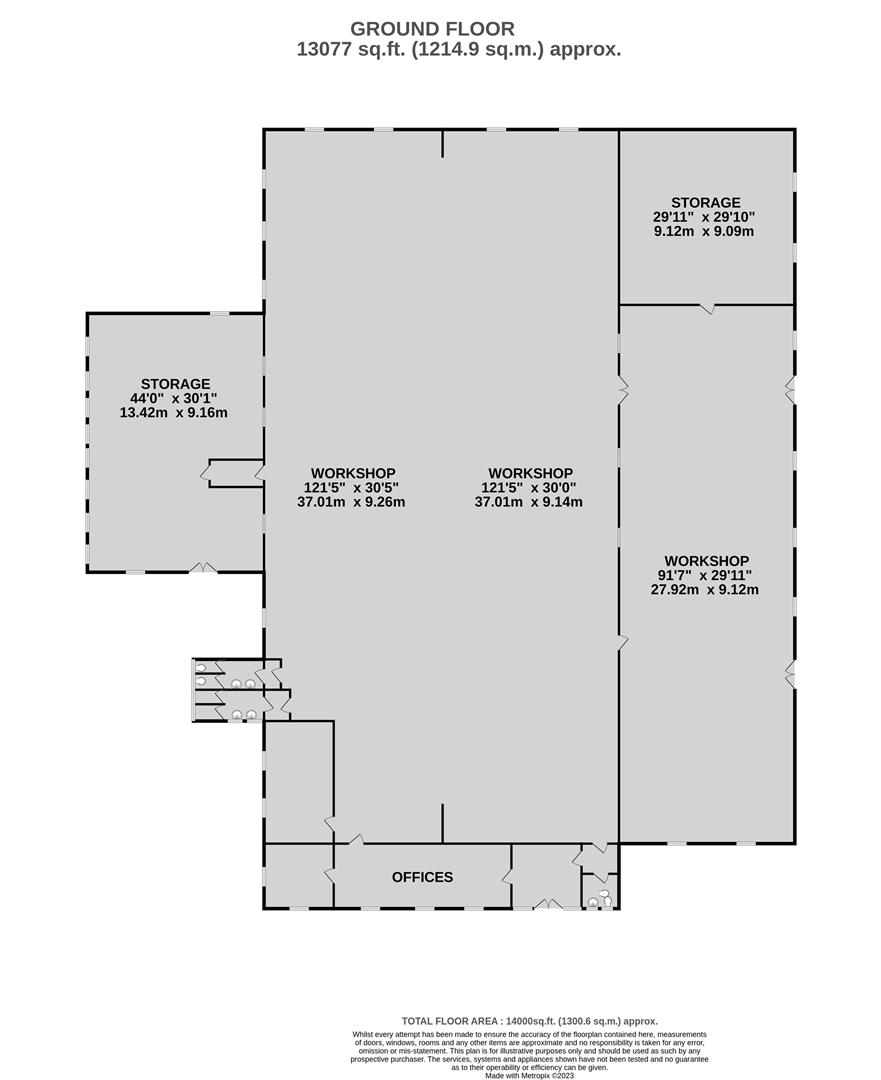
  • Large Industrial Unit
  • Approximately 13,100 sq ft
  • Detached
  • Parking



Share:

Opportunity to acquire a lease on a large detached warehouse/industrial unit of approximately 13,100 sq ft located on Knapps Lane, Eastville. The property comprises 3 open plan workshop spaces with adjoining offices, storage and toilet facilities. Offered to let on an effectively new Full Repairing and Insuring basis.

DESCRIPTION -

A substantial detached industrial unit/warehouse of approximately 13,100 sq ft arranged as 3 large workshop spaces with adjoining offices, storage and toilet facilities.

LOCATION -

Situated on Knapps Lane within close proximity to Rose Green Road, Eastville providing easy access to the city centre and M32 motorway.

LEASE DETAILS -

The property is available to let on a new Full Repairing and Insuring Lease. Each party to incur their own respective legal fees.

FLOOR PLAN -

The floor plan is provided for indicative purposes only and should not be relied on.

BUSINESS RATES -

The rateable value with effect from March 2023 is £55,000

ENERGY PERFORMANCE CERTIFICATE -

EPC rating: G

VIEWINGS -

By appointment with Maggs & Allen.

VAT -

All figures quoted are exclusive of VAT unless otherwise stated.

TENANT APPLICATION FEE -

The ingoing tenant will be charged an application fee of £250 plus VAT (£300 inc VAT) towards the costs incurred in undertaking appropriate credit and reference checks. Accounts will be requested where available and a deposit and/or personal guarantee may be required.

CONTROL OF ASBESTOS REGULATIONS -

As per the Control of Asbestos Regulations 2012, the owner or tenant of the property, or anyone else who has control over it and/or responsibility for maintaining it, must comply with the regulations which may include the detection of and/or management of any asbestos or asbestos related compounds contained at the property. Maggs & Allen has not tested or inspected for asbestos and therefore recommend all interested parties to make their own enquiries.

CODE FOR LEASING BUSINESS PREMISES -

We advise all interested parties to refer to the RICS Code for Leasing Business Premises, link available via our website.