High Street, Kingswood, Bristol, BS15 4AA

£750,000 - Sold at Auction

  • Guide Price: 725,00
  • March 2023 Auction
  • Fully Let
  • Producing Gross Rent of £68,400 PA
  • Potential to increase

REGISTER TO BID

MAKE A PRE-AUCTION OFFER



Require Finance?

Compare Property Finance from over 100 lenders
Click HERE to start your search

A representive from South West Business Finance will contact you to discuss your options



Share:

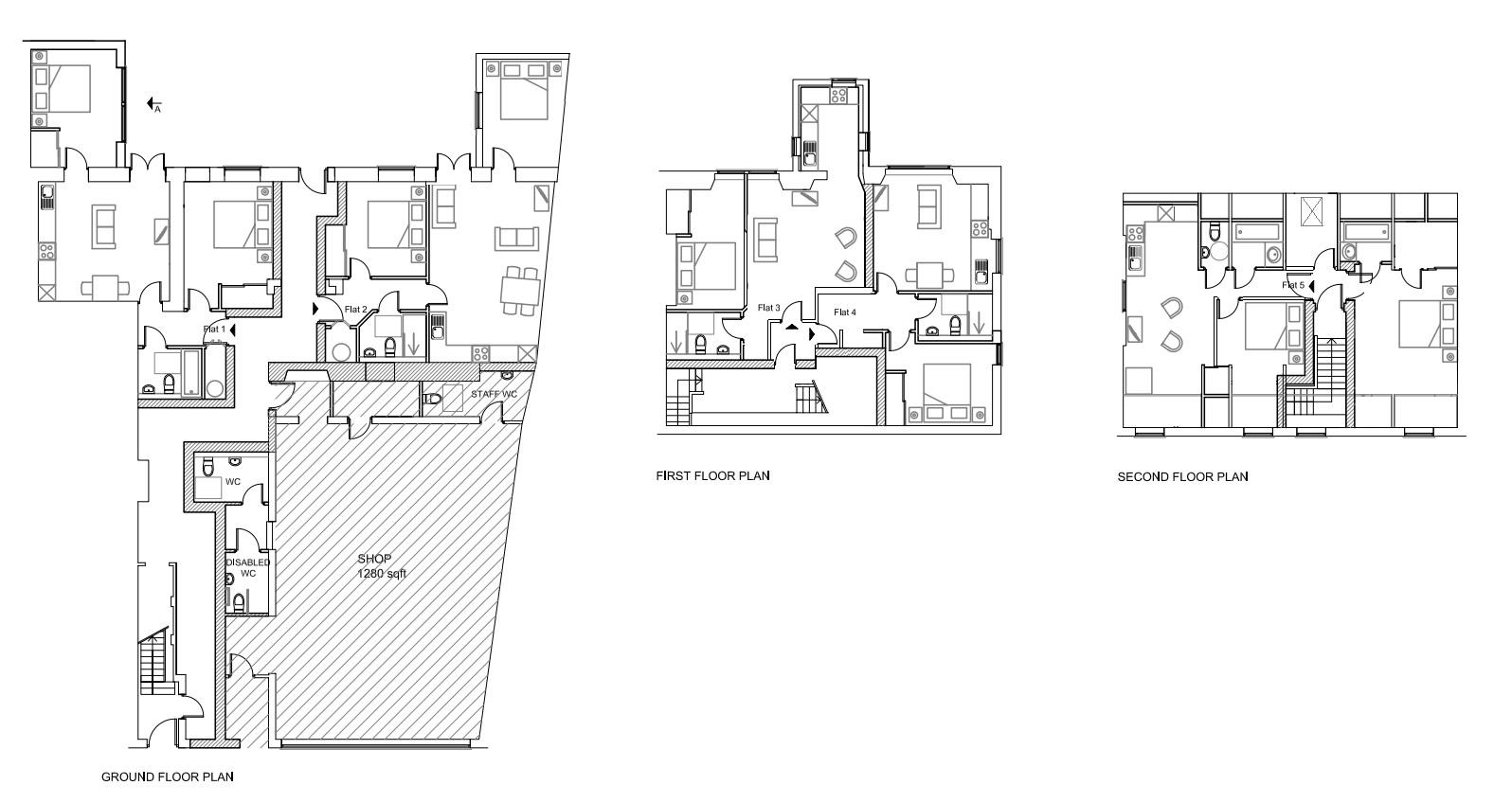
SOLD FOR £750,000 - A substantial freehold investment property comprising of a ground floor beauty salon and five well-presented, self-contained flats (2 x 1-Bedroom Flats, 2 x 2-Bedroom Flats & 1 x 3-Bedroom Flat). The property is currently fully-let producing £68,400 per annum making this a superb and high-yielding mixed-use investment opportunity. Situated in a prominent position on the High Street in Kingswood, the property also benefits from a car park to the rear.

FOR SALE BY AUCTION -

This property is due to feature in our online auction on 21 March 2023 at 6.00pm. Bidding is via proxy, telephone or online remote bidding.

VIEWINGS -

By appointment.

SUMMARY -

SOLD FOR £750,000 - SUBSTANTIAL MIXED-USE INVESTMENT - RETAIL UNIT & 5 FLATS LET PRODUCING £68,400 PER ANNUM

DESCRIPTION -

A substantial freehold investment property comprising of a ground floor beauty salon and five well-presented, self-contained flats (2 x 1-Bedroom Flats, 2 x 2-Bedroom Flats & 1 x 3-Bedroom Flat). The property is currently fully-let producing £68,400 per annum making this a superb and high-yielding mixed-use investment opportunity. Situated in a prominent position on the High Street in Kingswood, the property also benefits from a car park to the rear.

LOCATION -

The property is situated on the High Street in Kingswood in a mixed parade of shops. Easy access is provided to the A4174 Ring Road and the motorway network.

ACCOMMODATION (approx. measurements) -

Beauty Salon: 119 sq m
Flat 1 (2-bedroom): 57 sq m
Flat 2 (2-bedroom): 47 sq m
Flat 3 (1-bedrroom): 41 sq m
Flat 4 (1-bedroom): 37 sq m
Flat 5: (2/3-bedroom): 81 sq m

COMPLETION -

Completion for this lot will be 8 weeks from exchange of contracts or sooner by mutual agreement.

LEASE/RENTAL DETAILS -

Beauty Salon: £1,350 pcm
Flat 1: £850 pcm
Flat 2: £1,000 pcm
Flat 3: £750 pcm
Flat 4: £750 pcm
Flat 5: £1,000 pcm

TOTAL RENT: £68,400 Per Annum

ENERGY PERFORMANCE CERTIFICATE -

Ratings:
Shop: E (expires January 2029).
Flats 1 & 2 - E
Flats: 3 & 4 - C
Flat 5: D

BUYER'S PREMIUM -

Please be advised that all purchasers are subject to a £1,200 plus VAT (£1,440 inc VAT) buyer’s premium payable upon exchange of contracts.

*GUIDE PRICE -

Guide Prices are provided as an indication of each seller's minimum expectation. They are not necessarily figures which a property will sell for and may change at any time prior to the auction. Each property will be offered subject to Reserve Price (a figure below which the Auctioneer cannot sell the property during the auction) which we expect will be set within the Guide Range or no more than 10% above a single figure Guide.

RESERVE PRICE -

The seller's minimum acceptable price at auction and the figure below which the auctioneer cannot sell. The reserve price is not disclosed and remains confidential between the seller and the auctioneer. Both the guide price and the reserve price can be subject to change up to and including the day of the auction.

PROXY, TELEPHONE & ONLINE REMOTE BIDDING -

The auction will be held online via live video stream with buyers able to bid via telephone, online or by submitting a proxy bid. You will need to complete our remote bidding form, which is available to download from our website. The completed form, ID (driving licence or passport and a recent utility bill stating the home address of the purchaser) and a bank transfer for the Preliminary Deposit must be received no later than 24 hours before the date of the auction.

PRELIMINARY DEPOSITS -

The Preliminary Deposit required for each lot you wish to bid for will be calculated based upon the Guide Price as follows:

£1,000 - £50,000: £2,000
£51,000 - £150,000: £5,000
£151,000 and above: £10,000

If your bid is successful, the balance of the deposit monies and Buyer's Premium (£1,440 inc VAT) must be transferred to our client account within 24 hours of the auction sale. If you are unsuccessful at the auction, your Preliminary Deposit will be returned to you.