Gloucester Road, Patchway, Bristol, BS34 5JH

£345,000 - Sold at Auction

  • Guide Price: 275,00+
  • April 2023 Auction
  • Let to Lloyds Bank at £17,000 PA
  • Long-term redevelopment potential
  • 8-week completion

REGISTER TO BID

MAKE A PRE-AUCTION OFFER



Require Finance?

Compare Property Finance from over 100 lenders
Click HERE to start your search

A representive from South West Business Finance will contact you to discuss your options



Share:

SOLD FOR £345,000 - A substantial pair of commercial buildings (approx. 3,300 sq ft) that are currently arranged as a ground floor bank with additional staff rooms, offices and toilet facilities on the first floor and a car park to the rear. The property is currently let to Lloyds Bank PLC until December 2028 at a passing rent of £17,000 per annum with scope to increase at the next review in December 2023. The property also offers potential for residential development should Lloyds vacate the property.

FOR SALE BY AUCTION -

This property is due to feature in our online auction on 27 April 2023 at 6.00pm. Bidding is via proxy, telephone or online remote bidding.

VIEWING -

By appointment

SUMMARY -

SOLD FOR £345,000 - SUBSTANTIAL COMMERCIAL INVESTMENT LET TO LLOYDS BANK WITH LONG-TERM DEVELOPMENT POTENTIAL

DESCRIPTION -

A substantial pair of commercial buildings (approx. 3,300 sq ft) that are currently arranged as a ground floor bank with additional staff rooms, offices and toilet facilities on the first floor and a car park to the rear. The property is currently let to Lloyds Bank PLC until December 2028 at a passing rent of £17,000 per annum with scope to increase at the next review in December 2023. The property also offers potential for residential development should Lloyds vacate the property.

LOCATION -

The property is situated in a prominent trading position on the A38 Gloucester Road in Patchway. Excellent transport links are provided to the city centre, Cribbs Causeway and the motorway networks.

ACCOMMODATION -

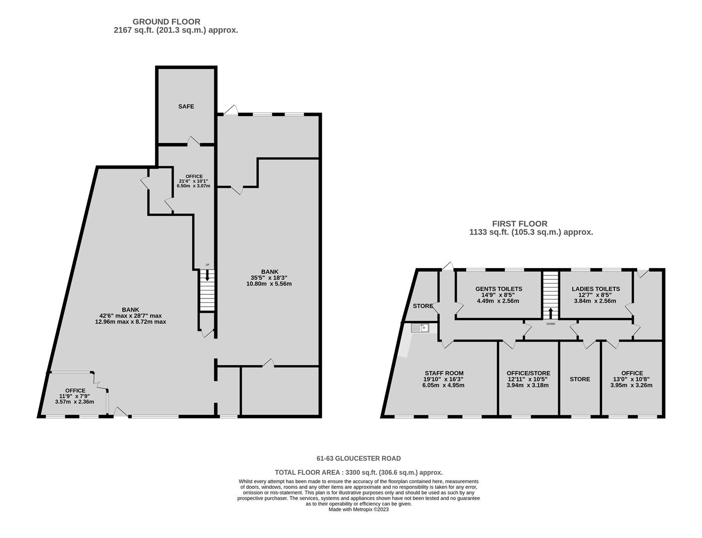
Please refer to floorplan for approximate room measurements and internal layout.

GROUND FLOOR - Approx. 2,167 ft² (201.3 m²)) -

Arranged to provide two large banking areas, various offices and a safe.

FIRST FLOOR - Approx. 1,133 ft² (105.3 m²) -

Comprising various offices, store rooms, a staff room with kitchen and toilet facilities.

OUTSIDE -

There is a car park to the rear of the building providing off-street parking.

LEASE DETAILS -

The property is currently let to Lloyds Bank PLC until December 2028 at a passing rent of £17,000 per annum, subject to a break clause and rent review in December 2023. We would suggest that the current market rent for the building lies in the region of £25,000 per annum.

DEVELOPMENT POTENTIAL -

If Lloyds Bank were to exercise their break clause in December 2023, this would present an excellent opportunity to redevelop the building and there is scope for residential flats on the first floor and to the rear, subject to consents.

COMPLETION -

Completion for this lot will be 8 weeks from exchange of contracts or sooner by mutual agreement.

ENERGY PERFORMANCE CERTIFICATE -

Rating: D

BUYER'S PREMIUM -

Please be advised that all purchasers are subject to a £1,200 plus VAT (£1,440 inc VAT) buyer’s premium payable upon exchange of contracts.

*GUIDE PRICE -

Guide Prices are provided as an indication of each seller's minimum expectation. They are not necessarily figures which a property will sell for and may change at any time prior to the auction. Each property will be offered subject to Reserve Price (a figure below which the Auctioneer cannot sell the property during the auction) which we expect will be set within the Guide Range or no more than 10% above a single figure Guide.

RESERVE PRICE -

The seller's minimum acceptable price at auction and the figure below which the auctioneer cannot sell. The reserve price is not disclosed and remains confidential between the seller and the auctioneer. Both the guide price and the reserve price can be subject to change up to and including the day of the auction.

PROXY, TELEPHONE & ONLINE REMOTE BIDDING -

The auction will be held online via live video stream with buyers able to bid via telephone, online or by submitting a proxy bid. You will need to complete our remote bidding form, which is available to download from our website. The completed form, ID (driving licence or passport and a recent utility bill stating the home address of the purchaser) and a bank transfer for the Preliminary Deposit must be received no later than 24 hours before the date of the auction.

PRELIMINARY DEPOSITS -

The Preliminary Deposit required for each lot you wish to bid for will be calculated based upon the Guide Price as follows:

£1,000 - £50,000: £2,000
£51,000 - £150,000: £5,000
£151,000 and above: £10,000

If your bid is successful, the balance of the deposit monies and Buyer's Premium (£1,440 inc VAT) must be transferred to our client account within 24 hours of the auction sale. If you are unsuccessful at the auction, your Preliminary Deposit will be returned to you.