St. James Street, Mangotsfield, Bristol, BS16 9HD

£270,000 - Sold at Auction

  • Guide Price: £250,000+
  • April 2023 Auction
  • 2 x large garages to the rear with scope for redevelopment
  • Fantastic investment/break-up opportunity
  • 8-week completion

REGISTER TO BID

MAKE A PRE-AUCTION OFFER



Require Finance?

Compare Property Finance from over 100 lenders
Click HERE to start your search

A representive from South West Business Finance will contact you to discuss your options



Share:

SOLD FOR £270,000 - A Victorian end of terrace property, arranged as two self-contained one-bedroom flats along with a courtyard and two large garages to the rear. The flats and garages are currently fully-let producing circa £14,760 per annum with excellent scope to increase the rental income if the rents were brought up to market level. A superb residential investment or potential break-up opportunity with possible redevelopment prospects for the rear garages, subject to consents.

FOR SALE BY AUCTION -

This property is due to feature in our online auction on 27 April 2023 at 6.00pm. Bidding is via proxy, telephone or online remote bidding.

VIEWINGS -

By appointment.

SUMMARY -

SOLD FOR £270,000 - SUBSTANTIAL END-TERRACED PROPERTY ARRANGED AS 2 X 1-BEDROOM FLATS WITH REAR COURTYARD & 2 LARGE GARAGES

DESCRIPTION -

A Victorian end of terrace property, arranged as two self-contained one-bedroom flats along with a courtyard and two large garages to the rear. The flats and garages are currently fully-let producing circa £14,760 per annum with excellent scope to increase the rental income if the rents were brought up to market level. A superb residential investment or potential break-up opportunity with possible redevelopment prospects for the rear garages, subject to consents.

LOCATION -

The property is situated on St James Street, an incredibly convenient location surrounded by a range of green spaces, local schools and other local amenities.

ACCOMMODATION / RENTAL DETAILS -

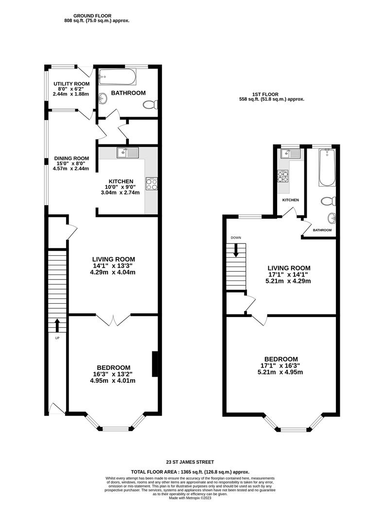
Please refer to floorplan for approximate room measurements and internal layout.

GROUND FLOOR FLAT -

Comprising a lounge/diner, double bedroom, kitchen and bathroom.
The flat is currently let on an AST producing £545pcm. Following some cosmetic improvements we would anticipate a market rent of circa £795 pcm.

FIRST FLOOR FLAT -

Comprising a ground floor entrance hall, lounge/diner, double bedroom, kitchen and bathroom.
The flat is currently let on an AST producing £480pcm. Following some cosmetic improvements we would anticipate a market rent of circa £725 pcm.

BREAK-UP OPPORTUNITY -

The flats could be renovated and sold off separately and we would anticipate break-up values as follows:

GFF: £195,000
FFF: £175,000

TOTAL: £370,000

GARAGES -

The property benefits from two large garages to the rear, which are each let at £100 pcm. The garages may offer scope for redevelopment, subject to obtaining the necessary planning consents.

TENURE -

The property is for sale on a freehold basis, subject to the tenancies detailed above.

COMPLETION -

Completion for this lot will be 8 weeks from exchange of contracts or sooner by mutual agreement.

ENERGY PERFORMANCE CERTIFICATE -

Ratings:
Ground Floor Flat - C
Top Floor Flat - D

BUYER'S PREMIUM -

Please be advised that all purchasers are subject to a £1,200 plus VAT (£1,440 inc VAT) buyer’s premium payable upon exchange of contracts.

*GUIDE PRICE -

Guide Prices are provided as an indication of each seller's minimum expectation. They are not necessarily figures which a property will sell for and may change at any time prior to the auction. Each property will be offered subject to Reserve Price (a figure below which the Auctioneer cannot sell the property during the auction) which we expect will be set within the Guide Range or no more than 10% above a single figure Guide.

RESERVE PRICE -

The seller's minimum acceptable price at auction and the figure below which the auctioneer cannot sell. The reserve price is not disclosed and remains confidential between the seller and the auctioneer. Both the guide price and the reserve price can be subject to change up to and including the day of the auction.

PROXY, TELEPHONE & ONLINE REMOTE BIDDING -

The auction will be held online via live video stream with buyers able to bid via telephone, online or by submitting a proxy bid. You will need to complete our remote bidding form, which is available to download from our website. The completed form, ID (driving licence or passport and a recent utility bill stating the home address of the purchaser) and a bank transfer for the Preliminary Deposit must be received no later than 24 hours before the date of the auction.

PRELIMINARY DEPOSITS -

The Preliminary Deposit required for each lot you wish to bid for will be calculated based upon the Guide Price as follows:

£1,000 - £50,000: £2,000
£51,000 - £150,000: £5,000
£151,000 and above: £10,000

If your bid is successful, the balance of the deposit monies and Buyer's Premium (£1,440 inc VAT) must be transferred to our client account within 24 hours of the auction sale. If you are unsuccessful at the auction, your Preliminary Deposit will be returned to you.