14, North View, Westbury Park, Bristol, BS6 7QB

£321,000 - Sold at Auction

  • Guide Price £300,000+
  • October 2022 Auction
  • Ground floor shop + maisonette
  • Redevelopment potential



Require Finance?

Compare Property Finance from over 100 lenders
Click HERE to start your search

A representive from South West Business Finance will contact you to discuss your options



Share:

SOLD FOR £321,000
A mid terrace period property that is currently arranged as a ground floor shop with residential accommodation above and behind, with an additional loft room and an enclosed rear garden. The property is in need of renovation and whilst currently let, offers potential for conversion back to a family home, subject to obtaining vacant possession and planning consent. Situated in a highly desirable location, within close proximity of the Durdham Downs and Waitrose supermarket.

FOR SALE BY AUCTION -

This property is due to feature in our online auction on 13 October 2022 at 6.00pm. Bidding is via proxy, telephone or online remote bidding.

VIEWING -

By appointment

SUMMARY -

SOLD FOR £321,000 - MIXED USE PROPERTY IN NEED OF REFURBISHMENT WITH REDEVELOPMENT POTENTIAL

DESCRIPTION -

A ground floor shop with accommodation above and behind (plus loft room) with enclosed rear garden. The property is currently let at a low rent on a fully repairing and insuring basis. Whilst the property is in need of refurbishment, it offers potential for conversion back to a family home, subject to obtaining the necessary consents and vacant possession. As a family house, we would anticipate a finished value of circa £550,000 once fully refurbished as a 3 bedroom house.

LOCATION -

Situated in a highly desirable location in Westbury Park, within easy reach of The Durdham Downs and Henleaze Road.

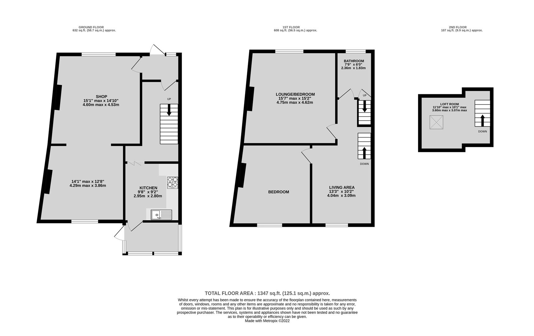
ACCOMMODATION -

Please refer to floorplan for approximate room measurements and internal layout.

LEASE DETAILS -

The property is let on a 7 year less two months fully repairing and insuring term from 31st May 2004, at a low rent of £10,680pa. Whilst we therefore understand the lease is due for renewal, we are informed an informal extension was granted in 2018 for 5 years, to the 31st August 2023, although we advise all parties to seek independent advice as to the legality of such.

COMPLETION -

Completion for this lot will be 8 weeks frm exchange of contracts or sooner by mutual agreement.

ENERGY PERFORMANCE CERTIFICATE -

Ratings: D

BUYER'S PREMIUM -

Please be advised that all purchasers are subject to a £1,200 plus VAT (£1,440 inc VAT) buyer’s premium payable upon exchange of contracts.

*GUIDE PRICE -

Guide Prices are provided as an indication of each seller's minimum expectation. They are not necessarily figures which a property will sell for and may change at any time prior to the auction. Each property will be offered subject to Reserve Price (a figure below which the Auctioneer cannot sell the property during the auction) which we expect will be set within the Guide Range or no more than 10% above a single figure Guide.

RESERVE PRICE -

The seller's minimum acceptable price at auction and the figure below which the auctioneer cannot sell. The reserve price is not disclosed and remains confidential between the seller and the auctioneer. Both the guide price and the reserve price can be subject to change up to and including the day of the auction.

PROXY, TELEPHONE & ONLINE REMOTE BIDDING -

The auction will be held online via live video stream with buyers able to bid via telephone, online or by submitting a proxy bid. You will need to complete our remote bidding form, which is available to download from our website. The completed form, ID (driving licence or passport and a recent utility bill stating the home address of the purchaser) and a cheque/bank transfer for the Preliminary Deposit must be received no later than 24 hours before the date of the auction.

PRELIMINARY DEPOSITS -

The Preliminary Deposit required for each lot you wish to bid for will be calculated based upon the Guide Price as follows:

£1,000 - £50,000: £2,000
£51,000 - £150,000: £5,000
£151,000 and above: £10,000

If your bid is successful, the balance of the deposit monies and Buyer's Premium (£1,440 inc VAT) must be transferred to our client account within 24 hours of the auction sale. If you are unsuccessful at the auction, your Preliminary Deposit will be returned to you.