Ash Lane, Almondsbury, Bristol, BS32 4BY

£380,000 - Sold at Auction

  • Guide Price £300,000+
  • October 2022 Auction
  • Full Planning for a Detached House
  • 0.51 Acre Stunning Rural Plot



Require Finance?

Compare Property Finance from over 100 lenders
Click HERE to start your search

A representive from South West Business Finance will contact you to discuss your options



Share:

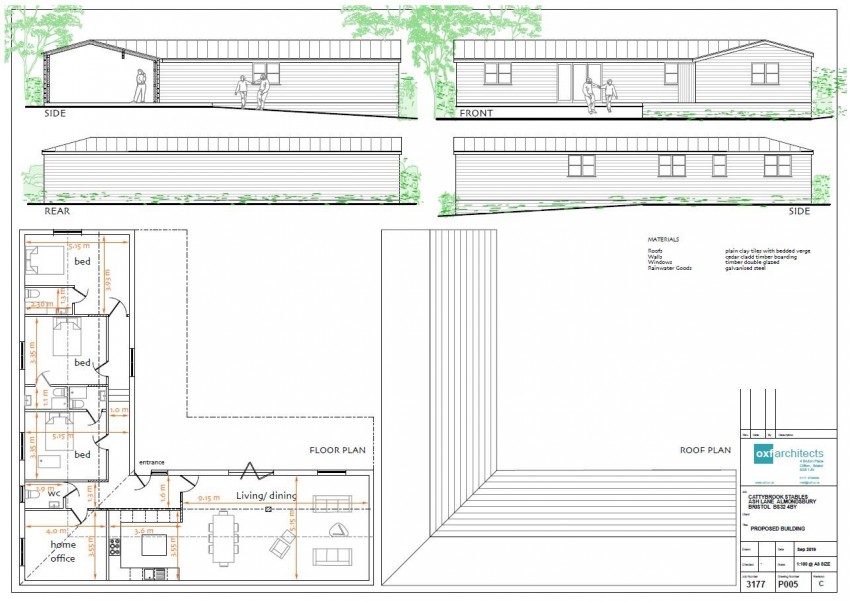
SOLD PRIOR - A truly unique opportunity to purchase a rural parcel of land measuring approximately 0.51 acres with full planning consent granted to create a stunning detached 3/4 bedroom family home. The site is currently occupied by an L-shaped stable block with kitchen/toilet facilities and tack room. The approved planning consent will facilitate the conversion/extension of the existing stable block to create a superb family home with an open-plan kitchen/dining living space, three double bedrooms (all with en-suites) and an additional home office/fourth bedroom. The site is situated in a picturesque location with stunning views across countryside towards the River Severn, whilst still being within easy reach of local amenities and the motorway network. There is an additional plot of up to approximately 0.75 acres available by separate negotiation with the option of including a 60m x 20m riding arena.

FOR SALE BY AUCTION -

This property is due to feature in our online auction on 13 October 2022 at 6.00pm. Bidding is via proxy, telephone or online remote bidding.

VIEWING -

By appointment.

SUMMARY -

SOLD PRIOR - STUNNING RURAL PLOT WITH PLANNING FOR A DETACHED RESIDENTIAL DWELLING

DESCRIPTION -

A truly unique opportunity to purchase a rural parcel of land measuring approximately 0.51 acres with full planning consent granted to create a stunning detached 3/4 bedroom family home. The site is currently occupied by an L-shaped stable block with kitchen/toilet facilities and tack room. The approved planning consent will facilitate the conversion/extension of the existing stable block to create a superb family home with an open-plan kitchen/dining living space, three double bedrooms (all with en-suites) and an additional home office/fourth bedroom. The proposed dwelling will take advantage of the stunning vantage point with panoramic views across countryside towards the River Severn, whilst still being within easy reach of local amenities and the motorway network. There is an additional plot of up to approximately 0.75 acres available by separate negotiation with the option of including a 60m x 20m riding arena.

LOCATION -

The property is situated on Ash Lane in Over, surrounded by open countryside and equestrian facilities. The nearby village of Lower Almondsbury offers a village shop, church, public house with restaurant, doctor's surgery, dental practice, primary school and garden centre. Despite its rural location, the site has excellent transport links to the M4/M5 interchange and the A38, which provide easy access to both Bristol and Gloucester. Cribbs Causeway is within 5 minutes' drive of the property, which includes retail parks and shopping centres.

PLANNING -

Full planning consent was granted on 17 December 2021 for the conversion of the existing stables and barn to 1no. dwelling with associated works, under Application No. P20/17533/F.

LOCAL AUTHORITY -

South Gloucestershire Council.

SERVICES -

We understand that the stable block is currently connected to mains water and electricity.

NOTES -

Please note that an additional parcel of land measuring approximately 0.75 acres, which adjoins the site, is available in addition to the subject property. The successful purchaser of Cattybrook Stables can elect to purchase this field at a fixed price of £50,000. Prior notification of your intention to purchase this additional land will be required when submitting your remote bidding form.

BUYER'S PREMIUM -

Please be advised that all purchasers are subject to a £1,200 plus VAT (£1,440 inc VAT) buyer’s premium payable upon exchange of contracts.

*GUIDE PRICE -

Guide Prices are provided as an indication of each seller's minimum expectation. They are not necessarily figures which a property will sell for and may change at any time prior to the auction. Each property will be offered subject to Reserve Price (a figure below which the Auctioneer cannot sell the property during the auction) which we expect will be set within the Guide Range or no more than 10% above a single figure Guide.

RESERVE PRICE -

The seller's minimum acceptable price at auction and the figure below which the auctioneer cannot sell. The reserve price is not disclosed and remains confidential between the seller and the auctioneer. Both the guide price and the reserve price can be subject to change up to and including the day of the auction.

PROXY, TELEPHONE & ONLINE REMOTE BIDDING -

The auction will be held online via live video stream with buyers able to bid via telephone, online or by submitting a proxy bid. You will need to complete our remote bidding form, which is available to download from our website. The completed form, ID (driving licence or passport and a recent utility bill stating the home address of the purchaser) and a cheque/bank transfer for the Preliminary Deposit must be received no later than 24 hours before the date of the auction.

PRELIMINARY DEPOSITS -

The Preliminary Deposit required for each lot you wish to bid for will be calculated based upon the Guide Price as follows:

£1,000 - £50,000: £2,000
£51,000 - £150,000: £5,000
£151,000 and above: £10,000

If your bid is successful, the balance of the deposit monies and Buyer's Premium (£1,440 inc VAT) must be transferred to our client account within 24 hours of the auction sale. If you are unsuccessful at the auction, your Preliminary Deposit will be returned to you.