729, Fishponds Road, Fishponds, Bristol, BS16 3UW

£384,000 - Sold at Auction

  • Guide Price £235,000+
  • June 2022 Auction
  • Three Storey Mixed-use Investment
  • Redevelopment Opportunity

REGISTER TO BID

MAKE A PRE-AUCTION OFFER



Require Finance?

Compare Property Finance from over 100 lenders
Click HERE to start your search

A representive from South West Business Finance will contact you to discuss your options



Share:

SOLD FOR £384,000
A substantial three storey mix-use commercial premises, occupying a prominent corner position in the heart of Fishponds. The property is currently arranged to provide a ground floor retail unit with self-contained offices above on the first and second floors. The upper floors are in need of refurbishment and offer potential for conversion into two flats or a large HMO, subject to consents. A superb investment/development opportunity.

FOR SALE BY AUCTION -

SOLD FOR £384,000 - June 2022

VIEWING -

By appointment.

SUMMARY -

SOLD FOR £384,000
THREE STOREY MIXED-USE COMMERCIAL PROPERTY ON A CORNER PLOT - REDEVELOPMENT OPPORTUNITY

DESCRIPTION -

An exciting investment/development opportunity comprising a three storey mixed-use commercial premises arranged to provide a ground floor retail unit with two floors of offices above. The property is situated in a prominent corner position on Fishponds Road and offers potential for the conversion of the upper floors into two flats or one large HMO, subject to consents. An ideal opportunity for developers and investors.

LOCATION -

The property is situated on the corner of Fishponds Road and Guinea Lane in a busy trading position. Easy access is provided to the city centre and M32 and a wide range of local amenities are available in the immediate vicinity. Nearby local occupiers include Sainsbury's Local, Coffee #1, Morrison's and Lidl.

ACCOMMODATION -

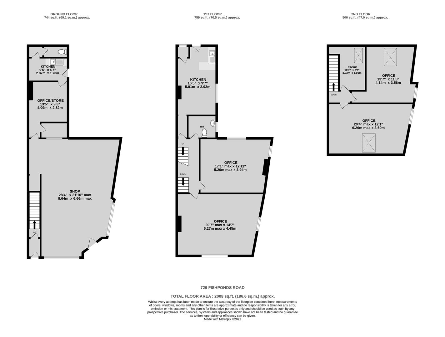
Please refer to floorplan for approximate room measurements and internal layout.

GROUND FLOOR - Approx. 744 sq ft (69.1 sq m) -

A ground floor retail unit with dual aspect windows into the main sales area, a rear office/store room, kitchen and toilet facilities.

FIRST FLOOR - Approx. 759 sq ft (70.5 sq m) -

Arranged to provide two large offices, a kitchen and WC. Access is via a separate staircase at the front of the building with an additional rear access via an external staircase.

SECOND FLOOR - Approx. 506 sq ft (47.0 sq m) -

Arranged to provide two further offices and a store room.

OUTSIDE -

The property benefits from a garden/yard to the rear with side access from Guinea Lane.

RENTAL POTENTIAL -

The property offers potential for conversion of the upper floors into two 1-bedroom flats or a 4-bedroom HMO whilst retaining a retail unit on the ground floor, subject to consents. We would anticipate the following rental figures for beach option as follows:

GROUND FLOOR SHOP: £15,000 Per Annum
2 x 1-BEDROOM FLATS: £750 pcm per flat (£18,000 Per Annum)

GROUND FLOOR SHOP: £15,000 Per Annum
4-BEDROOM HMO: £500 pcm per room (£24,000 Per Annum)

TOTAL: £33,000 - £39,000 Per Annum

TENURE -

The property is offered for sale on a freehold basis with vacant possession.

BUSINESS RATES -

The Rateable Values as per the VOA website are as follows:
729 Fishponds Road: £10,500.
729A Fishponds Road: £7,300.

ENERGY PERFORMANCE CERTIFICATE -

Rating: C

BUYER'S PREMIUM -

Please be advised that all purchasers are subject to a £1,200 plus VAT (£1,440 inc VAT) buyer’s premium payable upon exchange of contracts.

*GUIDE PRICE -

Guide Prices are provided as an indication of each seller's minimum expectation. They are not necessarily figures which a property will sell for and may change at any time prior to the auction. Each property will be offered subject to Reserve Price (a figure below which the Auctioneer cannot sell the property during the auction) which we expect will be set within the Guide Range or no more than 10% above a single figure Guide.

RESERVE PRICE -

The seller's minimum acceptable price at auction and the figure below which the auctioneer cannot sell. The reserve price is not disclosed and remains confidential between the seller and the auctioneer. Both the guide price and the reserve price can be subject to change up to and including the day of the auction.

PROXY, TELEPHONE & ONLINE REMOTE BIDDING -

The auction will be held online via live video stream with buyers able to bid via telephone, online or by submitting a proxy bid. You will need to complete our remote bidding form, which is available to download from our website. The completed form, ID (driving licence or passport and a recent utility bill stating the home address of the purchaser) and a cheque/bank transfer for the Preliminary Deposit must be received no later than 24 hours before the date of the auction.

PRELIMINARY DEPOSITS -

The Preliminary Deposit required for each lot you wish to bid for will be calculated based upon the Guide Price as follows:

£1,000 - £50,000: £2,000
£51,000 - £150,000: £5,000
£151,000 and above: £10,000

If your bid is successful, the balance of the deposit monies and Buyer's Premium (£1,440 inc VAT) must be transferred to our client account within 24 hours of the auction sale. If you are unsuccessful at the auction, your Preliminary Deposit will be returned to you.