87-89, Church Road, Redfield, Bristol, BS5 9JR

£510,000 - Sold at Auction

  • Guide Price £450,000+
  • May 2022 Auction
  • Substantial commercial premises
  • Potential for residential conversion

REGISTER TO BID

MAKE A PRE-AUCTION OFFER



Require Finance?

Compare Property Finance from over 100 lenders
Click HERE to start your search

A representive from South West Business Finance will contact you to discuss your options



Share:

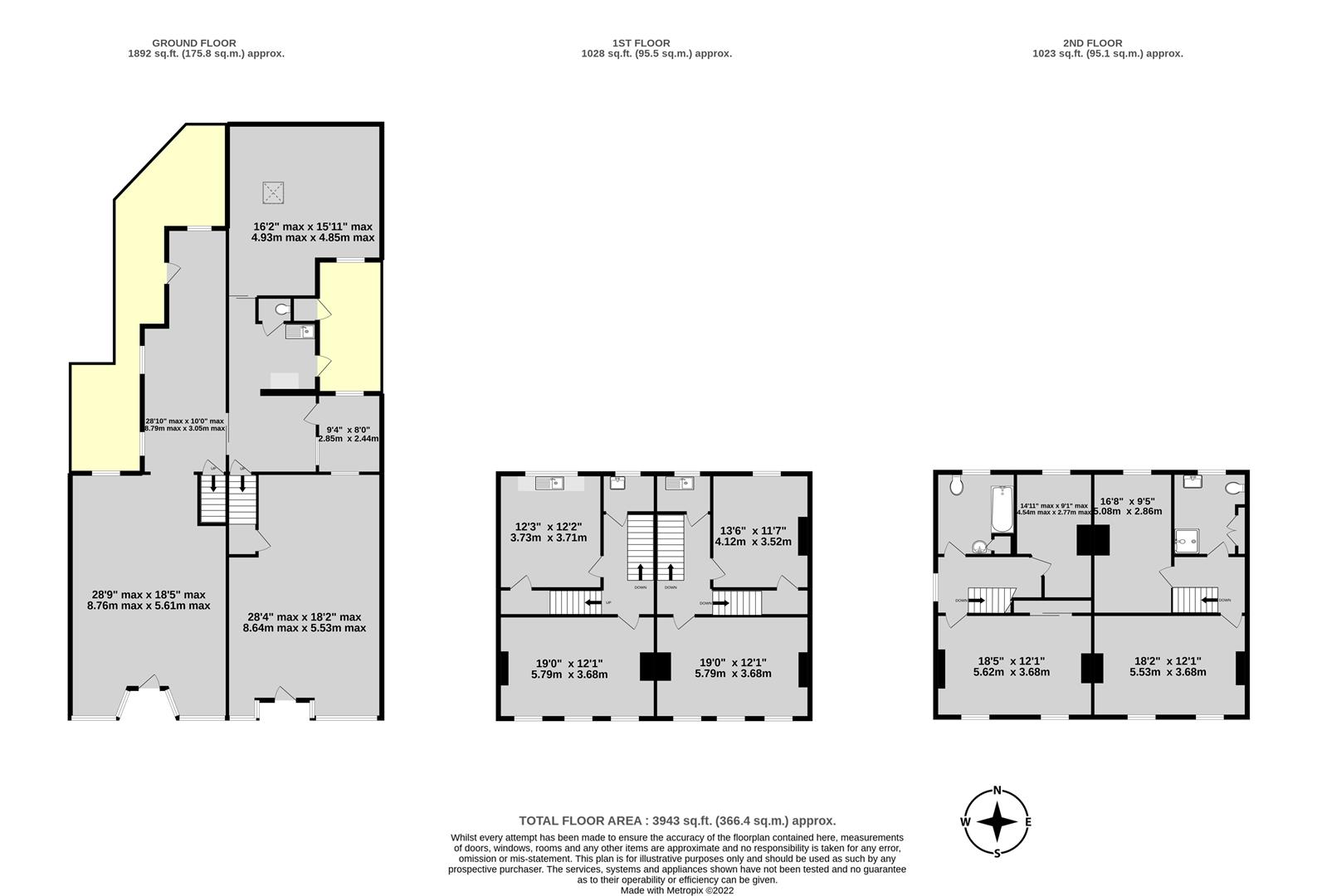
A substantial pair of three storey commercial buildings measuring approximately 3,943 sq ft in a fantastic location on Church Road, Redfield. The properties are arranged to provide a ground floor commercial premises spanning both buildings, each with ancillary accommodation above. The property further benefits from a small warehouse and gardens to the rear. There is excellent scope for redevelopment and may suit a fully residential scheme of flats or a mixed-use investment, subject to obtaining the necessary consents. The property is to be sold with vacant possession and presents an excellent opportunity for investors and developers.
8-WEEK COMPLETION AVAILABLE

FOR SALE BY AUCTION -

This property is due to feature in our online auction on 26 May 2022 at 6.00pm. Bidding is via proxy, telephone or online remote bidding.

VIEWING -

By appointment

SUMMARY -

SOLD FOR £510,000 - SUBSTANTIAL PAIR OF 3 STOREY COMMERCIAL BUILDINGS - POTENTIAL FOR REDEVELOPMENT

DESCRIPTION -

A substantial pair of commercial buildings measuring approximately 3,943 sq ft, situated in a prominent position on Church Road in Redfield. The site comprises two commercial buildings, each with ancillary accommodation above. The property offers excellent potential for redevelopment, subject to obtaining the necessary consents. The property is to be sold with vacant possession and presents a superb opportunity for developers and investors alike.

LOCATION -

The property is situated in a prominent position on Church Road in Redfield and benefits from easy access to the city centre as well as a wide range of local amenities.

DEVELOPMENT POTENTIAL -

The property offers significant scope for redevelopment and a scheme of residential flats, HMO use or a mixed commercial/residential scheme may be suitable, subject to consents.

ACCOMMODATION -

Please refer to floorplan for approximate room measurements and internal layout.

LOCAL AUTHORITY -

Bristol City Council

ENERGY PERFORMANCE CERTIFICATE -

Rating: TBC

BUYER'S PREMIUM -

Please be advised that all purchasers are subject to a £1,200 plus VAT (£1,440 inc VAT) buyer’s premium payable upon exchange of contracts.

*GUIDE PRICE -

Guide Prices are provided as an indication of each seller's minimum expectation. They are not necessarily figures which a property will sell for and may change at any time prior to the auction. Each property will be offered subject to Reserve Price (a figure below which the Auctioneer cannot sell the property during the auction) which we expect will be set within the Guide Range or no more than 10% above a single figure Guide.

PROXY, TELEPHONE & ONLINE REMOTE BIDDING -

The auction will be held online via live video stream with buyers able to bid via telephone, online or by submitting a proxy bid. You will need to complete our remote bidding form, which is available to download from our website. The completed form, ID (driving licence or passport and a recent utility bill stating the home address of the purchaser) and a cheque/bank transfer for the Preliminary Deposit must be received no later than 24 hours before the date of the auction.

RESERVE PRICE -

The seller's minimum acceptable price at auction and the figure below which the auctioneer cannot sell. The reserve price is not disclosed and remains confidential between the seller and the auctioneer. Both the guide price and the reserve price can be subject to change up to and including the day of the auction.

PRELIMINARY DEPOSITS -

The Preliminary Deposit required for each lot you wish to bid for will be calculated based upon the Guide Price as follows:

£1,000 - £50,000: £2,000
£51,000 - £150,000: £5,000
£151,000 and above: £10,000

If your bid is successful, the balance of the deposit monies and Buyer's Premium (£1,440 inc VAT) must be transferred to our client account within 24 hours of the auction sale. If you are unsuccessful at the auction, your Preliminary Deposit will be returned to you.