Development Site at 168, Gloucester Road, Patchway, Bristol, BS34 5BG

£540,000 - Sold at Auction

  • Guide Price: £425,000
  • March 2022 Auction
  • Prime development site
  • Planning granted for 8 x 1-bed flats

REGISTER TO BID

MAKE A PRE-AUCTION OFFER



Require Finance?

Compare Property Finance from over 100 lenders
Click HERE to start your search

A representive from South West Business Finance will contact you to discuss your options



Share:

SOLD PRIOR
A level and cleared development site measuring approximately 0.2 acres, situated in a convenient location in Patchway within close proximity to Airbus and Rolls Royce. Full planning consent has been granted for the erection of 8 x 1-bedroom apartments with gardens or balconies and parking. A superb opportunity for builders and developers in an area that has undergone significant redevelopment in recent years.
8 WEEK COMPLETION AVAILABLE

FOR SALE BY AUCTION -

This property is due to feature in our online auction on 17th March 2022 at 6.00pm. Bidding is via proxy, telephone or online remote bidding.

VIEWING -

By appointment

SUMMARY -

SOLD PRIOR

DESCRIPTION -

A level development site of approx. 0.2 acres with full planning consent granted for the erection of 8 x 1-bedroom apartments with parking, and a private garden or balcony.

LOCATION -

The property is situated on Gloucester Road (A38) in Patchway, North Bristol. Excellent transport links are provided to the M4 & M5 motorways, The Mall and a wide range of large employers including Airbus and Rollls Royce.

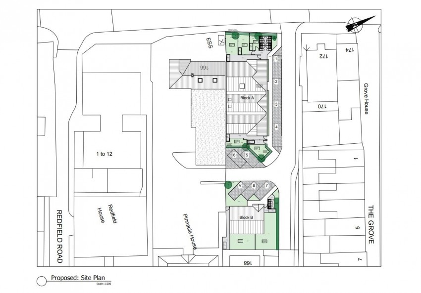
PROPOSED APARTMENTS -

Each 1-bedroom apartment will have a Gross Internal Area of 50 sq m and will comprise of an open-plan kitchen/living room, double bedroom and bathroom.

PLANNING -

Full planning consent was granted on 4 February 2022 for the erection of 8 x 1-bedroom flats in two blocks under reference no. P21/03236/F.

LOCAL AUTHORITY -

South Gloucestershire Council.

TENURE -

Understood to be freehold.

SITE PLAN -

Please note that the access roads outlined in red on the plans are included in the sale but are subject to existing rights of way. The access roads can therefore not be built upon.

BUYER'S PREMIUM -

Please be advised that all purchasers are subject to a £1,200 plus VAT (£1,440 inc VAT) buyer's premium payable upon exchange of contracts.

*GUIDE PRICE -

Guide Prices are provided as an indication of each seller's minimum expectation. They are not necessarily figures which a property will sell for and may change at any time prior to the auction. Each property will be offered subject to Reserve Price (a figure below which the Auctioneer cannot sell the property during the auction) which we expect will be set within the Guide Range or no more than 10% above a single figure Guide.

RESERVE PRICE -

The seller's minimum acceptable price at auction and the figure below which the auctioneer cannot sell. The reserve price is not disclosed and remains confidential between the seller and the auctioneer. Both the guide price and the reserve price can be subject to change up to and including the day of the auction.

PROXY, TELEPHONE & ONLINE REMOTE BIDDING -

The auction will be held online via live video stream with buyers able to bid via telephone, online or by submitting a proxy bid. You will need to complete our remote bidding form, which is available to download from our website. The completed form, ID (driving licence or passport and a recent utility bill stating the home address of the purchaser) and a cheque/bank transfer for the Preliminary Deposit must be received no later than 24 hours before the date of the auction.

PRELIMINARY DEPOSITS -

The Preliminary Deposit required for each lot you wish to bid for will be calculated based upon the Guide Price as follows:

£1,000 - £50,000: £2,000
£51,000 - £150,000: £5,000
£151,000 and above: £10,000

If your bid is successful, the balance of the deposit monies and Buyer's Premium (£1,440 inc VAT) must be transferred to our client account within 24 hours of the auction sale. If you are unsuccessful at the auction, your Preliminary Deposit will be returned to you.