34-36, Overnhill Road, Downend, Bristol, BS16 5DP

£965,000 - Sold at Auction

  • Guide Price £895,000+
  • March 2022 Auction
  • Substantial 21-bedroom HMO
  • Superb location in Downend

REGISTER TO BID

MAKE A PRE-AUCTION OFFER



Require Finance?

Compare Property Finance from over 100 lenders
Click HERE to start your search

A representive from South West Business Finance will contact you to discuss your options



Share:

SOLD PRIOR. A rare opportunity to purchase an attractive and substantial pair of semi-detached houses, previously arranged as a 21-bedroom hostel/House in Multiple Occupation (HMO) occupying a generous plot of approximately 0.3 acres. The property benefits from extensive gardens to the rear, laid mostly to hardstanding providing off-street parking for several vehicles.

Full planning consent has been granted for the conversion of the existing building into two 9-bedroom HMOs and the conversion of the existing garage to the rear into a detached 1-bedroom dwelling (works to the garage have been partially completed).

The main property also offers potential for conversion into 8 flats or 2 substantial family houses plus the rear dwelling, subject to consents.

8 WEEK COMPLETION AVAILABLE

FOR SALE BY AUCTION -

This property is due to feature in our online auction on 17 March 2022 at 6.00pm. Bidding is via proxy, telephone or online remote bidding.

VIEWING -

By appointment

SUMMARY -

SOLD PRIOR

DESCRIPTION -

A rare opportunity to purchase an attractive and substantial pair of semi-detached houses, previously arranged as a 21-bedroom hostel/House in Multiple Occupation (HMO) occupying a generous plot of approximately 0.3 acres. The property benefits from extensive gardens to the rear, laid mostly to hardstanding providing off-street parking for several vehicles.

Full planning consent has been granted for the conversion of the existing building into two 9-bedroom HMOs and the conversion of the existing garage to the rear into a detached 1-bedroom dwelling (works to the garage have been partially completed).

The main property also offers potential for conversion into 8 flats or 2 substantial family houses plus the rear dwelling, subject to consents.

LOCATION -

The property is situated in a sought-after residential location on Overnhill Road in Downend, an attractive street comprising primarily of impressive Victorian houses. Easy access is provided to a wide range of local amenities in Downend and Staple Hill. Excellent transport links are provided to Bristol city centre, which is located approximately 5 miles to the southwest. Vehicular access is provided to the rear of the property via a lane off Wrenbert Road.

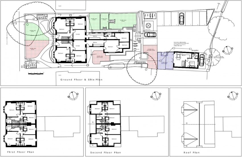
ACCOMMODATION -

Please refer to floorplan for approximate room measurements and internal layout.

POTENTIAL RENTAL VALUES -

If the approved planning consent is implemented to provide two 9-bedroom HMOs and a detached dwelling to the rear, we would anticipate a gross annual income in the region of £150,900 (£650 pcm per room for the HMOs and £875 pcm for the rear dwelling).

PLANNING -

Full planning consent was granted on 24 March 2021 for the sub-division and conversion of the existing property into two separate 9-bedroom HMOs and the conversion of the existing garage into a self-contained dwelling under Application No. P20/23890/F.

Full planning consent was also granted on appeal in July 2016 for the conversion of the main building into 8 self-contained flats and the conversion of the existing garage into an additional dwelling under Application No. PK15/2216/F although this consent has now lapsed.

LOCAL AUTHORITY -

South Gloucestershire Council.

ENERGY PERFORMANCE CERTIFICATE -

Rating: E.

BUYER'S PREMIUM -

Please be advised that all purchasers are subject to a £1,200 plus VAT (£1,440 inc VAT) buyer's premium payable upon exchange of contracts.

*GUIDE PRICE -

Guide Prices are provided as an indication of each seller's minimum expectation. They are not necessarily figures which a property will sell for and may change at any time prior to the auction. Each property will be offered subject to Reserve Price (a figure below which the Auctioneer cannot sell the property during the auction) which we expect will be set within the Guide Range or no more than 10% above a single figure Guide.

RESERVE PRICE -

The seller's minimum acceptable price at auction and the figure below which the auctioneer cannot sell. The reserve price is not disclosed and remains confidential between the seller and the auctioneer. Both the guide price and the reserve price can be subject to change up to and including the day of the auction.

PROXY, TELEPHONE & ONLINE REMOTE BIDDING -

The auction will be held online via live video stream with buyers able to bid via telephone, online or by submitting a proxy bid. You will need to complete our remote bidding form, which is available to download from our website. The completed form, ID (driving licence or passport and a recent utility bill stating the home address of the purchaser) and a cheque/bank transfer for the Preliminary Deposit must be received no later than 24 hours before the date of the auction.

PRELIMINARY DEPOSITS -

The Preliminary Deposit required for each lot you wish to bid for will be calculated based upon the Guide Price as follows:

£1,000 - £50,000: £2,000
£51,000 - £150,000: £5,000
£151,000 and above: £10,000

If your bid is successful, the balance of the deposit monies and Buyer's Premium (£1,440 inc VAT) must be transferred to our client account within 24 hours of the auction sale. If you are unsuccessful at the auction, your Preliminary Deposit will be returned to you.

SUMMARY -