24 & 25, Armoury Square, Easton, Bristol, BS5 0PT

£320,000 - Sold at Auction

3
  • Guide Price: £275,000+
  • March 2022 Auction
  • House & Building Plot
  • Planning granted for an additional house

REGISTER TO BID

MAKE A PRE-AUCTION OFFER



Require Finance?

Compare Property Finance from over 100 lenders
Click HERE to start your search

A representive from South West Business Finance will contact you to discuss your options



Share:

SOLD FOR £320,000
An end of terrace period 3-bedroom house in need of renovation with an additional building plot to the side. Full planning consent has been granted for the erection of a new, 2-bedroom house to be attached to the existing property. Situated in a popular residential cul de sac in Easton, easy access is provided to the city centre and M32. An ideal opportunity for builders, developers and investors.

FOR SALE BY AUCTION -

This property is due to feature in our online auction on 17th March 2022 at 6.00pm. Bidding is via proxy, telephone or online remote bidding.

VIEWING -

By appointment

SUMMARY -

SOLD FOR £320,000

DESCRIPTION -

A freehold development opportunity comprising an existing end of terrace 3-bedroom house in need of renovation with an adjoining building plot with planning consent granted for a new 2-bedroom house on the end of the terrace. A superb opportunity for builders and developers.

LOCATION -

The property is situated at the head of a popular residential cul de sac in Easton. Easy access is provided to Bristol city centre and a wide range of local amenities on Stapleton Road.

EXISTING HOUSE (24 Armoury Square) -

The existing house is in need of complete renovation and comprises an entrance hall, lounge, dining room, kitchen and bathroom on the ground floor with three bedrooms on the first floor. Externally, there is a small paved garden to the front and a courtyard garden to the rear.

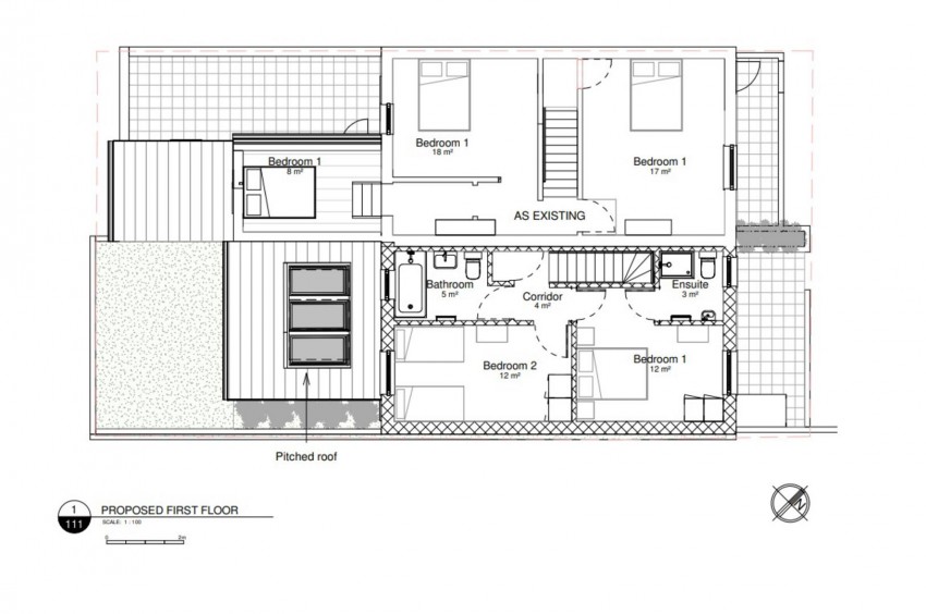
PROPOSED HOUSE (25 Armoury Square) -

The proposed new dwelling will have a gross internal area of 92 sq m and will comprise of an entrance hall, open-plan kitchen/diner, living room, cloakroom and utility room on the ground floor. The first floor will provide two bedrooms (master with en-suite) and a bathroom. Externally, the property will benefit from a small paved garden to the front and an enclosed garden to the rear.

PLANNING -

Full planning consent was granted on 2 March 2021 for the construction of a two storey side extension to accommodate a single dwelling house on the site of former 25 Armoury Square under application no. 20/05012/F.

LOCAL AUTHORITY -

Bristol City Council.

COMMUNITY INFRASTUCTURE LEVY (CIL) -

The CIL for the new-build house has been calculated at £6,838.39.

ENERGY PERFORMANCE CERTIFICATE -

Rating: E

BUYER'S PREMIUM -

Please be advised that all purchasers are subject to a £1,200 plus VAT (£1,440 inc VAT) buyer's premium payable upon exchange of contracts.

*GUIDE PRICE -

Guide Prices are provided as an indication of each seller's minimum expectation. They are not necessarily figures which a property will sell for and may change at any time prior to the auction. Each property will be offered subject to Reserve Price (a figure below which the Auctioneer cannot sell the property during the auction) which we expect will be set within the Guide Range or no more than 10% above a single figure Guide.

RESERVE PRICE -

The seller's minimum acceptable price at auction and the figure below which the auctioneer cannot sell. The reserve price is not disclosed and remains confidential between the seller and the auctioneer. Both the guide price and the reserve price can be subject to change up to and including the day of the auction.

PROXY, TELEPHONE & ONLINE REMOTE BIDDING -

The auction will be held online via live video stream with buyers able to bid via telephone, online or by submitting a proxy bid. You will need to complete our remote bidding form, which is available to download from our website. The completed form, ID (driving licence or passport and a recent utility bill stating the home address of the purchaser) and a cheque/bank transfer for the Preliminary Deposit must be received no later than 24 hours before the date of the auction.

PRELIMINARY DEPOSITS -

The Preliminary Deposit required for each lot you wish to bid for will be calculated based upon the Guide Price as follows:

£1,000 - £50,000: £2,000
£51,000 - £150,000: £5,000
£151,000 and above: £10,000

If your bid is successful, the balance of the deposit monies and Buyer's Premium (£1,440 inc VAT) must be transferred to our client account within 24 hours of the auction sale. If you are unsuccessful at the auction, your Preliminary Deposit will be returned to you.