28, Douglas Road, Horfield, Bristol, BS7 0JD

£398,000 - Sold at Auction

3
  • Guide Price: £295,000+
  • February 2022 Auction
  • Terraced house for refurbishment
  • Convenient location in Horfield

REGISTER TO BID

MAKE A PRE-AUCTION OFFER



Require Finance?

Compare Property Finance from over 100 lenders
Click HERE to start your search

A representive from South West Business Finance will contact you to discuss your options



Share:

SOLD FOR £398,000. An attractive 3-bedroom double-bayed Victorian house with loft conversion, situated in a popular location in Horfield, just off the Gloucester Road. This spacious terraced property has been very well-maintained externally with beautifully restored stonework and now requires internal refurbishment to create a superb family home. There is also scope to create a fourth bedroom by reconfiguring the arrangement of the first floor bathroom/extension. A fantastic opportunity for builders, developers and owner occupiers looking to take on a project. 6 WEEK COMPLETION.

FOR SALE BY AUCTION -

This property is due to feature in our online auction on 8th February 2022 at 6.00pm. Bidding is via proxy, telephone or online remote bidding.

VIEWING -

SOLD FOR £398,000

SUMMARY -

SOLD FOR £398,000

DESCRIPTION -

An attractive double-bayed Victorian house with loft conversion, situated in a popular location in Horfield. External refurbishment works including the re-pointing of the stonework have been completed and the house is now ready for internal renovation. The property has been partially plumbed with an under-floor heating system and partially wired for a multi room sound system (equipment to complete the installations will be included in the sale). The property would make a fantastic family home following internal refurbishment and will be of interest to builders, developers and private buyers looking to take on a renovation project. 6 WEEK COMPLETION.

LOCATION -

The property is situated on Douglas Road in Horfield, within walking distance to Horfield Leisure Centre and a wide range of amenities on Gloucester Road & Filton Avenue. Excellent transport links are also provided to the city centre and motorways.

ACCOMMODATION -

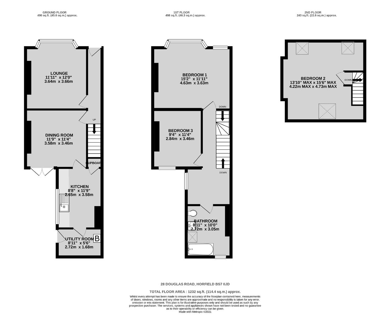
Please refer to floorplan for approximate room measurements and internal layout.

GROUND FLOOR -

Comprising an entrance hall, living room, dining room (with double doors onto the rear garden), kitchen and separate utility room.

FIRST FLOOR -

Comprising two double bedrooms and a large bathroom (with potential to reconfigure to create a smaller bathroom and fourth bedroom).

SECOND FLOOR -

Comprising a spacious bedroom in the converted loft space.

OUTSIDE -

The property includes a good-sized garden to the rear.

ENERGY PERFORMANCE CERTIFICATE -

Rating: D

BUYER'S PREMIUM -

Please be advised that all purchasers are subject to a £1,200 plus VAT (£1,440 inc VAT) buyer's premium payable upon exchange of contracts.

*GUIDE PRICE -

Guide Prices are provided as an indication of each seller's minimum expectation. They are not necessarily figures which a property will sell for and may change at any time prior to the auction. Each property will be offered subject to Reserve Price (a figure below which the Auctioneer cannot sell the property during the auction) which we expect will be set within the Guide Range or no more than 10% above a single figure Guide.

RESERVE PRICE -

The seller's minimum acceptable price at auction and the figure below which the auctioneer cannot sell. The reserve price is not disclosed and remains confidential between the seller and the auctioneer.
Both the guide price and the reserve price can be subject to change up to and including the day of the auction.

PROXY, TELEPHONE & ONLINE REMOTE BIDDING -

The auction will be held online via live video stream with buyers able to bid via telephone, online or by submitting a proxy bid. You will need to complete our remote bidding form, which is available to download from our website. The completed form, ID (driving licence or passport and a recent utility bill stating the home address of the purchaser) and a cheque/bank transfer for the Preliminary Deposit must be received no later than 24 hours before the date of the auction.

PRELIMINARY DEPOSITS -

The Preliminary Deposit required for each lot you wish to bid for will be calculated based upon the Guide Price as follows:

£1,000 - £50,000: £2,000
£51,000 - £150,000: £5,000
£151,000 and above: £10,000

If your bid is successful, the balance of the deposit monies and Buyer's Premium (£1,440 inc VAT) must be transferred to our client account within 24 hours of the auction sale. If you are unsuccessful at the auction, your Preliminary Deposit will be returned to you.