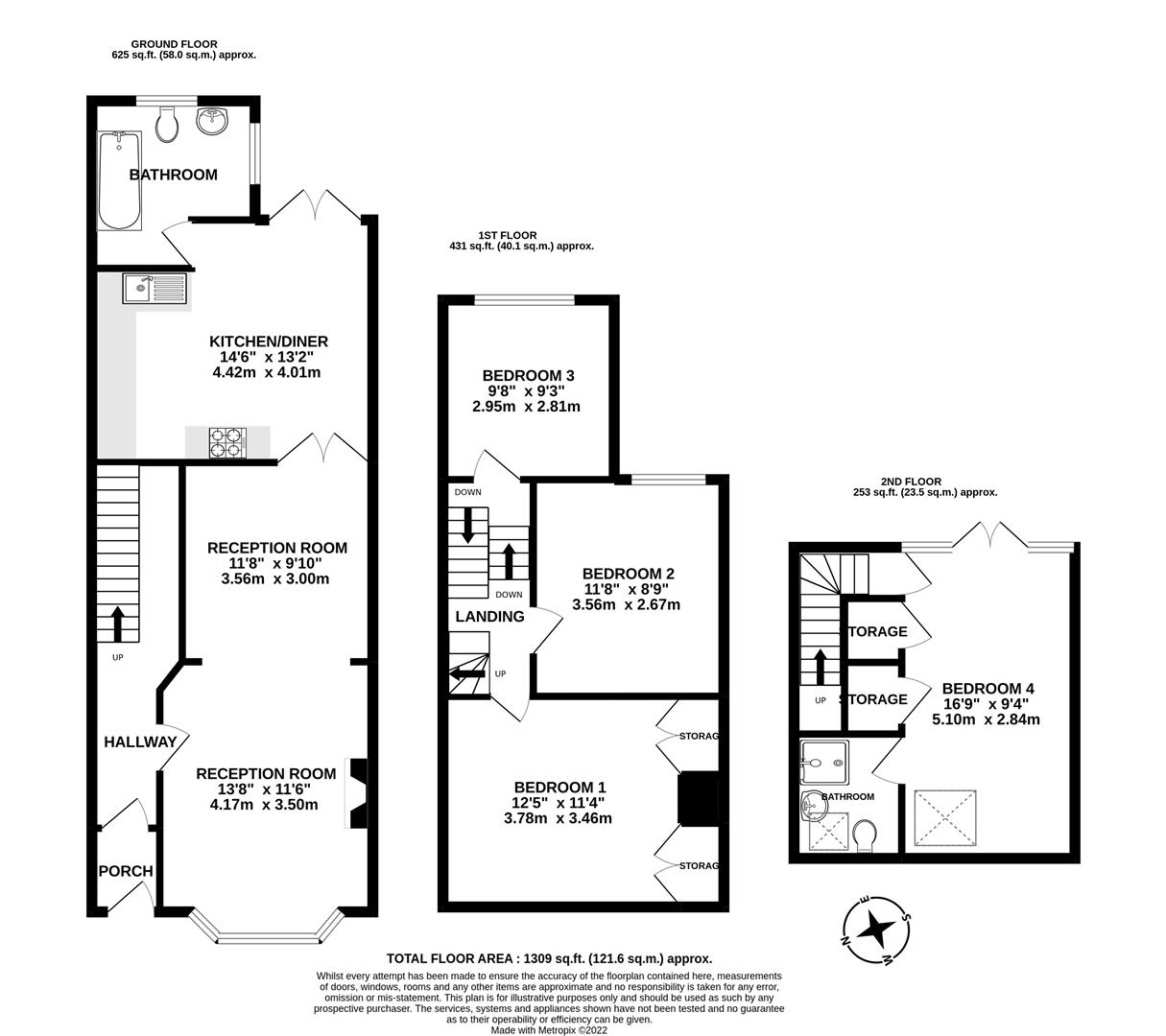
A tasteful 4 bedroom Victorian terrace on Beech Road in Horfield within easy reach to the local amenities on Gloucester Road. Set over three storeys, the recently extended top floor offers spectacular far reaching views.
This family home is full of character within the living space including the bay window, fireplace with woodburning stove and stripped floorboards. The living room has been knocked through to create a spacious lounge/diner with french doors leading to the extended kitchen. The skylights fill the kitchen with light alongside the garden doors. The fitted kitchen includes integrated appliances and space for a breakfast table which looks out to the garden. Finally, to the rear of the property is a 3-piece bathroom suite with roll top bathtub
The first floor accommodates 3 bedrooms, the rear bedroom is currently used as an office. There are two good sized double bedrooms both with fitted storage/wardrobes. The second floor is an addition made by the existing owners which offers a spacious master bedroom with fitted wardrobes, a juliette balcony and en-suite.
The east facing garden has been recently laid with new patio, raised flowerbeds and trellis along the rear wall with plants and flowers.
Furthermore, the property benefits from double glazing and gas central heating operated via smart control and phone application.
-
Ashley Down Primary School approx. 0.3km Bishop Road Primary School approx. 0.4km Brunel Field Primary School approx. 0.6km
Location This property is situated on a popular street in the heart of Horfield. Within close proximity are the independent shops, restaurants and cafes of the vibrant Gloucester Road as well as being within close proximity to Horfield Leisure Centre and Horfield Common. There are both state and independent schools located nearby as well as good public transport links to the City Centre, Bristol Temple Meads train station and the M4/M5 motorway networks.
Directions From the Maggs & Allen office on Northumbria Drive, turn left onto Coldharbour Road and continue straight onto Kellaway Avenue. Turn right onto Longmead Avenue and then turn left onto Maple Road. Turn right onto Ash Road and right onto Beech Road.
The Ministry of Housing Communities & Local Government have confirmed the housing market remains open.
All of our departments will be open for business as usual but please be assured that stringent measures are being followed to ensure of the safety of all our clients and staff.
We will continue to offer both physical and virtual valuations and viewings for residential, auction, commercial and lettings as will at our full range of RICS surveys.
If we can be of any assistance please get in touch:
Henleaze: 0117 949 9000 Clifton: 0117 973 4940
Residential Stamp Duty Calculator
Calculate Your Stamp Duty
Results
Stamp Duty To Pay:
Effective Rate:
Tax Band
%
Taxable Sum
Tax
* The calculated figures are offered as a guide only. We advise interested parties to seek advice
from their legal representative.
Commercial Stamp Duty Calculator
Calculate Stamp Duty
Results
Stamp Duty To Pay
£0.00
Effective Rate
2%
Tax Band
%
Taxable Sum
Tax
* The calculated figures are offered as a guide only. We advise interested parties to seek advice
from their legal representative.
Do you want to purchase this property prior to the auction?
Complete the form below to submit a pre-auction offer. Please
note that the property will only be removed from the auction once contracts have
been exchanged. Offers can only be submitted once the legal pack is available.