Clothier Road, Brislington, Bristol, BS4 5PS

£65,000 Per Annum - Let Agreed

  • Approximately 14,875sqft
  • Storage Yard
  • Brislington
  • Industrial Unit



Share:

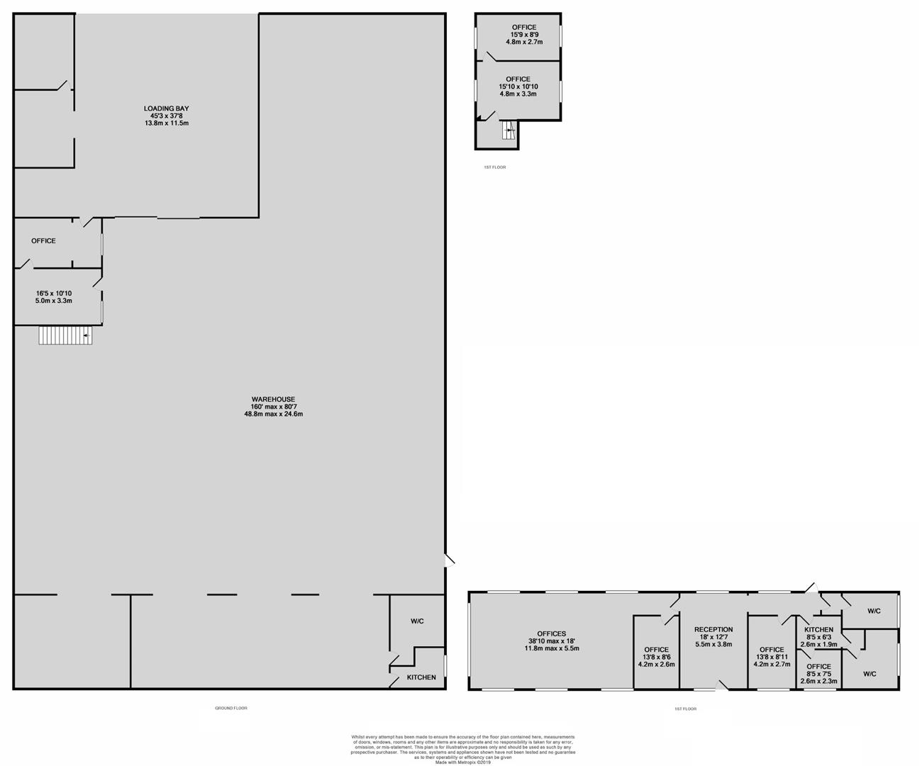
A large detached industrial unit of approximately 14,875sqft benefiting from off street parking to the front, first floor offices and a large/enclosed rear courtyard with loading bay.

The property is situated just off the A4/Bath road providing easy access to the city centre and Keynsham Bypass.

Offered to let on a new Full Repairing and Insuring basis.

DESCRIPTION -

A detached industrial unit arranged as offices to the front/first floor, with large warehouse behind, loading bay, further offices and a large enclosed rear yard providing access for articulated lorries. Internally the warehouse benefits from an eaves height of approximately 22ft3' at maximum.

LOCATION -

Situated just off Broomhill Road providing easy access to the A4/Bath Road.

SCHEDULE OF ACCOMODATION -

Warehouse (including loading bay) : approx 13,054sqft / 1,212.7sqm
Loading Bay: Approx. 1,700sqft / 158sqm
Mezzanine Office: approx 330sqft / 30.7sqm
First Floor Offices: approx 1,490sqft / 138.4sqm (1,175sqft IPMS2 Offices)

Site Area: Approx 0.57 acre.
The above areas are provided on a Gross Internal Area basis.

EPC -

Rating: E (August 2014).

FLOOR PLAN -

The floor plan is provided for indicative purposes only and should not be relied upon.

LEASE INFORMATION -

The unit is offered to let on the basis of a new Full Repairing and Insuring Lease with the terms to be negotiated.
Each party to incur their own respective legal fees.

TENANT APPLICATION FEE -

The ingoing tenant will be charged an application fee of £250 plus VAT (£300 inc VAT) towards the costs incurred in undertaking appropriate credit and reference checks. Accounts will be requested where available and a deposit and/or personal guarantee may be required.

VAT -

All figures quoted are exclusive of VAT unless otherwise stated.

BUSINESS RATES -

The rateable value with effect from April 2017 is £38,750.

VIEWINGS -

Viewings are strictly by appointment only with Maggs & Allen.

CONTROL OF ASBESTOS -

As per the Control of Asbestos Regulations 2012, the owner or tenant of the property, or anyone else who has control over it and/or responsibility for maintaining it, must comply with the regulations which may include the detection of and/or management of any asbestos or asbestos related compounds contained at the property. Maggs & Allen has not tested or inspected for asbestos and therefore recommend all interested parties to make their own enquiries.