A rare opportunity to purchase this 3 bed, detached, chalet style bungalow that offers vast potential and flexible ground floor living accommodation. Positioned close to Grange Court in the popular Eastfield Road, this property is in need of modernisation and has the potential to create more space subject to planning permission and building regulations.
The property has a southerly facing garden of good size to the front, within a very short stroll of Henleaze High Street, offers adaptable accommodation for a downsizer.
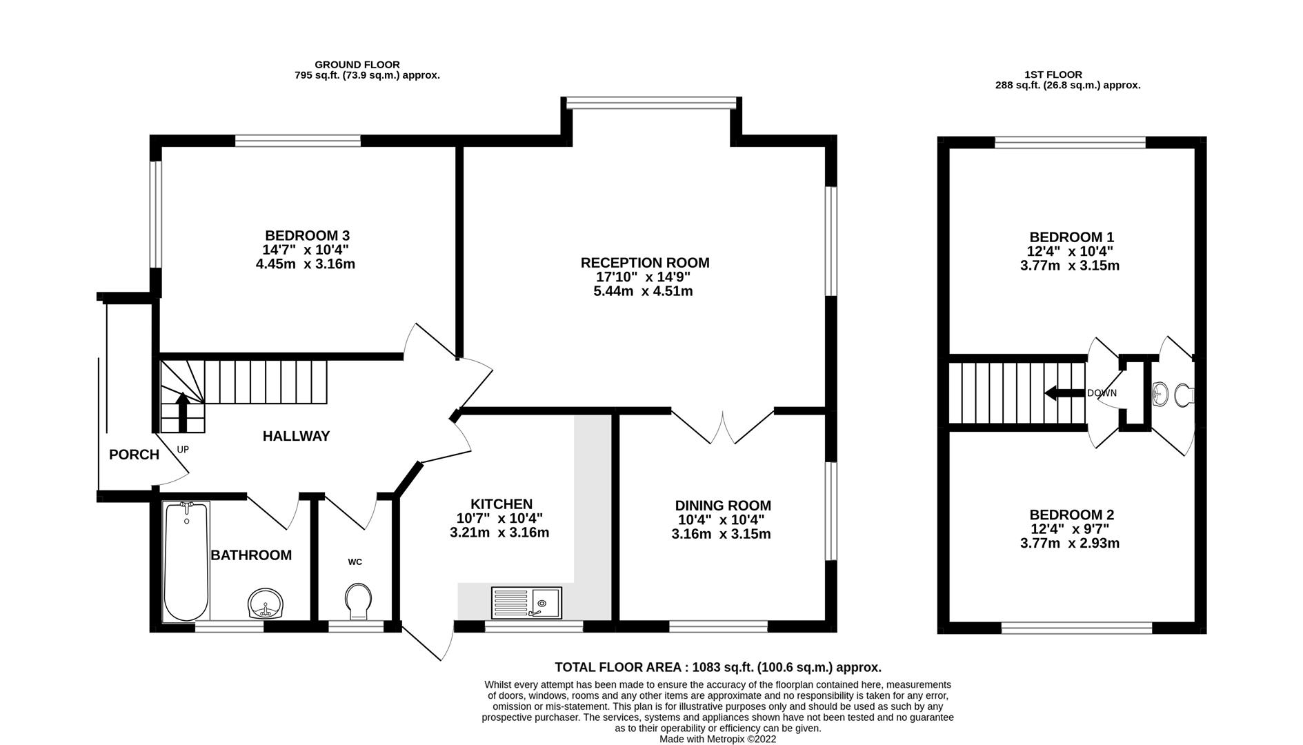
Due to the size and nature of the property, there is flexibility for how accommodation could be arranged, but is currently used as 2 receptions, bedroom, kitchen, cloakroom and bathroom on the ground floor. Upstairs are 2 bedrooms, airing cupboard and jack and Jill cloakroom between the 2 bedrooms.
Outside, a secluded, southerly facing front garden with sunny areas throughout and water feature surrounded by a variety of mature shrubs, pond, storage shed, trees and flowers. Generous rear garden, garage with ample parking to the front of the property. Offered with no onward chain.
Schools -
St Ursula's E-ACT Academy approx 0.48km Westbury-On-Trym Church of England Academy approx 0.51km Henleaze Infant School approx 0.86km Bristol Free School approx 1.15km
Location -
Henleaze is a highly desirable area for many families as it offers close proximity to the local amenities of Henleaze High Street, Whiteladies Road & Gloucester Road. It is situated within walking distance to the open green spaces of Durdham Downs and is within the catchment area of a number of well established primary and secondary schools.
Directions -
From the Maggs & Allen office on Northumbria Drive, continue down towards Henleaze Road. Turn left onto Waterford Road and follow the road which becomes Grange Park and then take the next right onto Eastfield.
The Ministry of Housing Communities & Local Government have confirmed the housing market remains open.
All of our departments will be open for business as usual but please be assured that stringent measures are being followed to ensure of the safety of all our clients and staff.
We will continue to offer both physical and virtual valuations and viewings for residential, auction, commercial and lettings as will at our full range of RICS surveys.
If we can be of any assistance please get in touch:
Henleaze: 0117 949 9000 Clifton: 0117 973 4940
Residential Stamp Duty Calculator
Calculate Your Stamp Duty
Results
Stamp Duty To Pay:
Effective Rate:
Tax Band
%
Taxable Sum
Tax
* The calculated figures are offered as a guide only. We advise interested parties to seek advice
from their legal representative.
Commercial Stamp Duty Calculator
Calculate Stamp Duty
Results
Stamp Duty To Pay
£0.00
Effective Rate
2%
Tax Band
%
Taxable Sum
Tax
* The calculated figures are offered as a guide only. We advise interested parties to seek advice
from their legal representative.
Do you want to purchase this property prior to the auction?
Complete the form below to submit a pre-auction offer. Please
note that the property will only be removed from the auction once contracts have
been exchanged. Offers can only be submitted once the legal pack is available.