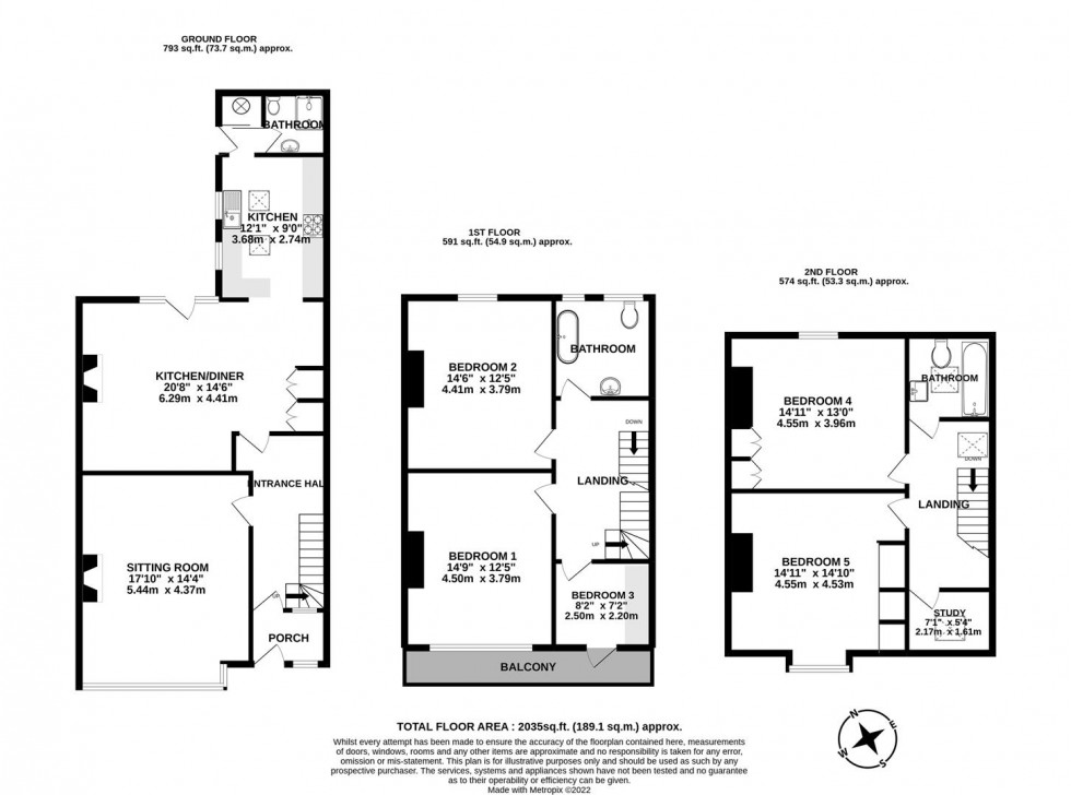
A substantial Edwardian (approx. 2035 sq.ft.), five bedroom, two reception, three bathroom family house with double garage and study. The property is packed with charm and character and is situated within a very short distance (approx. 0.28km) of Redland Green Secondary School and is approx. 0.81km from Bishop Road Primary School whilst being just a short stroll from everything Gloucester Road has to offer.
Property Details -
Retaining many period features, most notably the feature fireplaces with wood burners, stripped back wooden floorboards, picture rails, dado rails and ceiling cornicing. The accommodation is arranged over three floors and offers well-proportioned rooms that give the house a well-balanced feel. The ground floor has been extended to the rear creating a large fully fitted kitchen that is open to a generous family/dining space which in turn provides direct access to the rear garden. There is also a separate, more formal reception room located at the front of the house. A entrance porch and shower room with WC complete this floor. There are five bedrooms in total plus a study and two well-appointed family bathrooms.
Externally, the private rear garden offers a calm environment to sit and relax and is an ideal spot for firing up the BBQ with family and friends. To the front of the property is a full width balcony accessed from one of the first floors bedrooms. The double garage with up and over door is accessed from a lane at the rear.
Schools -
Redland Green School approx. 0.28km St Bonaventure's Catholic Primary School approx. 0.55km Cotham Gardens Primary School approx. 0.73km Bishop Road Primary School approx. 0.81km
Location -
A fabulous area, and unsurprisingly amongst Bristol’s most popular destinations; Redland exudes historic charm with its Victorian and Edwardian architecture. Lovely green spaces like Cotham Gardens and Redland Green provide peace and quiet, while independent shops and cafés offer a unique local experience.
Chandos Road is famous for its array of highly regarded eateries, including Snobby’s and the Michelin Star Wilson’s, whilst neighbouring Westbury Park - on its doorstep - offers an selection of popular cafes and restaurants both on Coldharbour Road and North View including the impressive Little French.
Cultural richness thrives with art galleries and theatres, whilst Redland is also home to Bristol University and Redland Green School, meaning it is an academic hub within the city.
Redland's location ensures easy transportation access, making it a gateway to explore Bristol and beyond.
The Ministry of Housing Communities & Local Government have confirmed the housing market remains open.
All of our departments will be open for business as usual but please be assured that stringent measures are being followed to ensure of the safety of all our clients and staff.
We will continue to offer both physical and virtual valuations and viewings for residential, auction, commercial and lettings as will at our full range of RICS surveys.
If we can be of any assistance please get in touch:
Henleaze: 0117 949 9000 Clifton: 0117 973 4940
Residential Stamp Duty Calculator
Calculate Your Stamp Duty
Results
Stamp Duty To Pay:
Effective Rate:
Tax Band
%
Taxable Sum
Tax
* The calculated figures are offered as a guide only. We advise interested parties to seek advice
from their legal representative.
Commercial Stamp Duty Calculator
Calculate Stamp Duty
Results
Stamp Duty To Pay
£0.00
Effective Rate
2%
Tax Band
%
Taxable Sum
Tax
* The calculated figures are offered as a guide only. We advise interested parties to seek advice
from their legal representative.
Do you want to purchase this property prior to the auction?
Complete the form below to submit a pre-auction offer. Please
note that the property will only be removed from the auction once contracts have
been exchanged. Offers can only be submitted once the legal pack is available.