High Street, Staple Hill, Bristol, BS16 5HL

£12,000 Per Annum - Let Agreed

  • Approx. 840 sq ft
  • Secure Shutters
  • Rear Access
  • Staple Hill High Street



Share:

£1,000 PCM EXC

A terraced shop of approximately 840 sqft (78 sqm) benefitting from rear access and secure shutters.
The shop is situated in a bustling position on the High Street in Staple Hill.

Offered to let on a new internal repairing and insuring basis.
The property is also available for sale at £285,000, to include the first floor self contained flat.

DESCRIPTION -

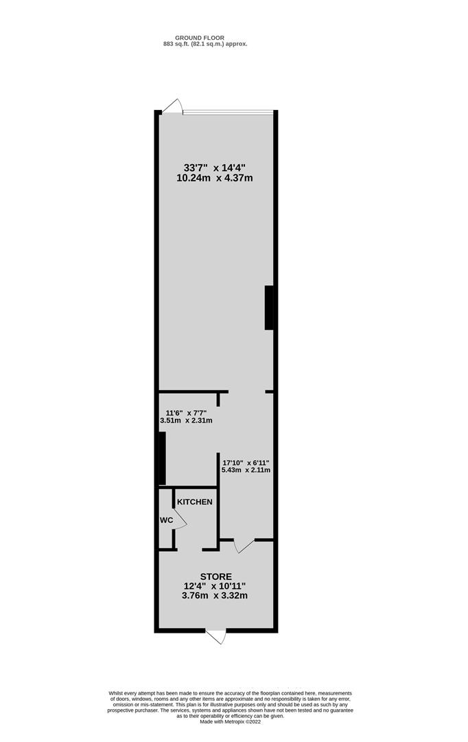
A mid terrace shop of approximately 840 sq ft with additional office/ancillary storage, wc, kitchen and rear store room. The shop benefits from rear access and secure shutters. The property is also available for sale at £285,000 to include a first floor flat.

LOCATION -

Situated on the High Street in Staple Hill, close to the junction with Victoria Street.

BUSINESS RATES -

The rateable value with effect from April 2017 is £6,600.
We would therefore expect those eligible for small business relief to benefit from 100% exemption at this time. However, we advise all interested parties to confirm directly with the local authority.

ENERGY PERFORMANCE CERTIFICATE -

Rating: D (expires May 2032).

FLOOR PLAN -

The floor plan is provided for indicative purposes only and should not be relied on.

VAT -

All figures quoted are exclusive of VAT unless otherwise stated.

LEASE DETAILS -

The shop is available to let on a new internal repairing and insuring basis.
Each party to incur their own respective legal fees.

CODE FOR LEASING BUSINESS PREMISES -

We advise all interested parties to refer to the RICS Code for Leasing Business Premises, link available via our website.

TENANT APPLICATION FEE -

The ingoing tenant will be charged an application fee of £250 plus VAT (£300 inc VAT) towards the costs incurred in undertaking appropriate credit and reference checks. Accounts will be requested where available and a deposit and/or personal guarantee may be required.

VIEWINGS -

As an actively trading business, viewings are strictly by appointment with Maggs and Allen.

CONTROL OF ASBESTOS REGULATIONS -

As per the Control of Asbestos Regulations 2012, the owner or tenant of the property, or anyone else who has control over it and/or responsibility for maintaining it, must comply with the regulations which may include the detection of and/or management of any asbestos or asbestos related compounds contained at the property. Maggs & Allen has not tested or inspected for Asbestos and therefore recommend all interested parties to make their own enquiries.