Fishponds Road, Fishponds, Bristol, BS16 3BQ

£65,000 Per Annum - Let Agreed

  • Approx. 12,150 ft2 / (1,125 m2)
  • Showroom & Warehouse
  • Parking and Loading
  • High Street/Prominent Location
  • New Lease Available



Share:

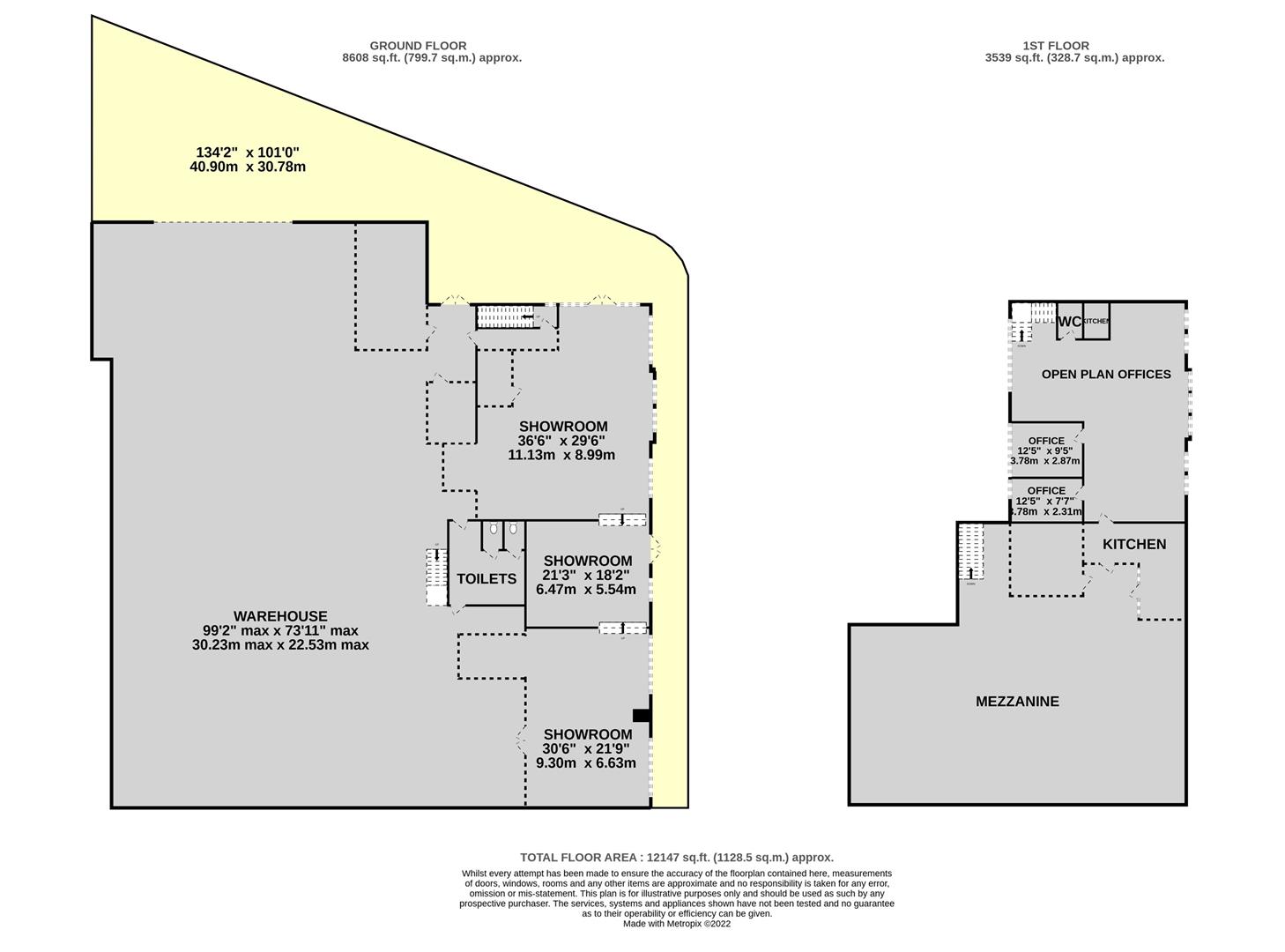
A substantial showroom and warehouse providing approximately 12,150 ft2 (1,128 m2) of accommodation in a prime position on Fishponds Road. Benefits include roller shutter access, off street parking and loading and 3 tonnes crane. The accommodation is currently arranged as showroom areas to the front with a large rear warehouse, mezzanine storage and first floor offices.

Offered to let on a new Fully Repairing and Insuring basis. Early enquiries are recommended given this rare opportunity.

The client would also be prepared to split the accommodation into two parts should this be required.

DESCRIPTION -

A substantial showroom and warehouse providing approximately 12,150 ft2 (1,128 m2) of accommodation in a prime position on Fishponds Road. Benefits include roller shutter access, off street parking and loading and 3 tonnes crane. The accommodation is currently arranged as showroom areas to the front with a large rear warehouse, mezzanine storage and first floor offices.

Offered to let on a new Fully Repairing and Insuring basis. Early enquiries are recommended given this rare opportunity.

The client would also be prepared to split the accommodation into two parts should this be required.

LOCATION -

The property is situated in a highly prominent location on Fishponds Road opposite Aldi supermarket, next to Gala Bingo and within close proximity of McDonalds.

ACCOMODATION -

Ground Floor: Approx. 8,600 ft2 (800 m2)
First Floor: Offices: Approx. 1,110 ft2 (103 m2
Mezzanine: Approx. 2,425 ft2 (225 m2)

FLOOR PLAN -

The floor plan and floor areas provided should be treated as indicative only and should not be relied on.

ENERGY PERFORMANCE CERTIFICATE -

Rating: E (expires May 2032)

CODE FOR LEASING BUSINESS PREMISES -

We advise all interested parties to refer to the RICS Code for Leasing Business Premises, link available via our website.

TENANT APPLICATION FEE -

The ingoing tenant will be charged an application fee of £250 plus VAT (£300 inc VAT) towards the costs incurred in undertaking appropriate credit and reference checks. Accounts will be requested where available and a deposit and/or personal guarantee may be required.

VAT -

All figures quoted are exclusive of VAT unless otherwise stated.

LEASE DETAILS -

Offered to let on a new fully repairing and insuring basis. Each party to incur their own respective legal fees.

BUSINESS RATES -

The rateable value with effect from April 2017 is £34,000.

VIEWINGS -

Strictly by Appointment with Maggs and Allen.

CONTROL OF ASBESTOS REGULATIONS -

As per the Control of Asbestos Regulations 2012, the owner or tenant of the property, or anyone else who has control over it and/or responsibility for maintaining it, must comply with the regulations which may include the detection of and/or management of any asbestos or asbestos related compounds contained at the property. Maggs & Allen has not tested or inspected for Asbestos and therefore recommend all interested parties to make their own enquiries.