A beautifully presented 1 bed, ground floor apartment with private rear courtyard garden, parking, garage and communal swimming pool and vast gardens. Located in a popular BS9 development. Having undergone a modernisation by the current owner, this lovely property would make a fabulous first time buyer home or a buy to let investment.
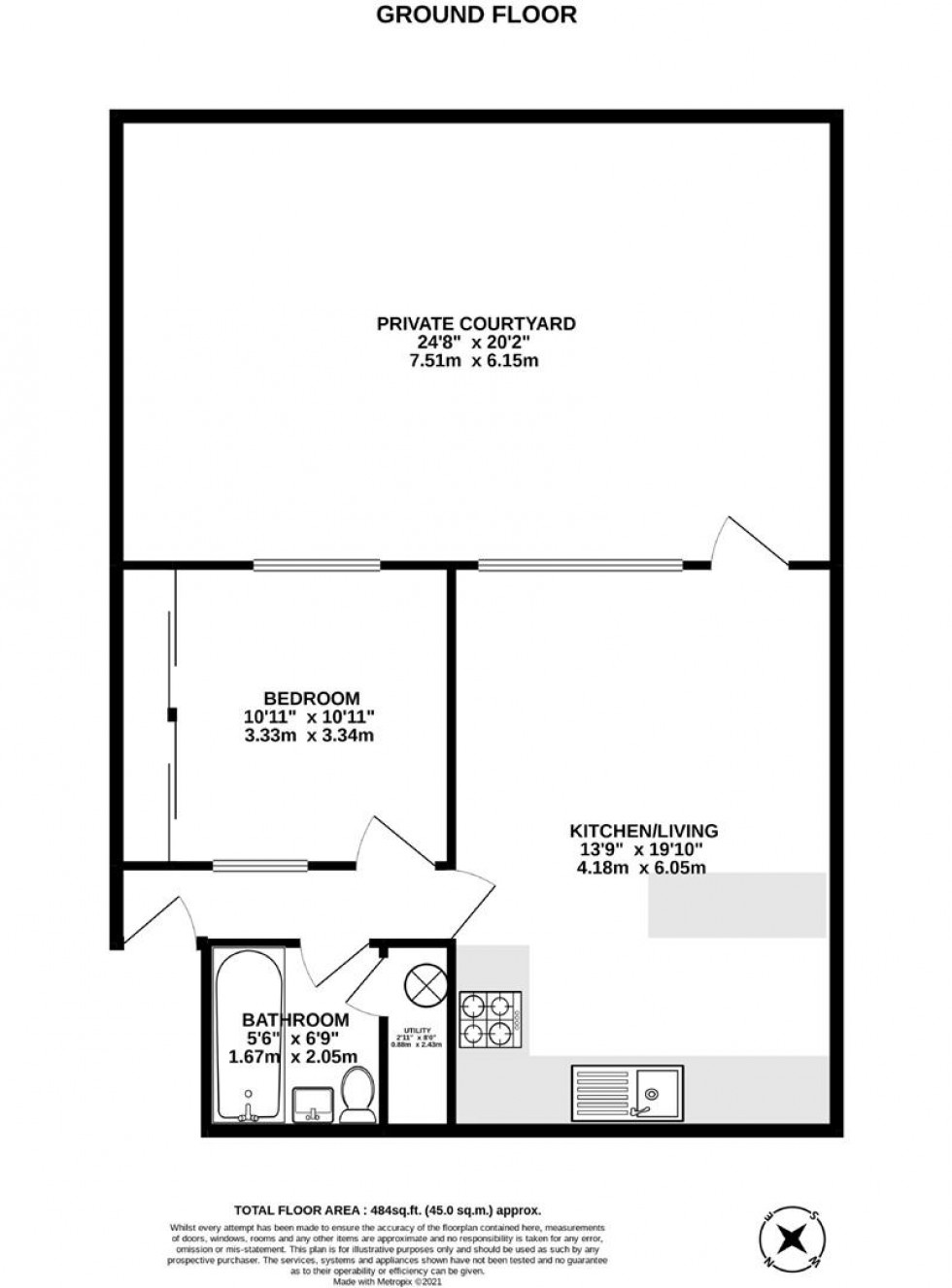
Offering a great degree of privacy and is surrounded by beautifully maintained grounds plus a communal indoor swimming pool, sauna with changing rooms. The accommodation consists of: open plan lounge/diner and a contemporary fully fitted kitchen with integrated appliances including dishwasher, double glazed French door leading on to the private patio garden which opens up onto the vast communal gardens, double bedroom with fitted wardrobes over looking the patio, bath room with a modern suite plus a boiler/ utility/ storage cupboard.
The apartment also comes with a garage plus visitor parking and is offered with no onward chain. Could achieve between £900 - £950 pcm in rent which is a 5.% yield at the asking price.
-
Location The property is situated in the exclusive and leafy suburb of Sneyd Park, one of the most prestigious areas to live within Bristol. The location offers easy and convenient access to Whiteladies Road, The Downs, Clifton Village and the City Centre with its extensive range of shops, restaurants and boutiques as well as being within close proximity to Henleaze High Street. There is easy access to M4/M5 motorway networks.
Directions From the Maggs & Allen office on Northumbria Drive, turn right onto North View. At White Tree roundabout, take the second exit onto Parrys Lane. Turn left onto Saville Road and then right onto Stoke Hill. Turn left onto Church Road and continue straight onto Julian Road. Turn right onto The Avenue and then right onto Hazelwood Road.
General Information Length of lease remaining: 952 years (999 years from 1st January 1974). Service Charge: Approx. £2203.60 per annum
The Ministry of Housing Communities & Local Government have confirmed the housing market remains open.
All of our departments will be open for business as usual but please be assured that stringent measures are being followed to ensure of the safety of all our clients and staff.
We will continue to offer both physical and virtual valuations and viewings for residential, auction, commercial and lettings as will at our full range of RICS surveys.
If we can be of any assistance please get in touch:
Henleaze: 0117 949 9000 Clifton: 0117 973 4940
Residential Stamp Duty Calculator
Calculate Your Stamp Duty
Results
Stamp Duty To Pay:
Effective Rate:
Tax Band
%
Taxable Sum
Tax
* The calculated figures are offered as a guide only. We advise interested parties to seek advice
from their legal representative.
Commercial Stamp Duty Calculator
Calculate Stamp Duty
Results
Stamp Duty To Pay
£0.00
Effective Rate
2%
Tax Band
%
Taxable Sum
Tax
* The calculated figures are offered as a guide only. We advise interested parties to seek advice
from their legal representative.
Do you want to purchase this property prior to the auction?
Complete the form below to submit a pre-auction offer. Please
note that the property will only be removed from the auction once contracts have
been exchanged. Offers can only be submitted once the legal pack is available.