East Street, Bedminster, Bristol, BS3 4ET

£14,000 Per Annum - Let Agreed

  • Busy Trading Position
  • Approximately 890 sq ft
  • Well Presented
  • Parking Space



Share:

***WELL PRESENTED RETAIL UNIT***
Opportunity to acquire a lease on this well presented ground floor shop of approximately 790 sq ft located in a busy trading position on East Street, Bedminster. The property benefits from a designated parking space and rear access. Offered to let on an effectively Full Repairing and Insuring basis.

DESCRIPTION -

Well presented ground floor retail unit of approximately 790 sq ft comprising a main shop/customer serving area with adjoining storage, WC and kitchenette. Most recently occupied by a hair salon the shop would suit a similar use or various other uses within the E use class subject to consents. Benefits include rear access and a designated parking space.

LOCATION -

The property is situated within a mixed parade of shops on East Street, Bedminster benefitting from high levels of footfall throughout the day.

LEASE DETAILS -

Available to let on a new effectively Full Repairing & Insuring basis.
Each party to incur their own legal costs.

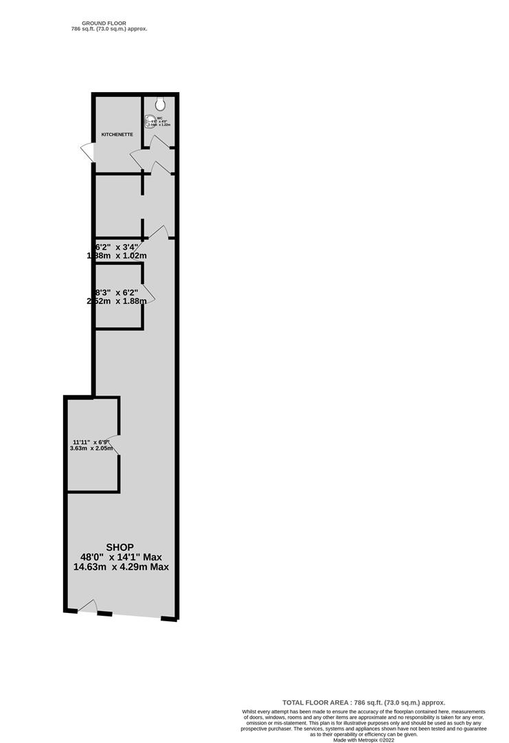
FLOOR PLAN -

The floor plan is provided for indicative purposes only and should not be relied upon.

BUSINESS RATES -

The rateable value effective from April 2017 as per VOA website is £8,000.

We would anticipate full rate relief would therefore be applicable to those eligible for small business relief. However interested parties are advised to make their own enquiries with the local authority to confirm.

ENERGY PERFORMANCE CERTIFICATE -

EPC rating: E (expires June 2022).

VIEWING -

By appointment with Maggs & Allen.

VAT -

All figures quoted are exclusive of vat unless otherwise stated.

TENANT APPLICATION FEE -

The ingoing tenant will be charged an application fee of £250 plus VAT (£300 inc VAT) towards the costs incurred in undertaking appropriate credit and reference checks. Accounts will be requested where available and a deposit and/or personal guarantee may be required as part of the Money Laundering Regulations, we will require all prospective tenants to provide the necessary identification documents.

CONTROL OF ASBESTOS REGULATIONS -

As per the Control of Asbestos Regulations 2012, the owner or tenant of the property, or anyone else who has control over it and/or responsibility for maintaining it, must comply with the regulations which may include the detection of and/or management of any asbestos or asbestos related compounds contained at the property. Maggs & Allen has not tested or inspected for asbestos and therefore recommend all interested parties to make their own enquiries.

CODE FOR LEASING BUSINESS PREMISES -

We advise all interested parties to refer to the RICS Code for Leasing Business Premises, link available via our website.