Queens Road, Bristol, BS8 1LW

£35,000 Per Annum - Let Agreed

  • Large outside terrace
  • Fully fitted kitchen
  • Premium of £110,000
  • Situated close to Clifton Triangle



Share:

***WELL PRESENTED & FULLY FITTED RESTAURANT***
Rare opportunity to acquire a very well presented and fully fitted restaurant of approximately 1770sqft located in prime position within the heart of Clifton between Park Street and Clifton Village, a stones through from the triangle. The restaurant benefits from 3 dining areas, additional outdoor seating to the front, bar, customer toilets and a fully fitted kitchen. This is an ideal opportunity for any restauranteur requiring a restaurant in a highly desirable and affluent location An assignment of the current lease is offered subject to an ingoing premium of £110,000 to include fixtures and fittings.

DESCRIPTION -

A well presented and fully fitted restaurant of approximately 1770sqft with additional outdoor seating to the front. Benefits include 3 separate dining areas, bar, customer toilets, a fully equipped kitchen and storage. An assignment of the current lease is available subject to a rent of £35,000pa and an ingoing premium of £110,000.

LOCATION -

The restaurant is situated in a prime position on Queens Road, Clifton within close proximity to the Triangle.

PREMIUM / LEASE DETAILS -

An assignment of the current lease is available subject to an ingoing premium of £110,000 to include a full inventory (a copy of which is available on request). An assignment of the current Full Repairing and Insuring lease is offered with approximately 10 years remaining.

LEGAL COSTS -

Each party to incur their own respective legal costs. The landlords legal fees are to be split equally between the outgoing and prospective tenants.

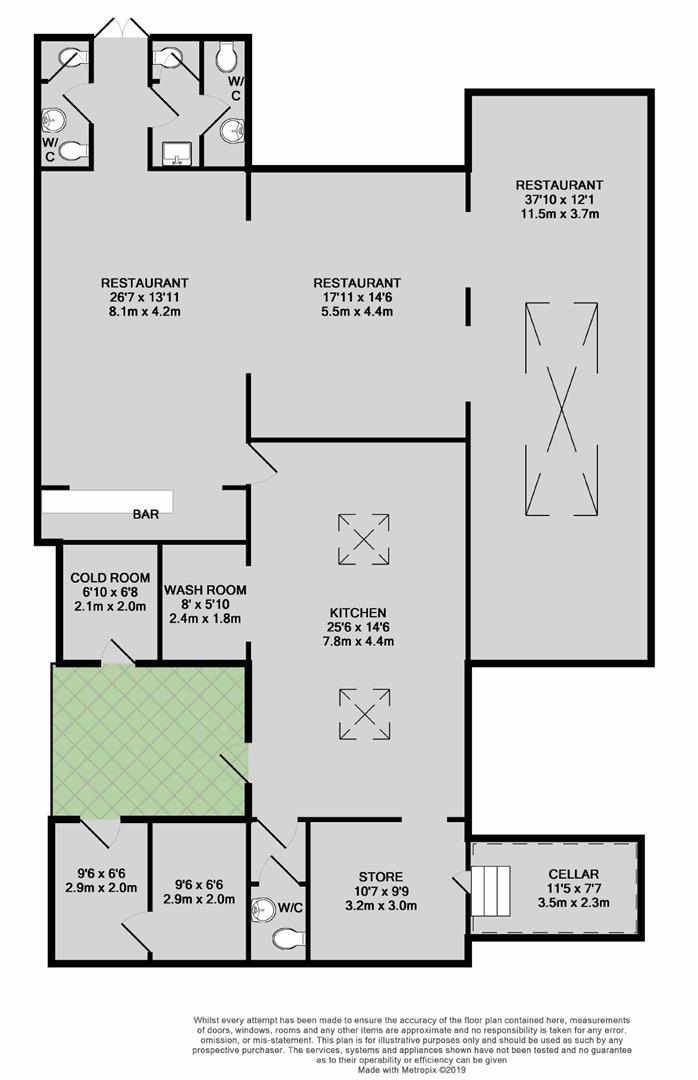
FLOOR PLAN -

The floor plan is provided for indicative purposes and should not be relied upon.

VAT -

All figures are quoted exclusive of VAT unless otherwise stated.

VIEWINGS -

As a trading business viewings are strictly by appointment with Maggs & Allen.

BUSINESS RATES -

The rateable value with effect from April 2017 as per the VOA website is £35,000. We understand the rates payable are currently approximately £16,800pa.

ENERGY PERFORMANCE CERTIFICATE -

EPC rating: D

TENANT APPLICATION FEE -

The ingoing tenant will be charged an application fee of £250 plus VAT (£300 inc VAT) towards the costs incurred in undertaking appropriate credit and reference checks. Accounts will be requested where available and a deposit and/or personal guarantee may be required. The assignment of the lease is subject to landlords approval.

CONTROL OF ASBESTOS REGULATIONS -

As per the Control of Asbestos Regulations 2012, the owner or tenant of the property, or anyone else who has control over it and/or responsibility for maintaining it, must comply with the regulations which may include the detection of and/or management of any asbestos or asbestos related compounds contained at the property. Maggs & Allen has not tested or inspected for asbestos and therefore recommend all interested parties to make their own enquiries.

EPC Graph for Clifton, Bristol